Описание
Семейная ипотека на готовую Евро3к квартиру. Жилой дом на Полярной улице, д. 3 расположен в зелёной части Южного Медведкова, рядом с парком «Яуза» и протяжёнными природными маршрутами вдоль реки.
Современное здание до 18 этажей формирует компактное и комфортное пространство с благоустроенной территорией, игровыми и спортивными зонами, зелёными аллеями и прогулочными маршрутами.
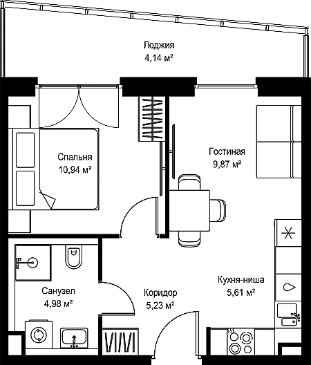
В доме — 170 квартир от функциональных однокомнатных до просторных трёхкомнатных с продуманными планировками и лоджиями.
Рядом находятся школы, детские сады, магазины и парк «Яуза».
В нескольких минутах — выезды на Ярославское шоссе, СВХ и МКАД, что обеспечивает удобное перемещение по городу.
Метро «Медведково» — ~15–20 минут пешком или 7–10 минут на транспорте
Метро «Бабушкинская» — ~20 минут на транспорте
МЦК «Ростокино» — ~20 минут на транспорте
Удобный выезд на Ярославское шоссе, СВХ, МКАД
Территория дома оформлена в концепции «город в парке» - это закрытое от машин пространство для отдыха и активной жизни.
Здесь благоустроенные дворы с прогулочными аллеями, зелеными бульварами и современным освещением, детские и спортивные площадки
На первых этажах предусмотрены коммерческие помещения для кафе, магазинов и сервисов, создавая уютную атмосферу городского комфорта.
Для жителей предусмотрен подземный паркинг на 118 машиномест и гостевые парковочные зоны
Школы в пешей доступности
Детские сады
Поликлиники, взрослая и детская
Торговые центры, кафе и супермаркеты
Аптеки, отделения банков и другие объекты повседневного сервиса AFY-345528820
Современное здание до 18 этажей формирует компактное и комфортное пространство с благоустроенной территорией, игровыми и спортивными зонами, зелёными аллеями и прогулочными маршрутами.
В доме — 170 квартир от функциональных однокомнатных до просторных трёхкомнатных с продуманными планировками и лоджиями.
Рядом находятся школы, детские сады, магазины и парк «Яуза».
В нескольких минутах — выезды на Ярославское шоссе, СВХ и МКАД, что обеспечивает удобное перемещение по городу.
Метро «Медведково» — ~15–20 минут пешком или 7–10 минут на транспорте
Метро «Бабушкинская» — ~20 минут на транспорте
МЦК «Ростокино» — ~20 минут на транспорте
Удобный выезд на Ярославское шоссе, СВХ, МКАД
Территория дома оформлена в концепции «город в парке» - это закрытое от машин пространство для отдыха и активной жизни.
Здесь благоустроенные дворы с прогулочными аллеями, зелеными бульварами и современным освещением, детские и спортивные площадки
На первых этажах предусмотрены коммерческие помещения для кафе, магазинов и сервисов, создавая уютную атмосферу городского комфорта.
Для жителей предусмотрен подземный паркинг на 118 машиномест и гостевые парковочные зоны
Школы в пешей доступности
Детские сады
Поликлиники, взрослая и детская
Торговые центры, кафе и супермаркеты
Аптеки, отделения банков и другие объекты повседневного сервиса AFY-345528820
Расположение
г Москва, ул Полярная, д 3
Бабушкинская
—
15 мин
Свиблово
—
25 мин
Отрадное
—
26 мин
Технические характеристики
Параметры
Тип здания
монолитный
Телекоммуникации
интернет
Инженерия
лифт
Вид из окна
во двор
Тип балкона
балкон
Статус владельца объявления
агентство
Параметры помещения
жилая площадь м²
36
площадь кухни м²
10.5
Новость дня
Расширение возможностей для B2B-клиентов: Avito вводит новые услуги для строительства складов
На платформе Авито теперь доступна категория "Коммерческое строительство" в сегменте услуг, предлагающая широкий выбор специализированных работ и возведение объектов "под ключ" для бизнеса, что упрощает поиск подрядчиков и субподрядчиков для коммерческих проектов.
Все новости
30 апреля, четверг / Москва
"Бумеранг Капитал" увеличил свою долю в сети кафе-пекарен "Цех 85" до 50%
30 апреля, четверг / Ставропольский
В Кисловодске начался проект строительства инвестиционного отеля "Реликт"
30 апреля, четверг / Москва
Ресторан «Долина 5165» и магазин Sokolov теперь доступны посетителям ТРЦ Avenue Sever
30 апреля, четверг / Москва
"Новый флагманский магазин под названием «Флаувау» открыл свои двери на Мясницкой улице"
30 апреля, четверг / Москва
"Уровень вакансии на складах в Московском регионе достиг 5,4% из-за увеличения предложений по субаренде"
30 апреля, четверг / Москва
"Прогнозируется незначительный прирост числа туристов в первом квартале 2026 года - всего 2,8%"
30 апреля, четверг / Москва
Компания "Ориентир" планирует вложить до 150 млрд рублей в расширение бизнеса и развитие новых секторов.
30 апреля, четверг / Москва
"Завершено строительство наземной парковки на 400 автомобильных мест в парке «Ривер Парк Коломенское»"
30 апреля, четверг / Москва
Скорось открытия новых магазинов «Лэтуаль» снизится - 150 точек закроются к 2026 году.
30 апреля, четверг / Москва
Смайл-бар сети "Белая точка" теперь доступен посетителям ТЦ "Левел Причальный"
29 апреля, среда / Москва
Московский цех открыл производство 3D-принтеров для металлической печати.
29 апреля, среда / Москва
БМ-банк завершил продажу большей части площадей в ТЦ «Весна» на Новом Арбате.
29 апреля, среда / Москва
Перефразированное название: "Сеть магазинов 'Жизньмарт' возобновляет свою деятельность в Челябинске"
29 апреля, среда / Санкт-Петербург
Сервисный офис «Практик» начал свою работу на Октябрьской набережной в Санкт-Петербурге.
29 апреля, среда / Санкт-Петербург
Строительство складских помещений в Санкт-Петербурге и Ленинградской области увеличилось в 2,5 раза.
29 апреля, среда / Москва
Москва увеличила объем строительства в рамках программы МПТ до 9,5 миллионов квадратных метров
29 апреля, среда / Санкт-Петербург
Соседский центр "ЖИВИ Клуб" открыл свои двери в Новоселье
29 апреля, среда / Москва
"Завершено строительство пятиэтажной наземной парковки в районе Нагатинский Затон"
29 апреля, среда / Санкт-Петербург
Рекордный уровень строительства складов зафиксирован в Санкт-Петербурге и Ленинградской области
29 апреля, среда / Москва
Аренда складов в Москве снизилась на 25%