Описание
Большая квартира с изолированными комнатами в добротном кирпичном доме, в зеленом благоустроенном дворе переходящим в парк, с отличной транспортной доступностью и всей инфраструктурой.
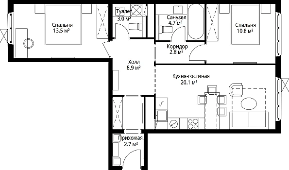
Трехкомнатная квартира на 3-м этаже 9-ти этажного кирпичного дома, построенного по индивидуальному проекту, общая площадь 75,8 кв.м, комнаты изолированные 16,8, 18,4. 10,5; кухня 11,4; санузел раздельный. Несущих стен нет.
Квартира - "линейка", окна выходят во двор. Состояние жилое, но косметический ремонт нужен.
В квартире никто не зарегистрирован и не проживает (сдается в аренду).
Добротный кирпичный дом, грузовой лифт, консьерж.
Очень большой зеленый двор - вышел во двор, а попал в парк. Двор огорожен, на въезде автоматические ворота, мест для парковки всегда достаточно. Во дворе детская и спортивная площадка, зона барбекю (мангал). Из двора калитка прямо в парк "Лесные поляны". Красиво, зелено и тихо.
Расположению дома могут позавидовать жители многих Московских районов. Отличная транспортная доступность (в цифрах): до метро (МЦД-4 "Кучино") 500 м, 20 минут до пересадки на кольцевую линию, 30 минут до центра Москвы. От Москвы 4 км (Новокосино), 7 км от МКАД.
Вся необходимая для жизни инфраструктура рядом: детские сады, школы, поликлиники, магазины, торговые и развлекательные центры и т.д.
Один взрослый собственник, в собственности более пяти лет. Прямая продажа. Возможна ипотека, материнский капитал. Полностью готовы к сделке.
Трехкомнатная квартира на 3-м этаже 9-ти этажного кирпичного дома, построенного по индивидуальному проекту, общая площадь 75,8 кв.м, комнаты изолированные 16,8, 18,4. 10,5; кухня 11,4; санузел раздельный. Несущих стен нет.
Квартира - "линейка", окна выходят во двор. Состояние жилое, но косметический ремонт нужен.
В квартире никто не зарегистрирован и не проживает (сдается в аренду).
Добротный кирпичный дом, грузовой лифт, консьерж.
Очень большой зеленый двор - вышел во двор, а попал в парк. Двор огорожен, на въезде автоматические ворота, мест для парковки всегда достаточно. Во дворе детская и спортивная площадка, зона барбекю (мангал). Из двора калитка прямо в парк "Лесные поляны". Красиво, зелено и тихо.
Расположению дома могут позавидовать жители многих Московских районов. Отличная транспортная доступность (в цифрах): до метро (МЦД-4 "Кучино") 500 м, 20 минут до пересадки на кольцевую линию, 30 минут до центра Москвы. От Москвы 4 км (Новокосино), 7 км от МКАД.
Вся необходимая для жизни инфраструктура рядом: детские сады, школы, поликлиники, магазины, торговые и развлекательные центры и т.д.
Один взрослый собственник, в собственности более пяти лет. Прямая продажа. Возможна ипотека, материнский капитал. Полностью готовы к сделке.
Расположение
Московская обл, г Балашиха, мкр Кучино, ул Чаплыгина, д 1
Кучино
—
7 мин
Салтыковская
—
20 мин
Ольгино
—
23 мин
Технические характеристики
Параметры
Тип сделки
прямая продажа
Тип здания
кирпичный
Вид из окна
во двор
Параметры помещения
жилая площадь м²
45.7
площадь кухни м²
11.4
площадь комнат м²
16.8, 18.4, 10.5
Новость дня
Все новости
Сегодня — 24 апреля, пятница / Москва
"Продажа бывшего офиса ПСБ на Таганке на аукционе"
Сегодня — 24 апреля, пятница / Москва
Компания Level Group планирует создать в юго-восточной части Москвы Многофункциональный комплекс с отелем, термальным центром и спортивными объектами
Сегодня — 24 апреля, пятница / Москва
"Более миллиона квадратных метров складских помещений доступны для использования в Московском регионе"
Сегодня — 24 апреля, пятница / Санкт-Петербург
Инвестиции в петербургскую недвижимость уменьшились на 9% за первый квартал
Сегодня — 24 апреля, пятница / Москва
В Бутырском районе планируют построить бизнес-центр с амфитеатром.
Сегодня — 24 апреля, пятница / Москва
"ГК «Калашников» приобрела часть акций десяти швейных фабрик"
Сегодня — 24 апреля, пятница / Москва
"«Восток Инвестиции» приобрел долю в 20% компании Tasty Coffee"
Сегодня — 24 апреля, пятница / Москва
Магазин «М.Косметик» открыл свой первый филиал в Краснодарском крае, специализирующийся на товарах для дома.
Сегодня — 24 апреля, пятница / Москва
В Тверском районе Москвы планируется создание дворцово-садового комплекса с водоемом рядом с жилым домом.
Сегодня — 24 апреля, пятница / Москва
"Компания 'Росспиртпром' находится в процессе обсуждения возможности приобретения компании Stellar Group"
Вчера — 23 апреля, четверг / Москва
STONE предлагает комплексный ремонт офисных помещений по цене от 85 тыс. руб. за квадратный метр.
Вчера — 23 апреля, четверг / Краснодарский
"Продаётся агрокомбинат «Тепличный» в Краснодаре за 2,8 млрд рублей"
Вчера — 23 апреля, четверг / Москва
Nike увеличил срок действия исключительных прав на свои бренды в России до 2036 года
Вчера — 23 апреля, четверг / Москва
Расширение площади флагманского магазина AMAZING RED в ТРЦ "Авиапарк"
Вчера — 23 апреля, четверг / Москва
"Магазин «Азбука вкуса» теперь работает круглосуточно в ЖК «Остров»"
Вчера — 23 апреля, четверг / Москва
"Появится комьюнити-центр с крышным огородом в районе Прокшино"
Вчера — 23 апреля, четверг / Москва
"Разработчик жилищного проекта "Дом.РФ" продал земельные участки общей площадью 175 гектаров в 24 регионах за первый квартал"
Вчера — 23 апреля, четверг / Москва
"Снижение инвестиций в коммерческую недвижимость России в первом квартале на 64%"
Вчера — 23 апреля, четверг / Татарстан
В Казани будет возведен самый просторный президентский люкс России
Вчера — 23 апреля, четверг / Москва
В галерее «Чкалов» появились уголки с итальянскими и паназиатскими блюдами.