Снять ПСН 450 м²
ID 1563894
Цена
750 000 ₽/мес
Ставка
20 000 ₽ / м² / год
Площадь
450 м²
Этаж
1 из -
ИФНС
7724
агентство недвижимости
г Москва, проезд Ступинский, д 1А стр 3
На карте
Красный строитель
—
10 мин
Покровское
—
14 мин
Улица Академика Янгеля
—
20 мин
Описание
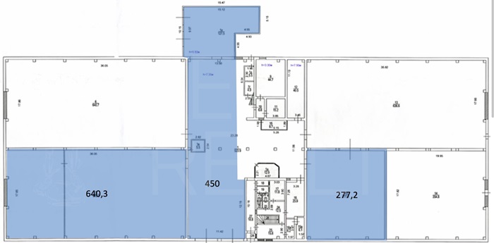
Аренда Производственно-складского (пищевое) помещения 450м2 ЮАО, D2 Красный строитель, м Академика Янгеля Описание: Сдается в аренду Склад-производство общей площадью 450м2, отдельный входы и ворота для евро-фуры в ноль (2шт) высота 3,7м ширина 3м, фура заезжает полностью, планировка открытая, подвала нет нагрузка на пол любая, высота потолков 7м и 5м до ригеля, санузлы в помещении мокрые точки можно развести, канализация, при морозах -20 в помещении +18 можно увеличить доп. оборудованием (вулканами), выделенная мощность на весь объект 1,2 МВт, помещение с ремонтом полы антипыль, Под пищевое производство можно сделать сливные трапы (арендатор сам).Есть возможность дополнительно арендовать офисные помещения от 25 до 300м2.Доступ 24/7, охрана, видеонаблюдение.Въезд на территорию платный 300р, первые 30 мин. бесплатно.Так же к этой площади можно арендовать + 640,3м2 без ремонта но собственник готов его сделать: стены и полы собственник а разводку мокрых точек, канализации, сливных трапов арендатор делает сам Расположение: Помещение надоится в пешей доступности от метро Улица Академика Янгеля (15 мин.) и станции D2 Красный Строитель (7 мин.), Транспортом: 1 км от МСД, 2,5км от МКАДа , 8 км от Каширского шоссе,5,5 км от Варшавского шоссе. Коммуникации: все есть! Парковка: 1 м/м входит в стоимость, легковой транспорт 4500р1 м/м в месяц, Газель 5,500р 1 м/м в месяц, Фура 6500р 1 м/м в месяц. Въезд на территорию платный 300р, первые 30 мин. бесплатно. Форма сделки: Прямая аренда от собственника! УСН, НДС 5% включен в стоимость. Операционные расходы включены, коммунальные платежи по счетчикам. Арендные каникулы обсуждаются. Юр. адрес предоставляется. Договор аренды возможен как 11 месяцев так и долгосрочный. Объект №3100-984707.
Расположение
г Москва, проезд Ступинский, д 1А стр 3
Красный строитель
—
10 мин
Покровское
—
14 мин
Улица Академика Янгеля
—
20 мин
Технические характеристики
Новость дня
Все новости
Вчера — 8 мая, пятница / Москва
Усадьбу XVIII–XIX веков в центре Москвы выставили на аукцион «Дом.РФ»
Вчера — 8 мая, пятница / Москва
Бизнес-центр площадью 43,3 тыс. кв. м открыли в окрестностях Филевского парка.
Вчера — 8 мая, пятница / Крым
Гостиница на полуострове Крым выставлена на продажу по цене 117,7 миллиона рублей.
Вчера — 8 мая, пятница / Москва
В Нагатинской пойме откроется фитнес-клуб в гостиничном комплексе
Вчера — 8 мая, пятница / Москва
"Сменился владелец Торгового центра «Гудзон»"
Вчера — 8 мая, пятница / Москва
"Открытие обновленного футбольного комплекса в СберСити"
Вчера — 8 мая, пятница / Нижегородская
В Нижнем Новгороде будет восстановлен исторический здание для коммерческой аренды.
Вчера — 8 мая, пятница / Архангельская
Офисное здание в центре Архангельска выставлено на торги площадкой «Дом.РФ»
Вчера — 8 мая, пятница / Москва
Группа "Гранд НН" из Нижнего Новгорода продает пять компаний за 3,3 миллиарда рублей.
Вчера — 8 мая, пятница / Москва
Москва увеличила площадь жилой недвижимости на более чем 250 тыс. кв. м с начала года по Межевому плану территории.
7 мая, четверг / Москва
"Маркетплейсы занимают всего 9 % рынка онлайн-продаж продуктов питания"
7 мая, четверг / Москва
"ТРК «Зеленопарк» в Подмосковье выставлен на продажу компанией «Сбербанк капитал»"
7 мая, четверг / Москва
X5 Group планирует приобрести часть акций Zotman Pizza.
7 мая, четверг / Москва
"Уровень вакантности в офисном сегменте рынка Москвы достиг 5,3%"
7 мая, четверг / Москва
"В Московском регионе спрос на склады вырос на 70% благодаря онлайн-торговле и логистике"
7 мая, четверг / Москва
"Снижение объема розничных продаж на 0,5% за первый квартал"
7 мая, четверг / Москва
Планируется строительство девятиэтажного делового центра площадью 16 тыс. кв. м в Щукино.
7 мая, четверг / Москва
Развенчивание мифов: Пять исторических домов в районе Арбата пройдут капитальный ремонт.
7 мая, четверг / Москва
Продажа ТЦ "Летний сад" в Москве группой "Эталон" привела к потере в 2,2 млрд рублей.
7 мая, четверг / Москва
Предприятие "Свобода" под угрозой банкротства из-за задолженности в 125 миллионов рублей