Описание
Предложение в аренду № 63242.
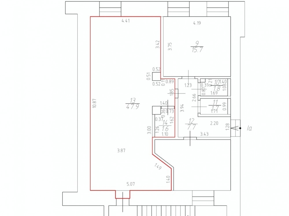
Аренда помещения 50 м², Новопесчаная улица
.
. 1. Локация
. * выход на Новопесчаную улицу — удобная транспортная доступность;
. * в зоне притяжения жилых кварталов;
. * рядом: магазины, аптеки, остановки транспорта;
. * локальная среда с устойчивым спросом на бытовые услуги и товары.
.
. 2. Характеристики помещения
. * площадь: 50 м²;
. * вход: один, с Новопесчаной улицы;
. * планировка: зальная (свободная);
. * есть промышленная вытяжка (подходит для общепита);
. * собственный санузел;
. * готово к эксплуатации (без капремонта);
. * естественное освещение.
.
. 3. Инвестиционная привлекательность
. * низкая арендная ставка относительно магистральных локаций;
. * экономия на вентиляции (есть вытяжка) и санузле (в помещении);
. * универсальность планировки — подходит для разных форматов бизнеса;
. * быстрая окупаемость за счёт компактности и готовности к запуску.
.
. Варианты использования
. * кофейня / закусочная;
. * магазин шаговой доступности;
. * студия красоты / салон услуг;
. * мини‑офис / клиентский центр;
. * шоурум / пункт выдачи;
. * мастерская / учебный класс.
.
. Для уточнения условий и просмотра — свяжитесь с нами.
Торговая недвижимость, Street Retail. 1 линия домов. Ресторанная вытяжка. Витрины. Место для рекламы. Зона разгрузки. Проходное и проездное место.
Без комиссии.
Аренда помещения 50 м², Новопесчаная улица
.
. 1. Локация
. * выход на Новопесчаную улицу — удобная транспортная доступность;
. * в зоне притяжения жилых кварталов;
. * рядом: магазины, аптеки, остановки транспорта;
. * локальная среда с устойчивым спросом на бытовые услуги и товары.
.
. 2. Характеристики помещения
. * площадь: 50 м²;
. * вход: один, с Новопесчаной улицы;
. * планировка: зальная (свободная);
. * есть промышленная вытяжка (подходит для общепита);
. * собственный санузел;
. * готово к эксплуатации (без капремонта);
. * естественное освещение.
.
. 3. Инвестиционная привлекательность
. * низкая арендная ставка относительно магистральных локаций;
. * экономия на вентиляции (есть вытяжка) и санузле (в помещении);
. * универсальность планировки — подходит для разных форматов бизнеса;
. * быстрая окупаемость за счёт компактности и готовности к запуску.
.
. Варианты использования
. * кофейня / закусочная;
. * магазин шаговой доступности;
. * студия красоты / салон услуг;
. * мини‑офис / клиентский центр;
. * шоурум / пункт выдачи;
. * мастерская / учебный класс.
.
. Для уточнения условий и просмотра — свяжитесь с нами.
Торговая недвижимость, Street Retail. 1 линия домов. Ресторанная вытяжка. Витрины. Место для рекламы. Зона разгрузки. Проходное и проездное место.
Без комиссии.
Расположение
г Москва, пр-кт Ленинградский, д 69 стр 1
Сокол
—
3 мин
Аэропорт
—
11 мин
Панфиловская
—
16 мин
Технические характеристики
Параметры
Статус владельца объявления
агентство
Новость дня
Расширение возможностей для B2B-клиентов: Avito вводит новые услуги для строительства складов
На платформе Авито теперь доступна категория "Коммерческое строительство" в сегменте услуг, предлагающая широкий выбор специализированных работ и возведение объектов "под ключ" для бизнеса, что упрощает поиск подрядчиков и субподрядчиков для коммерческих проектов.
Все новости
30 апреля, четверг / Москва
"Бумеранг Капитал" увеличил свою долю в сети кафе-пекарен "Цех 85" до 50%
30 апреля, четверг / Ставропольский
В Кисловодске начался проект строительства инвестиционного отеля "Реликт"
30 апреля, четверг / Москва
Ресторан «Долина 5165» и магазин Sokolov теперь доступны посетителям ТРЦ Avenue Sever
30 апреля, четверг / Москва
"Новый флагманский магазин под названием «Флаувау» открыл свои двери на Мясницкой улице"
30 апреля, четверг / Москва
"Уровень вакансии на складах в Московском регионе достиг 5,4% из-за увеличения предложений по субаренде"
30 апреля, четверг / Москва
"Прогнозируется незначительный прирост числа туристов в первом квартале 2026 года - всего 2,8%"
30 апреля, четверг / Москва
Компания "Ориентир" планирует вложить до 150 млрд рублей в расширение бизнеса и развитие новых секторов.
30 апреля, четверг / Москва
"Завершено строительство наземной парковки на 400 автомобильных мест в парке «Ривер Парк Коломенское»"
30 апреля, четверг / Москва
Скорось открытия новых магазинов «Лэтуаль» снизится - 150 точек закроются к 2026 году.
30 апреля, четверг / Москва
Смайл-бар сети "Белая точка" теперь доступен посетителям ТЦ "Левел Причальный"
29 апреля, среда / Москва
Московский цех открыл производство 3D-принтеров для металлической печати.
29 апреля, среда / Москва
БМ-банк завершил продажу большей части площадей в ТЦ «Весна» на Новом Арбате.
29 апреля, среда / Москва
Перефразированное название: "Сеть магазинов 'Жизньмарт' возобновляет свою деятельность в Челябинске"
29 апреля, среда / Санкт-Петербург
Сервисный офис «Практик» начал свою работу на Октябрьской набережной в Санкт-Петербурге.
29 апреля, среда / Санкт-Петербург
Строительство складских помещений в Санкт-Петербурге и Ленинградской области увеличилось в 2,5 раза.
29 апреля, среда / Москва
Москва увеличила объем строительства в рамках программы МПТ до 9,5 миллионов квадратных метров
29 апреля, среда / Санкт-Петербург
Соседский центр "ЖИВИ Клуб" открыл свои двери в Новоселье
29 апреля, среда / Москва
"Завершено строительство пятиэтажной наземной парковки в районе Нагатинский Затон"
29 апреля, среда / Санкт-Петербург
Рекордный уровень строительства складов зафиксирован в Санкт-Петербурге и Ленинградской области
29 апреля, среда / Москва
Аренда складов в Москве снизилась на 25%