Описание
Предложение в аренду № 63442.
Парковка: наземная.
Предлагаем в аренду помещение в офисно-складском комплексе класса С в Нижегородском районе. Высокая транспортная доступность, удобные подъездные пути от ТТК, МСД. До станции Новохохловская 5 минут пешком.
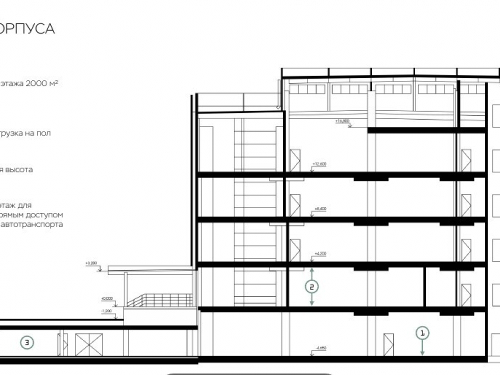
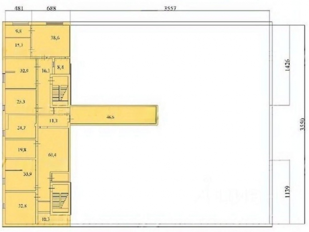
. Помещение 2085,5м2: первый этаж- складская зона площадью 1634,5м2 и с потолками 7м и антресоль с офисом 450м2.
. Ворота в ноль и дебаркадеры.
. В офисной части установлены системы вентиляции, есть кухня. Выделенная мощность 150квт.
. Для легкового и грузового автотранспорта предусмотрены наземные автостоянки, есть возможность подъехать к складским и производственным зданиям на грузовом транспорте для погрузки-разгрузки. Охраняемая территория, пропускной режим.
. Возможность работы 24/7.
. В ставку не включены к/у.
. Не рассматриваются пищевые производства, авто, бпла.
. Помещение освобождается 1 июня 2026.
.
Без комиссии.
Парковка: наземная.
Предлагаем в аренду помещение в офисно-складском комплексе класса С в Нижегородском районе. Высокая транспортная доступность, удобные подъездные пути от ТТК, МСД. До станции Новохохловская 5 минут пешком.
. Помещение 2085,5м2: первый этаж- складская зона площадью 1634,5м2 и с потолками 7м и антресоль с офисом 450м2.
. Ворота в ноль и дебаркадеры.
. В офисной части установлены системы вентиляции, есть кухня. Выделенная мощность 150квт.
. Для легкового и грузового автотранспорта предусмотрены наземные автостоянки, есть возможность подъехать к складским и производственным зданиям на грузовом транспорте для погрузки-разгрузки. Охраняемая территория, пропускной режим.
. Возможность работы 24/7.
. В ставку не включены к/у.
. Не рассматриваются пищевые производства, авто, бпла.
. Помещение освобождается 1 июня 2026.
.
Без комиссии.
Расположение
г Москва, ул Новохохловская, д 21 к 2 стр 3
Новохохловская
—
8 мин
Новохохловская
—
8 мин
Нижегородская
—
12 мин
Технические характеристики
Новость дня
Все новости
24 апреля, пятница / Москва
"Продажа бывшего офиса ПСБ на Таганке на аукционе"
24 апреля, пятница / Москва
Компания Level Group планирует создать в юго-восточной части Москвы Многофункциональный комплекс с отелем, термальным центром и спортивными объектами
24 апреля, пятница / Москва
"Более миллиона квадратных метров складских помещений доступны для использования в Московском регионе"
24 апреля, пятница / Санкт-Петербург
Инвестиции в петербургскую недвижимость уменьшились на 9% за первый квартал
24 апреля, пятница / Москва
В Бутырском районе планируют построить бизнес-центр с амфитеатром.
24 апреля, пятница / Москва
"ГК «Калашников» приобрела часть акций десяти швейных фабрик"
24 апреля, пятница / Москва
"«Восток Инвестиции» приобрел долю в 20% компании Tasty Coffee"
24 апреля, пятница / Москва
Магазин «М.Косметик» открыл свой первый филиал в Краснодарском крае, специализирующийся на товарах для дома.
24 апреля, пятница / Москва
В Тверском районе Москвы планируется создание дворцово-садового комплекса с водоемом рядом с жилым домом.
24 апреля, пятница / Москва
"Компания 'Росспиртпром' находится в процессе обсуждения возможности приобретения компании Stellar Group"
23 апреля, четверг / Москва
STONE предлагает комплексный ремонт офисных помещений по цене от 85 тыс. руб. за квадратный метр.
23 апреля, четверг / Краснодарский
"Продаётся агрокомбинат «Тепличный» в Краснодаре за 2,8 млрд рублей"
23 апреля, четверг / Москва
Nike увеличил срок действия исключительных прав на свои бренды в России до 2036 года
23 апреля, четверг / Москва
Расширение площади флагманского магазина AMAZING RED в ТРЦ "Авиапарк"
23 апреля, четверг / Москва
"Магазин «Азбука вкуса» теперь работает круглосуточно в ЖК «Остров»"
23 апреля, четверг / Москва
"Появится комьюнити-центр с крышным огородом в районе Прокшино"
23 апреля, четверг / Москва
"Разработчик жилищного проекта "Дом.РФ" продал земельные участки общей площадью 175 гектаров в 24 регионах за первый квартал"
23 апреля, четверг / Москва
"Снижение инвестиций в коммерческую недвижимость России в первом квартале на 64%"
23 апреля, четверг / Татарстан
В Казани будет возведен самый просторный президентский люкс России
23 апреля, четверг / Москва
В галерее «Чкалов» появились уголки с итальянскими и паназиатскими блюдами.