Описание
Квартира-студия (апартаменты) с качественным ремонтом и стильным дизайном.
Отдельный кадастровый номер, все сведения внесены в ЕГРН.
Студия расположена в старом, обжитом районе Москвы, в одном из наиболее инвестиционно-привлекательных районов Москвы - активными темпами ведется строительство метро (станция минут 5-7 пешком от дома). Открытие метро увеличивает стоимость недвижимости до 30 процентов!!!
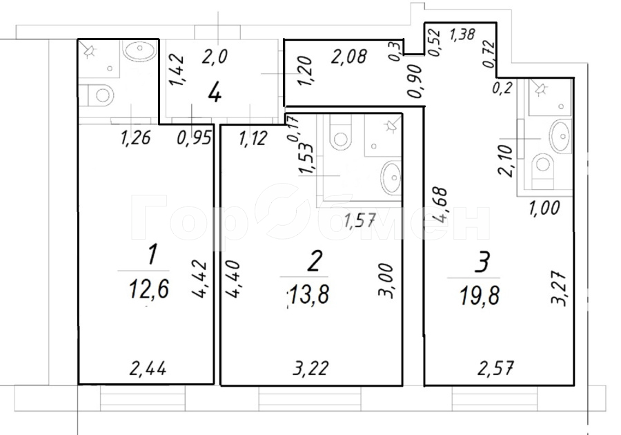
Высокий первый этаж 14-ти этажного дома. Студия 1 на схеме. Площадь 12,6 кв.м, санузел совмещенный, выводы под кухню, установлены счетчики воды и электроэнергии. Окна выходят во двор.
Тихий большой двор, много зелени, двор ухоженный, территория благоустроена.Во дворе всегда есть места для парковки.
Насыщенная инфраструктура, все самое необходимое в шаговой доступности. Зеленый район. Рядом большой дендропарк, парк-усадьба Царицыно.
Прекрасный вариант, как для проживания, так и для сдачи в аренду (спрос высокий).
Это апартаменты, прописка не возможна!
В собственности физлица, полная стоимость в договоре. Возможна ипотека.
Отдельный кадастровый номер, все сведения внесены в ЕГРН.
Студия расположена в старом, обжитом районе Москвы, в одном из наиболее инвестиционно-привлекательных районов Москвы - активными темпами ведется строительство метро (станция минут 5-7 пешком от дома). Открытие метро увеличивает стоимость недвижимости до 30 процентов!!!
Высокий первый этаж 14-ти этажного дома. Студия 1 на схеме. Площадь 12,6 кв.м, санузел совмещенный, выводы под кухню, установлены счетчики воды и электроэнергии. Окна выходят во двор.
Тихий большой двор, много зелени, двор ухоженный, территория благоустроена.Во дворе всегда есть места для парковки.
Насыщенная инфраструктура, все самое необходимое в шаговой доступности. Зеленый район. Рядом большой дендропарк, парк-усадьба Царицыно.
Прекрасный вариант, как для проживания, так и для сдачи в аренду (спрос высокий).
Это апартаменты, прописка не возможна!
В собственности физлица, полная стоимость в договоре. Возможна ипотека.
Расположение
г Москва, ул Бирюлёвская, д 24 к 1
Царицыно
—
10 мин
Царицыно
—
10 мин
Покровское
—
24 мин
Орехово
—
34 мин
Технические характеристики
Параметры
Тип сделки
прямая продажа
Тип здания
блочный
Вид из окна
во двор
Параметры помещения
жилая площадь м²
6.6
площадь кухни м²
1
площадь комнат м²
6.6
Новость дня
Все новости
Вчера — 21 мая, четверг / Москва
"Запланировано открытие производственной линии источников питания и светодиодных плат в промпарке «Балашиха»"
Вчера — 21 мая, четверг / Москва
Инфраструктура торговых центров не соответствует требованиям для открытия фитнес-клубов.
Вчера — 21 мая, четверг / Москва
Сеть Glasman из Казахстана рассматривает возможности в России
Вчера — 21 мая, четверг / Москва
Земельные активы компании AVA Group в Москве попали на аукцион
Вчера — 21 мая, четверг / Москва
Спрос на коммерческую недвижимость снижается на Кубани.
Вчера — 21 мая, четверг / Москва
Новый центр сотрудничества с Китаем открылся в Сочи
Вчера — 21 мая, четверг / Москва
В России грядет увеличение закрытия магазинов модной одежды из-за роста интернет-торговли.
Вчера — 21 мая, четверг / Москва
"Планы Х4 Padel на расширение сети падел-клубов до 100"
Вчера — 21 мая, четверг / Москва
Сеть Пунктов Выдачи Заказов подвергается возможности расширения за счет аренды площадей в Торговых Центрах.
Вчера — 21 мая, четверг / Москва
40% плановых новых бизнес-центров Москвы могут задержаться до 2027 года
Вчера — 21 мая, четверг / Краснодарский
"Остров Первый планирует восстановить разрушенный пирс «Рица» в Сухуме"
Вчера — 21 мая, четверг / Москва
"«Магнит» и Stars Coffee приостановили сотрудничество по проекту кафе Red Stars"
20 мая, среда / Калининградская
"Строительство контейнерного терминала в Калининграде обойдется в 560 млн рублей"
20 мая, среда / Санкт-Петербург
Имущество агрохолдинга CBS выставлено на торги в Ленинградской области.
20 мая, среда / Санкт-Петербург
Рост Light Industrial в Петербургском регионе и Ленобласти превысил прошлогодний показатель на 44%
20 мая, среда / Ивановская
"Корпорация "Магнит" вложила 1,5 млрд рублей в обновление логистического центра в Иваново"
20 мая, среда / Москва
Реконструкция офисного здания и медицинского центра в Западном Дегунино: что нужно знать.
20 мая, среда / Москва
Производитель грузоподъемного оборудования «ТакТоч» присоединился к промышленному кластеру «Реалитек»
20 мая, среда / Ставропольский
Откроется фитнес-клуб DDX Fitness в Пятигорске.