Снять офис 6027 м²
ID 1646331
Цена
17 578 750 ₽/мес
Ставка
35 000 ₽ / м² / год
Площадь
6027 м²
Класс
B
Этаж
5 из 9
ИФНС
7722
агентство недвижимости
г Москва, ул Новохохловская, д 29
На карте
Новохохловская
—
1 мин
Нижегородская
—
15 мин
Нижегородская
—
15 мин
Нижегородская
—
15 мин
Новохохловская
—
1 мин
Нижегородская
—
15 мин
Описание
Предлагаем в аренду офис на 503 - 1339 сотрудников в бизнес-центре "Ринг Парк".
Разработаем планировку под вашу команду бесплатно с неограниченными правками.
Площадь: 6 027 м².
Состояние: готов к въезду с 01.07.2027.
Арендная плата: 17 578 750 руб./мес.
Ставка: 35 000 руб./м²/год (включая эксплуатацию).
Налогообложение: включая НДС.
Коммунальные расходы: оплачиваются по факту.
Тип аренды: Прямая аренда.
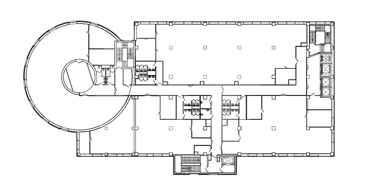
Этаж: 1, 2, 5 из 9.
Помещение с функциональной смешанной планировкой. Этаж целиком, ресепшен, переговорные комнаты, собственный санузел, высокие потолки, отдельный вход.
Вентиляция: приточно-вытяжная.
Кондиционирование: центральное.
Охрана: круглосуточная охрана здания.
Пожарная сигнализация: спринклерная система.
Бизнес-центр Ринг Парк класса B расположен рядом со станцией МЦД Новохохловская.
Удобный выезд на:
ТТК, МСД.
Инфраструктура здания:
Наземная парковка (300 мест), кафе и ресторан, банкомат, продуктовый магазин, 4 пассажирских лифта.
В пешей доступности:
ТЦ Город.
Юридические адреса обслуживаются в налоговой №22.
Звоните или пишите в чат - организуем просмотр в день обращения и направим презентацию по объекту.
Этот лот состоит из нескольких помещений: 1996 кв. м., 1996 кв. м. и 2035 кв. м.
Бесплатно разработаем планировку под вашу команду, рассчитаем оптимальную рассадку и зонирование.
*Количество рабочих мест рассчитано автоматически: от 4,5 до 12 м² на человека.
ID объекта: 035169
Разработаем планировку под вашу команду бесплатно с неограниченными правками.
Площадь: 6 027 м².
Состояние: готов к въезду с 01.07.2027.
Арендная плата: 17 578 750 руб./мес.
Ставка: 35 000 руб./м²/год (включая эксплуатацию).
Налогообложение: включая НДС.
Коммунальные расходы: оплачиваются по факту.
Тип аренды: Прямая аренда.
Этаж: 1, 2, 5 из 9.
Помещение с функциональной смешанной планировкой. Этаж целиком, ресепшен, переговорные комнаты, собственный санузел, высокие потолки, отдельный вход.
Вентиляция: приточно-вытяжная.
Кондиционирование: центральное.
Охрана: круглосуточная охрана здания.
Пожарная сигнализация: спринклерная система.
Бизнес-центр Ринг Парк класса B расположен рядом со станцией МЦД Новохохловская.
Удобный выезд на:
ТТК, МСД.
Инфраструктура здания:
Наземная парковка (300 мест), кафе и ресторан, банкомат, продуктовый магазин, 4 пассажирских лифта.
В пешей доступности:
ТЦ Город.
Юридические адреса обслуживаются в налоговой №22.
Звоните или пишите в чат - организуем просмотр в день обращения и направим презентацию по объекту.
Этот лот состоит из нескольких помещений: 1996 кв. м., 1996 кв. м. и 2035 кв. м.
Бесплатно разработаем планировку под вашу команду, рассчитаем оптимальную рассадку и зонирование.
*Количество рабочих мест рассчитано автоматически: от 4,5 до 12 м² на человека.
ID объекта: 035169
Расположение
г Москва, ул Новохохловская, д 29
Новохохловская
—
1 мин
Нижегородская
—
15 мин
Нижегородская
—
15 мин
Нижегородская
—
15 мин
Новохохловская
—
1 мин
Нижегородская
—
15 мин
Технические характеристики
Параметры
Статус владельца объявления
агентство
Класс
b
Новость дня
Расширение возможностей для B2B-клиентов: Avito вводит новые услуги для строительства складов
На платформе Авито теперь доступна категория "Коммерческое строительство" в сегменте услуг, предлагающая широкий выбор специализированных работ и возведение объектов "под ключ" для бизнеса, что упрощает поиск подрядчиков и субподрядчиков для коммерческих проектов.
Все новости
Сегодня — 4 мая, понедельник / Москва
Вложения в недвижимость России за первую половину текущего года составили 169,5 миллиарда рублей.
Сегодня — 4 мая, понедельник / Москва
Российский складской рынок продолжает расти: площадь складских помещений превысит 60 млн кв. м к концу 2026 года
Сегодня — 4 мая, понедельник / Москва
"Компания "Галс-Девелопмент" получила одобрение на строительство делового центра "Дубининский"."
Сегодня — 4 мая, понедельник / Москва
Инвестиционный фонд "Бумеранг Капитал" стал владельцем половины сети кофеен "Цех 85"
Сегодня — 4 мая, понедельник / Краснодарский
В Анапе откроется первый отель с инновационными IT-сервисами
Сегодня — 4 мая, понедельник / Москва
Планируется строительство торгового центра площадью свыше 6 тыс. кв. м в Краснопахорском районе Москвы.
Сегодня — 4 мая, понедельник / Москва
Смена собственника у клубов «Дикая орхидея» и «Дефиле»
Сегодня — 4 мая, понедельник / Вологодская
"Прекращена деятельность "наливаек" и магазинов электронных сигарет в Вологодской области"
Сегодня — 4 мая, понедельник / Москва
"Exeed перемещает производство из Подмосковья на площадку АГР в Шушарах"
Сегодня — 4 мая, понедельник / Москва
На юге Москвы запланировано строительство ТПУ "Кленовый бульвар" на площади 2 гектара.
30 апреля, четверг / Москва
"Бумеранг Капитал" увеличил свою долю в сети кафе-пекарен "Цех 85" до 50%
30 апреля, четверг / Ставропольский
В Кисловодске начался проект строительства инвестиционного отеля "Реликт"
30 апреля, четверг / Москва
Ресторан «Долина 5165» и магазин Sokolov теперь доступны посетителям ТРЦ Avenue Sever
30 апреля, четверг / Москва
"Новый флагманский магазин под названием «Флаувау» открыл свои двери на Мясницкой улице"
30 апреля, четверг / Москва
"Уровень вакансии на складах в Московском регионе достиг 5,4% из-за увеличения предложений по субаренде"
30 апреля, четверг / Москва
"Прогнозируется незначительный прирост числа туристов в первом квартале 2026 года - всего 2,8%"
30 апреля, четверг / Москва
Компания "Ориентир" планирует вложить до 150 млрд рублей в расширение бизнеса и развитие новых секторов.
30 апреля, четверг / Москва
"Завершено строительство наземной парковки на 400 автомобильных мест в парке «Ривер Парк Коломенское»"
30 апреля, четверг / Москва
Скорось открытия новых магазинов «Лэтуаль» снизится - 150 точек закроются к 2026 году.
30 апреля, четверг / Москва
Смайл-бар сети "Белая точка" теперь доступен посетителям ТЦ "Левел Причальный"