Купить офис 51 м² в деловом квартале Товарищество Рябовской Мануфактуры
ID 1669578
Цена
24 298 999 ₽
Ставка
476 451 ₽ / м²
Площадь
51 м²
Класс
B
Этаж
2 из -
ИФНС
7726
агентство недвижимости
г Москва, пер Холодильный, д 3
На карте
Тульская
—
2 мин
Шаболовская
—
19 мин
ЗИЛ
—
22 мин
Описание
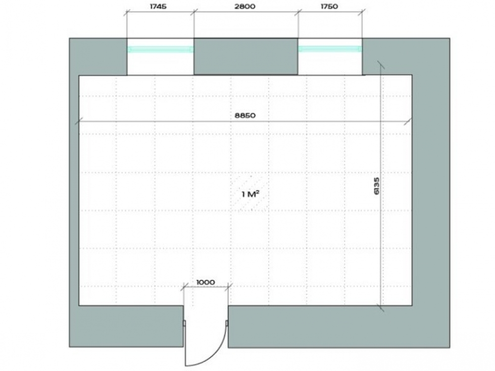
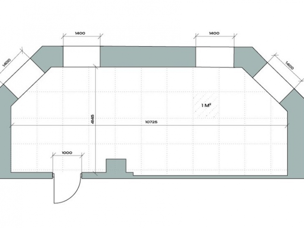
Loft-квартал «Товарищество Рябовской Мануфактуры» класса B
Продажа помещения площадью 51,7 кв.м
Cтоимость кв. метра 470 000,00 руб. включая НДС, возможен торг
Loft-квартал «Товарищество Рябовской Мануфактуры» расположен по адресу: Холодильный переулок, 3, Москва
Продажа помещения площадью 51,7 кв.м
Cтоимость кв. метра 470 000,00 руб. включая НДС, возможен торг
Loft-квартал «Товарищество Рябовской Мануфактуры» расположен по адресу: Холодильный переулок, 3, Москва
Расположение
г Москва, пер Холодильный, д 3
Тульская
—
2 мин
Шаболовская
—
19 мин
ЗИЛ
—
22 мин
Технические характеристики
Параметры
Статус владельца объявления
агентство
Класс
b
Свободные помещения в Деловой квартал Товарищество Рябовской Мануфактуры
Новость дня
Все новости
8 мая, пятница / Москва
Усадьбу XVIII–XIX веков в центре Москвы выставили на аукцион «Дом.РФ»
8 мая, пятница / Москва
Бизнес-центр площадью 43,3 тыс. кв. м открыли в окрестностях Филевского парка.
8 мая, пятница / Крым
Гостиница на полуострове Крым выставлена на продажу по цене 117,7 миллиона рублей.
8 мая, пятница / Москва
В Нагатинской пойме откроется фитнес-клуб в гостиничном комплексе
8 мая, пятница / Москва
"Сменился владелец Торгового центра «Гудзон»"
8 мая, пятница / Москва
"Открытие обновленного футбольного комплекса в СберСити"
8 мая, пятница / Нижегородская
В Нижнем Новгороде будет восстановлен исторический здание для коммерческой аренды.
8 мая, пятница / Архангельская
Офисное здание в центре Архангельска выставлено на торги площадкой «Дом.РФ»
8 мая, пятница / Москва
Группа "Гранд НН" из Нижнего Новгорода продает пять компаний за 3,3 миллиарда рублей.
8 мая, пятница / Москва
Москва увеличила площадь жилой недвижимости на более чем 250 тыс. кв. м с начала года по Межевому плану территории.
7 мая, четверг / Москва
"Маркетплейсы занимают всего 9 % рынка онлайн-продаж продуктов питания"
7 мая, четверг / Москва
"ТРК «Зеленопарк» в Подмосковье выставлен на продажу компанией «Сбербанк капитал»"
7 мая, четверг / Москва
X5 Group планирует приобрести часть акций Zotman Pizza.
7 мая, четверг / Москва
"Уровень вакантности в офисном сегменте рынка Москвы достиг 5,3%"
7 мая, четверг / Москва
"В Московском регионе спрос на склады вырос на 70% благодаря онлайн-торговле и логистике"
7 мая, четверг / Москва
"Снижение объема розничных продаж на 0,5% за первый квартал"
7 мая, четверг / Москва
Планируется строительство девятиэтажного делового центра площадью 16 тыс. кв. м в Щукино.
7 мая, четверг / Москва
Развенчивание мифов: Пять исторических домов в районе Арбата пройдут капитальный ремонт.
7 мая, четверг / Москва
Продажа ТЦ "Летний сад" в Москве группой "Эталон" привела к потере в 2,2 млрд рублей.
7 мая, четверг / Москва
Предприятие "Свобода" под угрозой банкротства из-за задолженности в 125 миллионов рублей