Главная
Аренда производственных помещений в Москве и МО
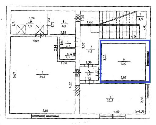
Производственное помещение 13 м² в Москва, Иловайская, 10А
Снять производственное помещение 13 м² в Москва, Иловайская, 10А
ID 1671532
Цена
9 100 ₽/мес
Ставка
8 400 ₽ / м² / год
Площадь
13 м²
Этаж
2 из 2
ИФНС
7723
агентство недвижимости
г Москва, ул Иловайская, д 10А
На карте
Текстильщики
Текстильщики
Текстильщики
Перерва
—
4 мин
Депо
—
19 мин
Курьяново
—
20 мин
Описание
Предлагается в аренду помещение свободного назначения 13 м2 в капитальном здании на 2-м этаже. Подойдет для размещения склада, небольшого производства. Вход в помещение по лестнице, лифта нет. Входная стандартная дверь 200/80 см. Расположен в здании без отопления. Отопление возможно только от электричества. В здании есть вода и канализация.Необходимо оборудовать пожарную сигнализацию в зависимости от вида деятельности арендатора и застраховать помещение от несчастного случая.Огороженная и охраняемая территория. Арендная ставка включает НДС.Удобное местоположение на юго-востоке Москвы по адресу ул. Иловайская д.10а, с.4. Лот № PN-290
Расположение
г Москва, ул Иловайская, д 10А
Текстильщики
Текстильщики
Текстильщики
Перерва
—
4 мин
Депо
—
19 мин
Курьяново
—
20 мин
Технические характеристики
Новость дня
Все новости
Сегодня — 21 апреля, вторник / Москва
Сокращение объема инвестиций в недвижимость Московского региона за первый квартал на 20%
Сегодня — 21 апреля, вторник / Москва
"Компания «Магнит» начала производство замороженных полуфабрикатов на основе теста"
Сегодня — 21 апреля, вторник / Москва
"Открытие производства компрессионного трикотажа в парке "Руднево" в рамках индустриализации".
Сегодня — 21 апреля, вторник / Москва
Бизнес-центр "Кубик" в Мякинино приобретен компанией "ВИМ Сбережения"
Сегодня — 21 апреля, вторник / Москва
Parametr оборудован корпусом формата "флекс бокс" для промпарка Кувекино.
Сегодня — 21 апреля, вторник / Москва
Объем новых торговых помещений в Москве уменьшился до 9,5 тыс. квадратных метров за первый квартал
Сегодня — 21 апреля, вторник / Красноярский
"Ozon открыл новый склад в Красноярском крае"
Вчера — 20 апреля, понедельник / Санкт-Петербург
«"Охта Групп" внесла изменения в дизайн лофт-квартала "Скороход"»
Вчера — 20 апреля, понедельник / Санкт-Петербург
"Реставрация исторической трансформаторной подстанции в Петербурге завершена"
Вчера — 20 апреля, понедельник / Москва
Собственость на российскую сеть кофеен Cofix может быть передана новому владельцу
Вчера — 20 апреля, понедельник / Москва
UPECO приобрела аренду площади в размере 966 квадратных метров в бизнес-парке "Сколково Парк".
Вчера — 20 апреля, понедельник / Москва
"Реконструкция ТРЦ «Европа» стартует в Калининграде"
Вчера — 20 апреля, понедельник / Москва
"Площадь ОЭЗ «Технополис Москва» увеличилась на 38 гектаров"
Вчера — 20 апреля, понедельник / Москва
"Строительство крытого футбольного манежа в Восточном Административном Округе обойдется в 220 миллионов рублей"
Вчера — 20 апреля, понедельник / Москва
В Краснопахорском районе откроется торговая и бытовая зона площадью свыше 800 квадратных метров.
Вчера — 20 апреля, понедельник / Москва
ГК ФСК запустила новый завод по производству строительных материалов в Зеленограде.
Вчера — 20 апреля, понедельник / Санкт-Петербург
Логистическая компания арендовала офисное помещение площадью 730 квадратных метров в бизнес-центре Leader Tower
Вчера — 20 апреля, понедельник / Санкт-Петербург
"Подрядчик выбран для восстановления XIX века почтовой станции в Ленинградской области"
17 апреля, пятница / Москва
"Компания, связанная с Олегом Дерипаской, отозвала свое управление гостиничным комплексом «Имеретинский» в Сириусе"
17 апреля, пятница / Москва
"Выручка компании X5 Group увеличилась на 11,3% за первый квартал"