Снять офис 2809 м² в БЦ Новосущевский
ID 1739570
Цена
13 735 250 ₽/мес
Ставка
58 677 ₽ / м² / год
Площадь
2809 м²
Класс
A
Этаж
5 из 22
ИФНС
7715
агентство недвижимости
г Москва, ул Сущёвский Вал, д 18
На карте
Савеловская
—
14 мин
Марьина Роща
—
9 мин
Савёловская
—
14 мин
Савёловская
—
14 мин
Марьина Роща
—
9 мин
Марьина Роща
—
9 мин
Марьина Роща
—
9 мин
Описание
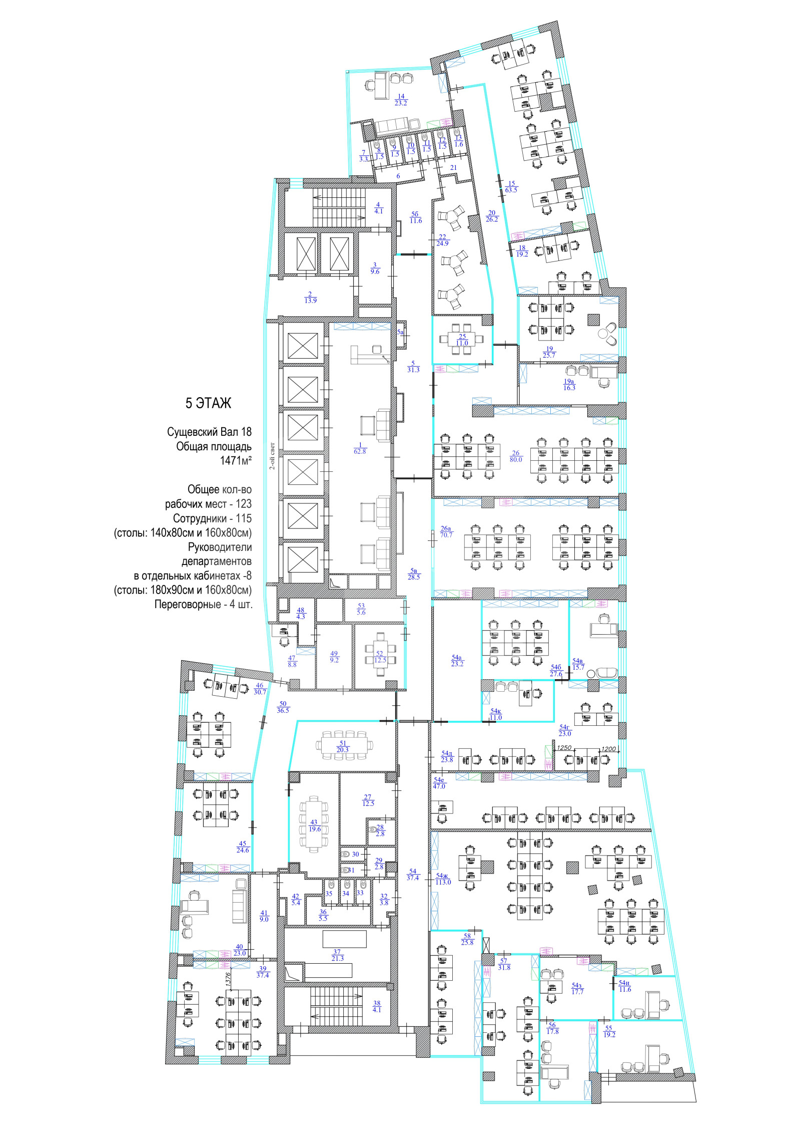
Предлагаем в аренду офис на 235 - 624 сотрудников в бизнес-центре "НОВО (Новосущевский)".
Разработаем планировку под вашу команду бесплатно с неограниченными правками.
Площадь: 2 809 м².
Состояние: готов к въезду с 01.07.2026.
Арендная плата: 13 735 250 руб./мес.
Ставка: 58 677 руб./м²/год (включая эксплуатацию).
Налогообложение: включая НДС.
Коммунальные расходы: оплачиваются по факту.
Тип аренды: Прямая аренда.
Этаж: 2, 5 из 22.
Помещение с функциональной смешанной планировкой.
Вентиляция: приточно-вытяжная.
Кондиционирование: центральное.
Охрана: система видео-наблюдения.
Пожарная сигнализация: спринклерная система.
Бизнес-центр Новосущевский класса А расположен рядом с метро Савеловская и Марьина Роща.
Удобный выезд на:
ТТК.
Инфраструктура здания:
Наземная парковка на 350 мест, кафе и ресторан, продуктовый магазин, конференц-зал, 6 пассажирских лифтов.
В пешей доступности:
Новослободский парк, ТЦ Савёловский.
Юридические адреса обслуживаются в налоговой №15.
Звоните или пишите в чат - организуем просмотр в день обращения и направим презентацию по объекту.
Этот лот состоит из нескольких помещений: 1497 кв. м. и 1312 кв. м.
Бесплатно разработаем планировку под вашу команду, рассчитаем оптимальную рассадку и зонирование.
*Количество рабочих мест рассчитано автоматически: от 4,5 до 12 м² на человека.
ID объекта: 039375
Разработаем планировку под вашу команду бесплатно с неограниченными правками.
Площадь: 2 809 м².
Состояние: готов к въезду с 01.07.2026.
Арендная плата: 13 735 250 руб./мес.
Ставка: 58 677 руб./м²/год (включая эксплуатацию).
Налогообложение: включая НДС.
Коммунальные расходы: оплачиваются по факту.
Тип аренды: Прямая аренда.
Этаж: 2, 5 из 22.
Помещение с функциональной смешанной планировкой.
Вентиляция: приточно-вытяжная.
Кондиционирование: центральное.
Охрана: система видео-наблюдения.
Пожарная сигнализация: спринклерная система.
Бизнес-центр Новосущевский класса А расположен рядом с метро Савеловская и Марьина Роща.
Удобный выезд на:
ТТК.
Инфраструктура здания:
Наземная парковка на 350 мест, кафе и ресторан, продуктовый магазин, конференц-зал, 6 пассажирских лифтов.
В пешей доступности:
Новослободский парк, ТЦ Савёловский.
Юридические адреса обслуживаются в налоговой №15.
Звоните или пишите в чат - организуем просмотр в день обращения и направим презентацию по объекту.
Этот лот состоит из нескольких помещений: 1497 кв. м. и 1312 кв. м.
Бесплатно разработаем планировку под вашу команду, рассчитаем оптимальную рассадку и зонирование.
*Количество рабочих мест рассчитано автоматически: от 4,5 до 12 м² на человека.
ID объекта: 039375
Расположение
г Москва, ул Сущёвский Вал, д 18
Савеловская
—
14 мин
Марьина Роща
—
9 мин
Савёловская
—
14 мин
Савёловская
—
14 мин
Марьина Роща
—
9 мин
Марьина Роща
—
9 мин
Марьина Роща
—
9 мин
Технические характеристики
Свободные помещения в БЦ Новосущевский
Новость дня
Все новости
24 апреля, пятница / Москва
"Продажа бывшего офиса ПСБ на Таганке на аукционе"
24 апреля, пятница / Москва
Компания Level Group планирует создать в юго-восточной части Москвы Многофункциональный комплекс с отелем, термальным центром и спортивными объектами
24 апреля, пятница / Москва
"Более миллиона квадратных метров складских помещений доступны для использования в Московском регионе"
24 апреля, пятница / Санкт-Петербург
Инвестиции в петербургскую недвижимость уменьшились на 9% за первый квартал
24 апреля, пятница / Москва
В Бутырском районе планируют построить бизнес-центр с амфитеатром.
24 апреля, пятница / Москва
"ГК «Калашников» приобрела часть акций десяти швейных фабрик"
24 апреля, пятница / Москва
"«Восток Инвестиции» приобрел долю в 20% компании Tasty Coffee"
24 апреля, пятница / Москва
Магазин «М.Косметик» открыл свой первый филиал в Краснодарском крае, специализирующийся на товарах для дома.
24 апреля, пятница / Москва
В Тверском районе Москвы планируется создание дворцово-садового комплекса с водоемом рядом с жилым домом.
24 апреля, пятница / Москва
"Компания 'Росспиртпром' находится в процессе обсуждения возможности приобретения компании Stellar Group"
23 апреля, четверг / Москва
STONE предлагает комплексный ремонт офисных помещений по цене от 85 тыс. руб. за квадратный метр.
23 апреля, четверг / Краснодарский
"Продаётся агрокомбинат «Тепличный» в Краснодаре за 2,8 млрд рублей"
23 апреля, четверг / Москва
Nike увеличил срок действия исключительных прав на свои бренды в России до 2036 года
23 апреля, четверг / Москва
Расширение площади флагманского магазина AMAZING RED в ТРЦ "Авиапарк"
23 апреля, четверг / Москва
"Магазин «Азбука вкуса» теперь работает круглосуточно в ЖК «Остров»"
23 апреля, четверг / Москва
"Появится комьюнити-центр с крышным огородом в районе Прокшино"
23 апреля, четверг / Москва
"Разработчик жилищного проекта "Дом.РФ" продал земельные участки общей площадью 175 гектаров в 24 регионах за первый квартал"
23 апреля, четверг / Москва
"Снижение инвестиций в коммерческую недвижимость России в первом квартале на 64%"
23 апреля, четверг / Татарстан
В Казани будет возведен самый просторный президентский люкс России
23 апреля, четверг / Москва
В галерее «Чкалов» появились уголки с итальянскими и паназиатскими блюдами.