Описание
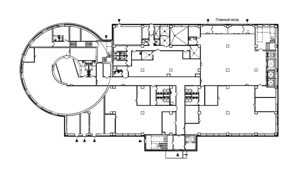
АГЕНТАМ ПЛАТИМ. РЕНТАВИК— участник ассоциации агентств КОКОН. Здание входящее в состав административно-делового комплекса Ring Park. Функциональный комплекс расположен в непосредственной близости от станции метро - Новохохловская. Легко добраться с ТТК и с Нижегородской улицы. Два подъезда на территорию комплекса через КПП. Описание помещения: Целиком этаж. Выполнена отделка в современном стиле Лофт. Светодиодное освещение. Установлены двойные стеклянные перегородки.
Ввод в эксплуатацию - 2 квартал 2026 года.
Ставка указана ориентировочная и подлежит обсуждению. Отдельный вход. Этаж: 1. Планировка: открытая ( open space ). Офисная отделка. Лофт. Высокие потолки. Высота потолка: 4.6м. Тип налогообложения: С НДС. Коммунальные платежи оплачиваются дополнительно. Налоговая: 22. Лифты: Есть. Вентиляция: Приточно-вытяжная. Кондиционирование: Центральное. Безопасность: Круглосуточная охрана, Контроль доступа, Система пожаротушений, Видеонаблюдение. Провайдеры: . Парковка: Наземная. Лот 61856-133
Ввод в эксплуатацию - 2 квартал 2026 года.
Ставка указана ориентировочная и подлежит обсуждению. Отдельный вход. Этаж: 1. Планировка: открытая ( open space ). Офисная отделка. Лофт. Высокие потолки. Высота потолка: 4.6м. Тип налогообложения: С НДС. Коммунальные платежи оплачиваются дополнительно. Налоговая: 22. Лифты: Есть. Вентиляция: Приточно-вытяжная. Кондиционирование: Центральное. Безопасность: Круглосуточная охрана, Контроль доступа, Система пожаротушений, Видеонаблюдение. Провайдеры: . Парковка: Наземная. Лот 61856-133
Расположение
г Москва, ул Новохохловская, д 29
Новохохловская
—
5 мин
Новохохловская
—
5 мин
Нижегородская
—
13 мин
Технические характеристики
Новость дня
Все новости
24 апреля, пятница / Москва
"Продажа бывшего офиса ПСБ на Таганке на аукционе"
24 апреля, пятница / Москва
Компания Level Group планирует создать в юго-восточной части Москвы Многофункциональный комплекс с отелем, термальным центром и спортивными объектами
24 апреля, пятница / Москва
"Более миллиона квадратных метров складских помещений доступны для использования в Московском регионе"
24 апреля, пятница / Санкт-Петербург
Инвестиции в петербургскую недвижимость уменьшились на 9% за первый квартал
24 апреля, пятница / Москва
В Бутырском районе планируют построить бизнес-центр с амфитеатром.
24 апреля, пятница / Москва
"ГК «Калашников» приобрела часть акций десяти швейных фабрик"
24 апреля, пятница / Москва
"«Восток Инвестиции» приобрел долю в 20% компании Tasty Coffee"
24 апреля, пятница / Москва
Магазин «М.Косметик» открыл свой первый филиал в Краснодарском крае, специализирующийся на товарах для дома.
24 апреля, пятница / Москва
В Тверском районе Москвы планируется создание дворцово-садового комплекса с водоемом рядом с жилым домом.
24 апреля, пятница / Москва
"Компания 'Росспиртпром' находится в процессе обсуждения возможности приобретения компании Stellar Group"
23 апреля, четверг / Москва
STONE предлагает комплексный ремонт офисных помещений по цене от 85 тыс. руб. за квадратный метр.
23 апреля, четверг / Краснодарский
"Продаётся агрокомбинат «Тепличный» в Краснодаре за 2,8 млрд рублей"
23 апреля, четверг / Москва
Nike увеличил срок действия исключительных прав на свои бренды в России до 2036 года
23 апреля, четверг / Москва
Расширение площади флагманского магазина AMAZING RED в ТРЦ "Авиапарк"
23 апреля, четверг / Москва
"Магазин «Азбука вкуса» теперь работает круглосуточно в ЖК «Остров»"
23 апреля, четверг / Москва
"Появится комьюнити-центр с крышным огородом в районе Прокшино"
23 апреля, четверг / Москва
"Разработчик жилищного проекта "Дом.РФ" продал земельные участки общей площадью 175 гектаров в 24 регионах за первый квартал"
23 апреля, четверг / Москва
"Снижение инвестиций в коммерческую недвижимость России в первом квартале на 64%"
23 апреля, четверг / Татарстан
В Казани будет возведен самый просторный президентский люкс России
23 апреля, четверг / Москва
В галерее «Чкалов» появились уголки с итальянскими и паназиатскими блюдами.