Описание
АГЕНТАМ ПЛАТИМ. РЕНТАВИК— участник ассоциации агентств КОКОН. Бизнес-парк состоит из шести офисных зданий с фасадами из натурального базальта и металла, анодированного под бронзу. Архитектурный комплекс органично вписан в окружающий природный ландшафт, подчеркивая гармонию современного дизайна и естественной среды. Описание помещения: Остекление панорамное. Шаг колонн 9 на 10,5 метров.
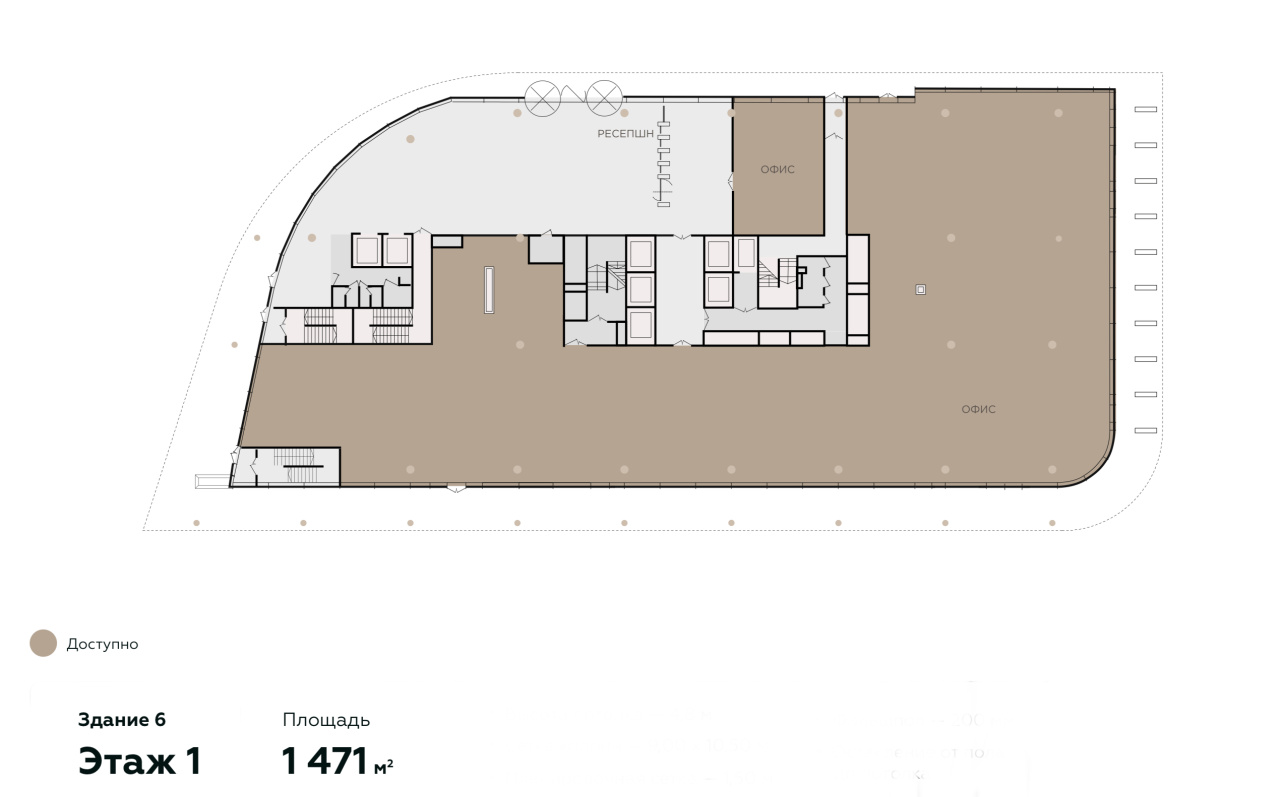
Состояние - под отделку. Возможна отделка под арендатора.
Готовность - февраль 2026г. Отдельный вход. Этаж: 1. Планировка: открытая ( open space ). Под чистовую отделку. Высокие потолки. Высота потолка: 4.8м. Тип налогообложения: С НДС. В арендную ставку включены эксплуатационные расходы, коммунальные оплачиваются дополнительно. Налоговая: 31. Лифты: Есть. Вентиляция: Приточно-вытяжная. Кондиционирование: Центральное. Безопасность: Круглосуточный доступ, Круглосуточная охрана, Контроль доступа, Система пожаротушений, Видеонаблюдение. Провайдеры: . Парковка: Подземная, Наземная. Лот 68098-133
Состояние - под отделку. Возможна отделка под арендатора.
Готовность - февраль 2026г. Отдельный вход. Этаж: 1. Планировка: открытая ( open space ). Под чистовую отделку. Высокие потолки. Высота потолка: 4.8м. Тип налогообложения: С НДС. В арендную ставку включены эксплуатационные расходы, коммунальные оплачиваются дополнительно. Налоговая: 31. Лифты: Есть. Вентиляция: Приточно-вытяжная. Кондиционирование: Центральное. Безопасность: Круглосуточный доступ, Круглосуточная охрана, Контроль доступа, Система пожаротушений, Видеонаблюдение. Провайдеры: . Парковка: Подземная, Наземная. Лот 68098-133
Расположение
г Москва, ш Сколковское, влд 43 к 6
Немчиновка
—
35 мин
Технические характеристики
Новость дня
Все новости
Вчера — 24 апреля, пятница / Москва
"Продажа бывшего офиса ПСБ на Таганке на аукционе"
Вчера — 24 апреля, пятница / Москва
Компания Level Group планирует создать в юго-восточной части Москвы Многофункциональный комплекс с отелем, термальным центром и спортивными объектами
Вчера — 24 апреля, пятница / Москва
"Более миллиона квадратных метров складских помещений доступны для использования в Московском регионе"
Вчера — 24 апреля, пятница / Санкт-Петербург
Инвестиции в петербургскую недвижимость уменьшились на 9% за первый квартал
Вчера — 24 апреля, пятница / Москва
В Бутырском районе планируют построить бизнес-центр с амфитеатром.
Вчера — 24 апреля, пятница / Москва
"ГК «Калашников» приобрела часть акций десяти швейных фабрик"
Вчера — 24 апреля, пятница / Москва
"«Восток Инвестиции» приобрел долю в 20% компании Tasty Coffee"
Вчера — 24 апреля, пятница / Москва
Магазин «М.Косметик» открыл свой первый филиал в Краснодарском крае, специализирующийся на товарах для дома.
Вчера — 24 апреля, пятница / Москва
В Тверском районе Москвы планируется создание дворцово-садового комплекса с водоемом рядом с жилым домом.
Вчера — 24 апреля, пятница / Москва
"Компания 'Росспиртпром' находится в процессе обсуждения возможности приобретения компании Stellar Group"
23 апреля, четверг / Москва
STONE предлагает комплексный ремонт офисных помещений по цене от 85 тыс. руб. за квадратный метр.
23 апреля, четверг / Краснодарский
"Продаётся агрокомбинат «Тепличный» в Краснодаре за 2,8 млрд рублей"
23 апреля, четверг / Москва
Nike увеличил срок действия исключительных прав на свои бренды в России до 2036 года
23 апреля, четверг / Москва
Расширение площади флагманского магазина AMAZING RED в ТРЦ "Авиапарк"
23 апреля, четверг / Москва
"Магазин «Азбука вкуса» теперь работает круглосуточно в ЖК «Остров»"
23 апреля, четверг / Москва
"Появится комьюнити-центр с крышным огородом в районе Прокшино"
23 апреля, четверг / Москва
"Разработчик жилищного проекта "Дом.РФ" продал земельные участки общей площадью 175 гектаров в 24 регионах за первый квартал"
23 апреля, четверг / Москва
"Снижение инвестиций в коммерческую недвижимость России в первом квартале на 64%"
23 апреля, четверг / Татарстан
В Казани будет возведен самый просторный президентский люкс России
23 апреля, четверг / Москва
В галерее «Чкалов» появились уголки с итальянскими и паназиатскими блюдами.