Описание
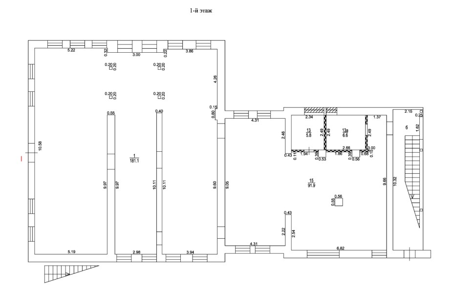
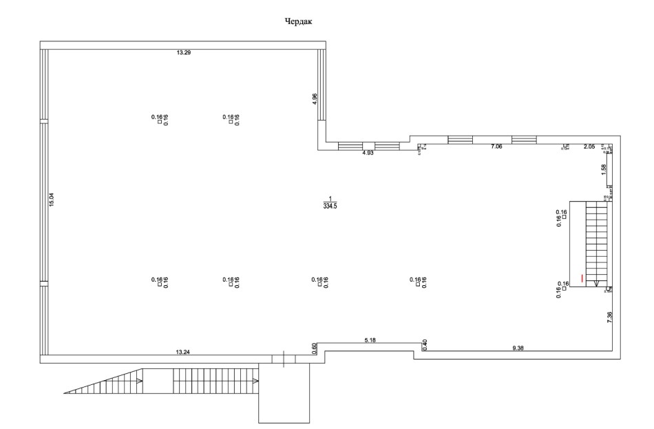
Административное здание в шаговой доступности от метро. Удобный выезд на ТТК. Собственная парковка на территории. Возможность круглосуточного режима работы. Описание помещения: Отдельно стоящее здание свободного назначения, состоит из 1 этажа и мансарды.
Электрическая мощность - 65 кВт.
Все центральные коммуникации.
Просторный двор легко адаптировать под веранду, зону ожидания, парковку или зону погрузки-разгрузки. Отдельный вход. Этаж: 1. Планировка: открытая ( open space ). Под чистовую отделку. Подходит под: медцентр, гостиницу. Высокие потолки. Высота потолка: 5м. Тип налогообложения: УСН. Коммунальные платежи оплачиваются по факту потребления. Налоговая: 03. Лифты: Нет. Вентиляция: Естественная. Кондиционирование: Нет. Безопасность: Круглосуточный доступ, Система пожаротушений. Провайдеры: . Парковка: Наземная. Лот 78001-133
Электрическая мощность - 65 кВт.
Все центральные коммуникации.
Просторный двор легко адаптировать под веранду, зону ожидания, парковку или зону погрузки-разгрузки. Отдельный вход. Этаж: 1. Планировка: открытая ( open space ). Под чистовую отделку. Подходит под: медцентр, гостиницу. Высокие потолки. Высота потолка: 5м. Тип налогообложения: УСН. Коммунальные платежи оплачиваются по факту потребления. Налоговая: 03. Лифты: Нет. Вентиляция: Естественная. Кондиционирование: Нет. Безопасность: Круглосуточный доступ, Система пожаротушений. Провайдеры: . Парковка: Наземная. Лот 78001-133
Расположение
г Москва, ул Брянский Пост, д 7 стр 4
Беговая
—
4 мин
Беговая
—
4 мин
Улица 1905 года
—
14 мин
Технические характеристики
Новость дня
Все новости
24 апреля, пятница / Москва
"Продажа бывшего офиса ПСБ на Таганке на аукционе"
24 апреля, пятница / Москва
Компания Level Group планирует создать в юго-восточной части Москвы Многофункциональный комплекс с отелем, термальным центром и спортивными объектами
24 апреля, пятница / Москва
"Более миллиона квадратных метров складских помещений доступны для использования в Московском регионе"
24 апреля, пятница / Санкт-Петербург
Инвестиции в петербургскую недвижимость уменьшились на 9% за первый квартал
24 апреля, пятница / Москва
В Бутырском районе планируют построить бизнес-центр с амфитеатром.
24 апреля, пятница / Москва
"ГК «Калашников» приобрела часть акций десяти швейных фабрик"
24 апреля, пятница / Москва
"«Восток Инвестиции» приобрел долю в 20% компании Tasty Coffee"
24 апреля, пятница / Москва
Магазин «М.Косметик» открыл свой первый филиал в Краснодарском крае, специализирующийся на товарах для дома.
24 апреля, пятница / Москва
В Тверском районе Москвы планируется создание дворцово-садового комплекса с водоемом рядом с жилым домом.
24 апреля, пятница / Москва
"Компания 'Росспиртпром' находится в процессе обсуждения возможности приобретения компании Stellar Group"
23 апреля, четверг / Москва
STONE предлагает комплексный ремонт офисных помещений по цене от 85 тыс. руб. за квадратный метр.
23 апреля, четверг / Краснодарский
"Продаётся агрокомбинат «Тепличный» в Краснодаре за 2,8 млрд рублей"
23 апреля, четверг / Москва
Nike увеличил срок действия исключительных прав на свои бренды в России до 2036 года
23 апреля, четверг / Москва
Расширение площади флагманского магазина AMAZING RED в ТРЦ "Авиапарк"
23 апреля, четверг / Москва
"Магазин «Азбука вкуса» теперь работает круглосуточно в ЖК «Остров»"
23 апреля, четверг / Москва
"Появится комьюнити-центр с крышным огородом в районе Прокшино"
23 апреля, четверг / Москва
"Разработчик жилищного проекта "Дом.РФ" продал земельные участки общей площадью 175 гектаров в 24 регионах за первый квартал"
23 апреля, четверг / Москва
"Снижение инвестиций в коммерческую недвижимость России в первом квартале на 64%"
23 апреля, четверг / Татарстан
В Казани будет возведен самый просторный президентский люкс России
23 апреля, четверг / Москва
В галерее «Чкалов» появились уголки с итальянскими и паназиатскими блюдами.