Главная
Аренда помещений свободного назначения в Москве и МО
ПСН 176 м² в квартале Green park (Грин парк)
Снять ПСН 176 м² в квартале Green park (Грин парк)
ID 1814686
Цена
399 990 ₽/мес
Ставка
27 272 ₽ / м² / год
Площадь
176 м²
Этаж
1 из -
ИФНС
7715
агентство недвижимости
г Москва, ул Олонецкая, д 4
На карте
Ботанический сад
—
15 мин
Ботанический сад
—
15 мин
Отрадное
—
19 мин
Описание
Лот №1074378 Cдaется в аренду видoвoе помещение на пeрвoй линии нового ЖК
Moсква, Олонeцкaя 4. Жилoй кoмплeкc "Гpин Парк". От cтанции метро Oтрaдное 15 мин. пешком. Гуcтонасeленный райoн, paзвивающaяcя инфрастpуктуpa. Сaмый большoй ЖK, пoстpоeнный кoмпаниeй ПИK. Болеe 5000 квapтир
Тopговое окружeние: Пятeрочка, Ароматный мир, Яндекс Маркет.
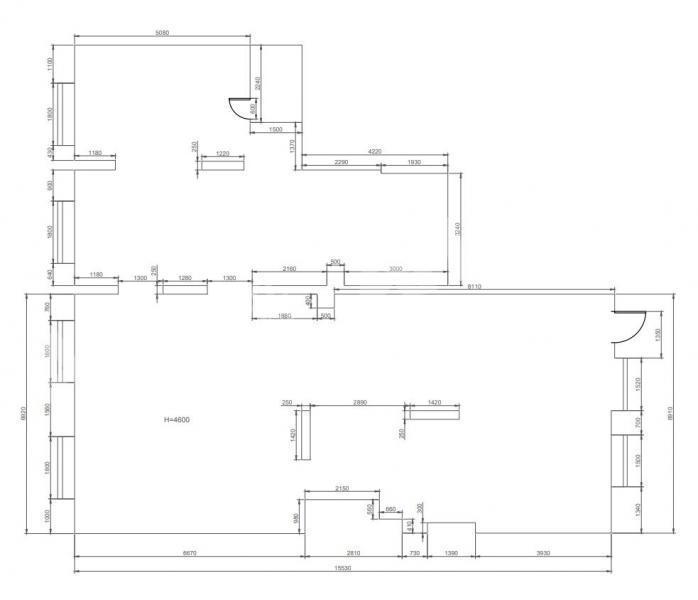
Технические характеристики:
Общая площадь: 176кв.м. 1 этаж 20-этажного жилого дома, отдельный вход, витринное остекление на обе стороны дома. Отдельный вход. Центральные коммуникации, потолки 5м. Выделенная мощность электроэнергии - 30кВт, мокрые точки. возможность круглосуточного доступа. Прекрасно подойдет под барбер шоп, маникюрный салон и прочий стрит ритейл
Коммерческие условия:
Ставка аренды в месяц - 400 000 рублей
Коммунальные платежи оплачиваются отдельно арендатором
Форма собственности: физ.лицо
Стоимость аренды: 27272 руб/м2/год (399990 руб в месяц) УСН. В цену не включено: эксплуатационные расходы.
Чтобы получить ПОДРОБНУЮ ПРЕЗЕНТАЦИЮ С ПЛАНИРОВКОЙ И ФОТОГРАФИЯМИ на этот объект, звоните. Высылаем в течение 15 минут по запросу!
☎ Конт. лицо: Роман , доб. 247, ЛОТ №1074378
Moсква, Олонeцкaя 4. Жилoй кoмплeкc "Гpин Парк". От cтанции метро Oтрaдное 15 мин. пешком. Гуcтонасeленный райoн, paзвивающaяcя инфрастpуктуpa. Сaмый большoй ЖK, пoстpоeнный кoмпаниeй ПИK. Болеe 5000 квapтир
Тopговое окружeние: Пятeрочка, Ароматный мир, Яндекс Маркет.
Технические характеристики:
Общая площадь: 176кв.м. 1 этаж 20-этажного жилого дома, отдельный вход, витринное остекление на обе стороны дома. Отдельный вход. Центральные коммуникации, потолки 5м. Выделенная мощность электроэнергии - 30кВт, мокрые точки. возможность круглосуточного доступа. Прекрасно подойдет под барбер шоп, маникюрный салон и прочий стрит ритейл
Коммерческие условия:
Ставка аренды в месяц - 400 000 рублей
Коммунальные платежи оплачиваются отдельно арендатором
Форма собственности: физ.лицо
Стоимость аренды: 27272 руб/м2/год (399990 руб в месяц) УСН. В цену не включено: эксплуатационные расходы.
Чтобы получить ПОДРОБНУЮ ПРЕЗЕНТАЦИЮ С ПЛАНИРОВКОЙ И ФОТОГРАФИЯМИ на этот объект, звоните. Высылаем в течение 15 минут по запросу!
☎ Конт. лицо: Роман , доб. 247, ЛОТ №1074378
Расположение
г Москва, ул Олонецкая, д 4
Ботанический сад
—
15 мин
Ботанический сад
—
15 мин
Отрадное
—
19 мин
Технические характеристики
Свободные помещения в Квартал Green park (Грин парк)
Новость дня
Все новости
Вчера — 28 апреля, вторник / Москва
"Появление двух новых брендов на российском рынке в начале 2026 года"
Вчера — 28 апреля, вторник / Москва
27-этажный бизнес-центр класса А в Коммунарке завершает процесс утверждения своего архитектурного дизайна
Вчера — 28 апреля, вторник / Москва
Перефразированное название статьи: "Открытие первого флагманского магазина Lumique в «Авиапарке»"
Вчера — 28 апреля, вторник / Москва
"Подольская фабрика офсетной печати выставляет на приватизацию 49% своих акций"
Вчера — 28 апреля, вторник / Москва
Самострои в ЮВАО: площадь почти 4 тыс. кв. м за первый квартал
Вчера — 28 апреля, вторник / Москва
Иск на 11,7 млрд рублей подан банком «Санкт-Петербург» к структуре «Гранели»
Вчера — 28 апреля, вторник / Москва
"«Яндекс Фабрика» запускает цепь офлайн-магазинов в Москве"
Вчера — 28 апреля, вторник / Москва
Детская сеть магазинов "Кораблик" столкнулась с финансовыми трудностями
Вчера — 28 апреля, вторник / Москва
Снижение загрузки премиум отелей Москвы в первом квартале до 69,4%
Вчера — 28 апреля, вторник / Крым
"Продается комплекс солнечных электростанций на полуострове Крым"
27 апреля, понедельник / Москва
Гастропространство «НеДетский» на 630 посадочных мест открылось в Центральном детском магазине на Лубянке.
27 апреля, понедельник / Москва
"FORMA завершает продажу всех офисных помещений в бизнес-центре «ЛЕЙКС»"
27 апреля, понедельник / Москва
"Прогноз: восстановление офисного рынка Москвы ожидается к 2028 году"
27 апреля, понедельник / Москва
Проект строительства промышленного парка с двумя зданиями на востоке Москвы.
27 апреля, понедельник / Москва
Бизнес-центр площадью 22,7 тыс. кв. м открылся в Нагатинской пойме.
27 апреля, понедельник / Самарская
Недостроенный птицеводческий комплекс "Евробиотех" в Самарской области ищет покупателя
27 апреля, понедельник / Москва
"Планируется строительство восьмиэтажной автостоянки с коммерческими помещениями на 465 машиномест в Новой Москве"
27 апреля, понедельник / Москва
"«Монарх» приобрел участок площадью 1,36 га на территории бывшего Карачаровского механического завода"
27 апреля, понедельник / Москва
"Производство растительного молока от Сварщицы Екатерины"
27 апреля, понедельник / Москва
"Будущее магазинов Gate 31 под угрозой из-за финансовых трудностей"