Описание
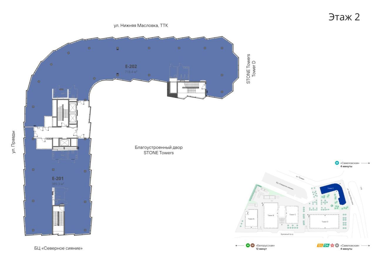
ПЛАТИМ АГЕНТАМ. Входим в ассоциацию профессионалов коммерческой недвижимости КОКОН. Бизнес резиденция клубного формата Stone Towers - Tower E находится в 4-х минутах от транспортно-пересадочного узла Савеловская, откуда открывается доступ к радиальной и Большой кольцевой линиям метро, а также к МЦД 1 и МЦД 4. Описание помещения: Общая площадь - 1497 м2, состоит из нескольких помещений.
Целиком 2 этаж - 1107,7 м2.
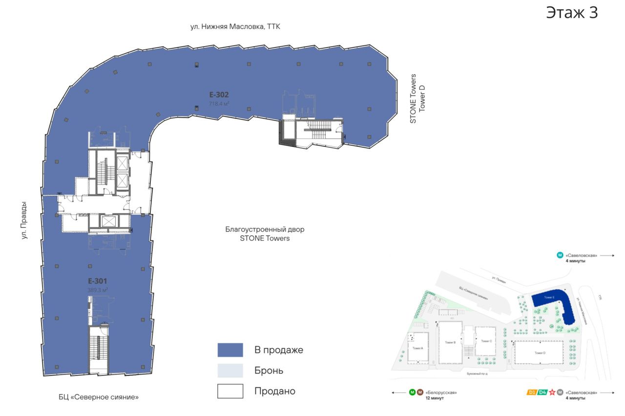
Отдельный блок на 3 этаже - 389,3 м2. Панорамное остекление с возможностью естественного проветривания. Максимальный уровень естественного освещения. Две мокрые точки в блоке. Отдельный вход. Этаж: 2. Планировка: открытая ( open space ). Под чистовую отделку. Высокие потолки. Высота потолка: 3.8м. Тип налогообложения: С НДС. ДКП будущей вещи. Налоговая: 14. Лифты: Есть. Вентиляция: Приточно-вытяжная. Кондиционирование: Центральное. Безопасность: Круглосуточный доступ, Круглосуточная охрана, Контроль доступа, Система пожаротушений, Видеонаблюдение. Провайдеры: . Парковка: Подземная, Наземная. Лот 87191-133
Целиком 2 этаж - 1107,7 м2.
Отдельный блок на 3 этаже - 389,3 м2. Панорамное остекление с возможностью естественного проветривания. Максимальный уровень естественного освещения. Две мокрые точки в блоке. Отдельный вход. Этаж: 2. Планировка: открытая ( open space ). Под чистовую отделку. Высокие потолки. Высота потолка: 3.8м. Тип налогообложения: С НДС. ДКП будущей вещи. Налоговая: 14. Лифты: Есть. Вентиляция: Приточно-вытяжная. Кондиционирование: Центральное. Безопасность: Круглосуточный доступ, Круглосуточная охрана, Контроль доступа, Система пожаротушений, Видеонаблюдение. Провайдеры: . Парковка: Подземная, Наземная. Лот 87191-133
Расположение
г Москва, ул Нижняя Масловка, д 3
Савеловская
—
3 мин
Савёловская
—
3 мин
Савёловская
—
3 мин
Технические характеристики
Параметры
Инженерия
кондиционер, вентиляция, лифт
Новость дня
Все новости
Сегодня — 29 апреля, среда / Москва
Московский цех открыл производство 3D-принтеров для металлической печати.
Сегодня — 29 апреля, среда / Москва
БМ-банк завершил продажу большей части площадей в ТЦ «Весна» на Новом Арбате.
Сегодня — 29 апреля, среда / Москва
Перефразированное название: "Сеть магазинов 'Жизньмарт' возобновляет свою деятельность в Челябинске"
Сегодня — 29 апреля, среда / Санкт-Петербург
Сервисный офис «Практик» начал свою работу на Октябрьской набережной в Санкт-Петербурге.
Сегодня — 29 апреля, среда / Санкт-Петербург
Строительство складских помещений в Санкт-Петербурге и Ленинградской области увеличилось в 2,5 раза.
Сегодня — 29 апреля, среда / Москва
Москва увеличила объем строительства в рамках программы МПТ до 9,5 миллионов квадратных метров
Сегодня — 29 апреля, среда / Санкт-Петербург
Соседский центр "ЖИВИ Клуб" открыл свои двери в Новоселье
Сегодня — 29 апреля, среда / Москва
"Завершено строительство пятиэтажной наземной парковки в районе Нагатинский Затон"
Сегодня — 29 апреля, среда / Санкт-Петербург
Рекордный уровень строительства складов зафиксирован в Санкт-Петербурге и Ленинградской области
Сегодня — 29 апреля, среда / Москва
Аренда складов в Москве снизилась на 25%
Вчера — 28 апреля, вторник / Москва
"Появление двух новых брендов на российском рынке в начале 2026 года"
Вчера — 28 апреля, вторник / Москва
27-этажный бизнес-центр класса А в Коммунарке завершает процесс утверждения своего архитектурного дизайна
Вчера — 28 апреля, вторник / Москва
Перефразированное название статьи: "Открытие первого флагманского магазина Lumique в «Авиапарке»"
Вчера — 28 апреля, вторник / Москва
"Подольская фабрика офсетной печати выставляет на приватизацию 49% своих акций"
Вчера — 28 апреля, вторник / Москва
Самострои в ЮВАО: площадь почти 4 тыс. кв. м за первый квартал
Вчера — 28 апреля, вторник / Москва
Иск на 11,7 млрд рублей подан банком «Санкт-Петербург» к структуре «Гранели»
Вчера — 28 апреля, вторник / Москва
"«Яндекс Фабрика» запускает цепь офлайн-магазинов в Москве"
Вчера — 28 апреля, вторник / Москва
Детская сеть магазинов "Кораблик" столкнулась с финансовыми трудностями
Вчера — 28 апреля, вторник / Москва
Снижение загрузки премиум отелей Москвы в первом квартале до 69,4%
Вчера — 28 апреля, вторник / Крым
"Продается комплекс солнечных электростанций на полуострове Крым"