Описание
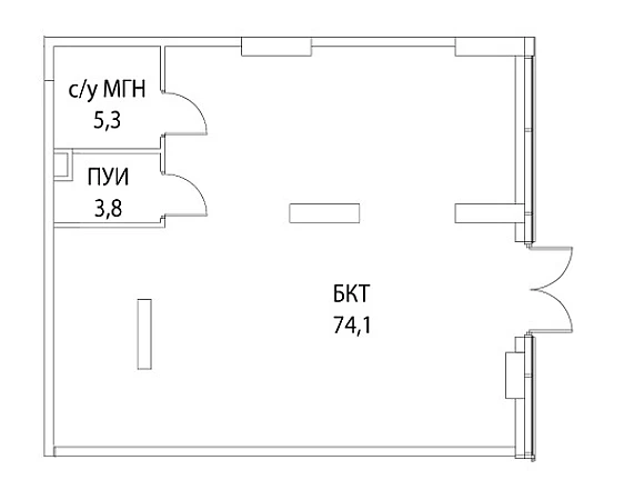
Аренда ПСН площадью 83.2 м2, в прямую аренду на любой срок. Минимальный срок аренды 36 мес с предоплатой за 1 месяц. Помещение располагается в 21-этажном жилом комплексе в 8 мин. пешком от м.Терехово, район Хорошево-Мневники. Помещение находится на 1 этаже здания.
Возможное назначение - свободное назначение, высота потолков 3.25 м, помещение под чистовую отделку, тип окон - витринные, окна выходят на улицу, год постройки 2024 г, застройщик здания - Донстрой.
Внутри центральное кондиционирование, вентиляция - приточная, центральное отопление, спринклерная система пожаротушения, внутри есть водоснабжение.
Отдельный вход с улицы, доступ в здание свободный, здание открыто круглосуточно, объект находится под охраной.
Парковка автомобилей - наземная, есть гостевые парковочные места, есть охрана.
Возможное назначение - свободное назначение, высота потолков 3.25 м, помещение под чистовую отделку, тип окон - витринные, окна выходят на улицу, год постройки 2024 г, застройщик здания - Донстрой.
Внутри центральное кондиционирование, вентиляция - приточная, центральное отопление, спринклерная система пожаротушения, внутри есть водоснабжение.
Отдельный вход с улицы, доступ в здание свободный, здание открыто круглосуточно, объект находится под охраной.
Парковка автомобилей - наземная, есть гостевые парковочные места, есть охрана.
Расположение
г Москва, ул Нижние Мнёвники, д 7
Терехово
—
8 мин
Технические характеристики
Параметры
Отопление
есть
Инженерия
вентиляция, пожарная сигнализация
Вид из окна
на улицу
Водоснабжение
есть
Охрана
есть
Статус владельца объявления
собственник
Параметры помещения
Высота потолков
—
Свободные помещения в ЖК Остров
Новость дня
Расширение возможностей для B2B-клиентов: Avito вводит новые услуги для строительства складов
На платформе Авито теперь доступна категория "Коммерческое строительство" в сегменте услуг, предлагающая широкий выбор специализированных работ и возведение объектов "под ключ" для бизнеса, что упрощает поиск подрядчиков и субподрядчиков для коммерческих проектов.
Все новости
Сегодня — 4 мая, понедельник / Москва
Вложения в недвижимость России за первую половину текущего года составили 169,5 миллиарда рублей.
Сегодня — 4 мая, понедельник / Москва
Российский складской рынок продолжает расти: площадь складских помещений превысит 60 млн кв. м к концу 2026 года
Сегодня — 4 мая, понедельник / Москва
"Компания "Галс-Девелопмент" получила одобрение на строительство делового центра "Дубининский"."
Сегодня — 4 мая, понедельник / Москва
Инвестиционный фонд "Бумеранг Капитал" стал владельцем половины сети кофеен "Цех 85"
Сегодня — 4 мая, понедельник / Краснодарский
В Анапе откроется первый отель с инновационными IT-сервисами
Сегодня — 4 мая, понедельник / Москва
Планируется строительство торгового центра площадью свыше 6 тыс. кв. м в Краснопахорском районе Москвы.
Сегодня — 4 мая, понедельник / Москва
Смена собственника у клубов «Дикая орхидея» и «Дефиле»
Сегодня — 4 мая, понедельник / Вологодская
"Прекращена деятельность "наливаек" и магазинов электронных сигарет в Вологодской области"
Сегодня — 4 мая, понедельник / Москва
"Exeed перемещает производство из Подмосковья на площадку АГР в Шушарах"
Сегодня — 4 мая, понедельник / Москва
На юге Москвы запланировано строительство ТПУ "Кленовый бульвар" на площади 2 гектара.
30 апреля, четверг / Москва
"Бумеранг Капитал" увеличил свою долю в сети кафе-пекарен "Цех 85" до 50%
30 апреля, четверг / Ставропольский
В Кисловодске начался проект строительства инвестиционного отеля "Реликт"
30 апреля, четверг / Москва
Ресторан «Долина 5165» и магазин Sokolov теперь доступны посетителям ТРЦ Avenue Sever
30 апреля, четверг / Москва
"Новый флагманский магазин под названием «Флаувау» открыл свои двери на Мясницкой улице"
30 апреля, четверг / Москва
"Уровень вакансии на складах в Московском регионе достиг 5,4% из-за увеличения предложений по субаренде"
30 апреля, четверг / Москва
"Прогнозируется незначительный прирост числа туристов в первом квартале 2026 года - всего 2,8%"
30 апреля, четверг / Москва
Компания "Ориентир" планирует вложить до 150 млрд рублей в расширение бизнеса и развитие новых секторов.
30 апреля, четверг / Москва
"Завершено строительство наземной парковки на 400 автомобильных мест в парке «Ривер Парк Коломенское»"
30 апреля, четверг / Москва
Скорось открытия новых магазинов «Лэтуаль» снизится - 150 точек закроются к 2026 году.
30 апреля, четверг / Москва
Смайл-бар сети "Белая точка" теперь доступен посетителям ТЦ "Левел Причальный"