Описание
Предложение в аренду № 57395.
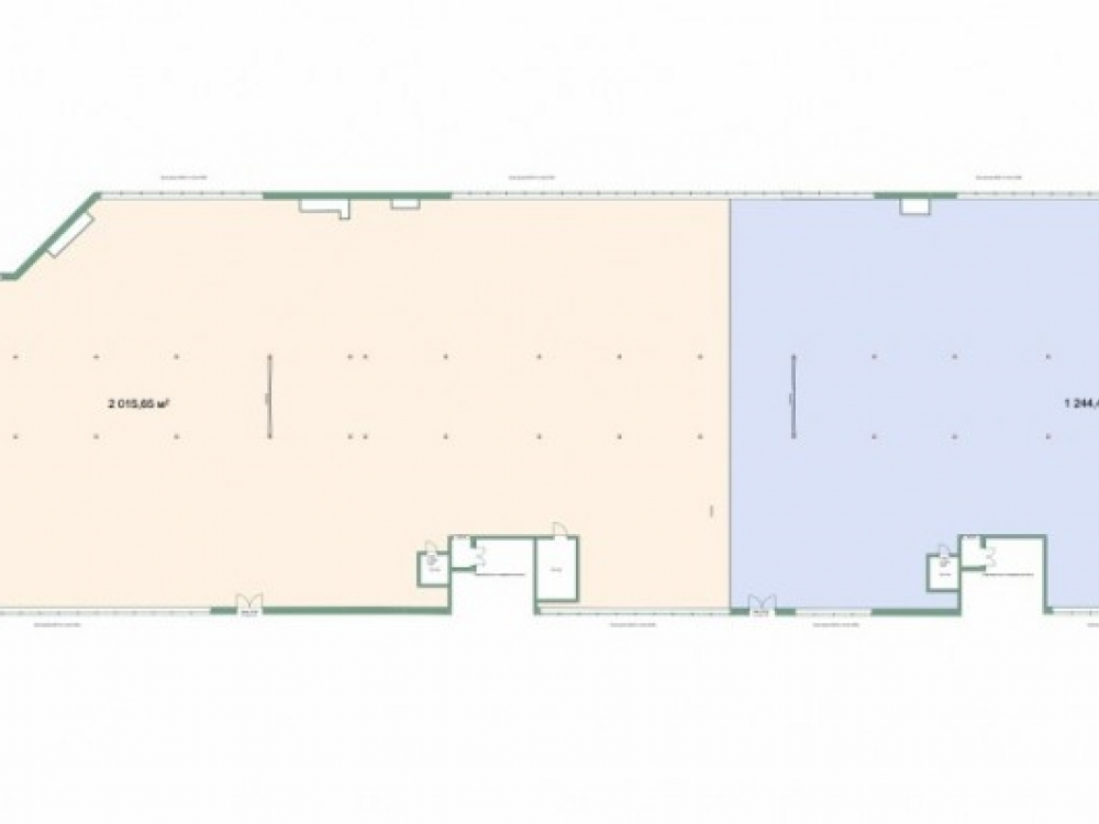
Предлагается в аренду помещение свободного назначения в современном ТЦ "Терабит" в центре густонаселенного жилого массива с развитой инфраструктурой. Помещение общей площадью 2000 м2, 5 этаж, высота потолков 3 метра.
.
. Общая площадь части этажа 2000 кв.м. Можно сдать в одни руки или разделить. Имеется грузовой подъемник, а также пассажирский лифт. Есть венты шахты. Все коммуникации центральные.
.
. В ближайшем окружении проживает более 100 000 человек, в непосредственной близости будет построено 200 000 м2 жилого массива. Доступ 24/7, паркинг на 150 машиномест. Помещение подходит под производство, имеются все необходимые технологии. Электрическая мощность - 300 кВт с возможностью увеличения. Возможен заезд автомобиля непосредственно в помещение на любой этаж. Также установлен грузовой подъемник с улица (с зоны погрузки/разгрузки), который позволяет доставлять тяжелые грузы непосредственно в помещение. Все коммуникации. Показ в любое время.
.
. Ставка 1000 руб/м2 в месяц + НДС.
.
Без комиссии.
Предлагается в аренду помещение свободного назначения в современном ТЦ "Терабит" в центре густонаселенного жилого массива с развитой инфраструктурой. Помещение общей площадью 2000 м2, 5 этаж, высота потолков 3 метра.
.
. Общая площадь части этажа 2000 кв.м. Можно сдать в одни руки или разделить. Имеется грузовой подъемник, а также пассажирский лифт. Есть венты шахты. Все коммуникации центральные.
.
. В ближайшем окружении проживает более 100 000 человек, в непосредственной близости будет построено 200 000 м2 жилого массива. Доступ 24/7, паркинг на 150 машиномест. Помещение подходит под производство, имеются все необходимые технологии. Электрическая мощность - 300 кВт с возможностью увеличения. Возможен заезд автомобиля непосредственно в помещение на любой этаж. Также установлен грузовой подъемник с улица (с зоны погрузки/разгрузки), который позволяет доставлять тяжелые грузы непосредственно в помещение. Все коммуникации. Показ в любое время.
.
. Ставка 1000 руб/м2 в месяц + НДС.
.
Без комиссии.
Расположение
Московская обл, г Красногорск, б-р Красногорский, д 4 стр 1
Мякинино
—
30 мин
Пенягино
—
8 мин
Павшино
—
13 мин
Технические характеристики
Параметры
Статус владельца объявления
агентство
Новость дня
Расширение возможностей для B2B-клиентов: Avito вводит новые услуги для строительства складов
На платформе Авито теперь доступна категория "Коммерческое строительство" в сегменте услуг, предлагающая широкий выбор специализированных работ и возведение объектов "под ключ" для бизнеса, что упрощает поиск подрядчиков и субподрядчиков для коммерческих проектов.
Все новости
30 апреля, четверг / Москва
"Бумеранг Капитал" увеличил свою долю в сети кафе-пекарен "Цех 85" до 50%
30 апреля, четверг / Ставропольский
В Кисловодске начался проект строительства инвестиционного отеля "Реликт"
30 апреля, четверг / Москва
Ресторан «Долина 5165» и магазин Sokolov теперь доступны посетителям ТРЦ Avenue Sever
30 апреля, четверг / Москва
"Новый флагманский магазин под названием «Флаувау» открыл свои двери на Мясницкой улице"
30 апреля, четверг / Москва
"Уровень вакансии на складах в Московском регионе достиг 5,4% из-за увеличения предложений по субаренде"
30 апреля, четверг / Москва
"Прогнозируется незначительный прирост числа туристов в первом квартале 2026 года - всего 2,8%"
30 апреля, четверг / Москва
Компания "Ориентир" планирует вложить до 150 млрд рублей в расширение бизнеса и развитие новых секторов.
30 апреля, четверг / Москва
"Завершено строительство наземной парковки на 400 автомобильных мест в парке «Ривер Парк Коломенское»"
30 апреля, четверг / Москва
Скорось открытия новых магазинов «Лэтуаль» снизится - 150 точек закроются к 2026 году.
30 апреля, четверг / Москва
Смайл-бар сети "Белая точка" теперь доступен посетителям ТЦ "Левел Причальный"
29 апреля, среда / Москва
Московский цех открыл производство 3D-принтеров для металлической печати.
29 апреля, среда / Москва
БМ-банк завершил продажу большей части площадей в ТЦ «Весна» на Новом Арбате.
29 апреля, среда / Москва
Перефразированное название: "Сеть магазинов 'Жизньмарт' возобновляет свою деятельность в Челябинске"
29 апреля, среда / Санкт-Петербург
Сервисный офис «Практик» начал свою работу на Октябрьской набережной в Санкт-Петербурге.
29 апреля, среда / Санкт-Петербург
Строительство складских помещений в Санкт-Петербурге и Ленинградской области увеличилось в 2,5 раза.
29 апреля, среда / Москва
Москва увеличила объем строительства в рамках программы МПТ до 9,5 миллионов квадратных метров
29 апреля, среда / Санкт-Петербург
Соседский центр "ЖИВИ Клуб" открыл свои двери в Новоселье
29 апреля, среда / Москва
"Завершено строительство пятиэтажной наземной парковки в районе Нагатинский Затон"
29 апреля, среда / Санкт-Петербург
Рекордный уровень строительства складов зафиксирован в Санкт-Петербурге и Ленинградской области
29 апреля, среда / Москва
Аренда складов в Москве снизилась на 25%