Главная
Купить производственное помещение в Москве и МО
Производственное помещение 1200 м² в д Назимиха
Купить производственное помещение 1200 м² в д Назимиха
ID 399656
Цена
130 000 000 ₽
Ставка
108 333 ₽ / м²
Площадь
1200 м²
Этаж
1 из -
ИФНС
5050
агентство недвижимости
Московская обл, г Щёлково, д Назимиха, ул Осенняя
На карте
Описание
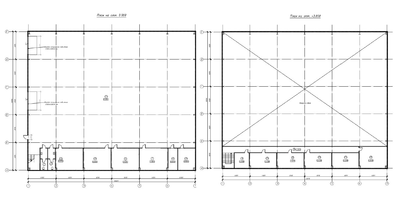
Арт. 52050662 Новое отдельно стоящее здание общей площадью 1200 кв.м. Земельный участок 22 сотки промышленного назначения.
Высота потолков 8 м, полы антипыль, ворота в ноль. Электрическая мощность 50 кВт. Отопление, все коммуникации.
Приточная вентиляция, кондиционирование, система пожарной сигнализации.
Кран -балка на 3 тонны. Офисные помещения.
Огороженная территория, транспортная доступность 100 м от Фряновского шоссе.
Парковка на территории объекта.
Звоните подробности по телефону.
Высота потолков 8 м, полы антипыль, ворота в ноль. Электрическая мощность 50 кВт. Отопление, все коммуникации.
Приточная вентиляция, кондиционирование, система пожарной сигнализации.
Кран -балка на 3 тонны. Офисные помещения.
Огороженная территория, транспортная доступность 100 м от Фряновского шоссе.
Парковка на территории объекта.
Звоните подробности по телефону.
Расположение
Московская обл, г Щёлково, д Назимиха, ул Осенняя
Технические характеристики
Новость дня
Расширение возможностей для B2B-клиентов: Avito вводит новые услуги для строительства складов
На платформе Авито теперь доступна категория "Коммерческое строительство" в сегменте услуг, предлагающая широкий выбор специализированных работ и возведение объектов "под ключ" для бизнеса, что упрощает поиск подрядчиков и субподрядчиков для коммерческих проектов.
Все новости
30 апреля, четверг / Москва
"Бумеранг Капитал" увеличил свою долю в сети кафе-пекарен "Цех 85" до 50%
30 апреля, четверг / Ставропольский
В Кисловодске начался проект строительства инвестиционного отеля "Реликт"
30 апреля, четверг / Москва
Ресторан «Долина 5165» и магазин Sokolov теперь доступны посетителям ТРЦ Avenue Sever
30 апреля, четверг / Москва
"Новый флагманский магазин под названием «Флаувау» открыл свои двери на Мясницкой улице"
30 апреля, четверг / Москва
"Уровень вакансии на складах в Московском регионе достиг 5,4% из-за увеличения предложений по субаренде"
30 апреля, четверг / Москва
"Прогнозируется незначительный прирост числа туристов в первом квартале 2026 года - всего 2,8%"
30 апреля, четверг / Москва
Компания "Ориентир" планирует вложить до 150 млрд рублей в расширение бизнеса и развитие новых секторов.
30 апреля, четверг / Москва
"Завершено строительство наземной парковки на 400 автомобильных мест в парке «Ривер Парк Коломенское»"
30 апреля, четверг / Москва
Скорось открытия новых магазинов «Лэтуаль» снизится - 150 точек закроются к 2026 году.
30 апреля, четверг / Москва
Смайл-бар сети "Белая точка" теперь доступен посетителям ТЦ "Левел Причальный"
29 апреля, среда / Москва
Московский цех открыл производство 3D-принтеров для металлической печати.
29 апреля, среда / Москва
БМ-банк завершил продажу большей части площадей в ТЦ «Весна» на Новом Арбате.
29 апреля, среда / Москва
Перефразированное название: "Сеть магазинов 'Жизньмарт' возобновляет свою деятельность в Челябинске"
29 апреля, среда / Санкт-Петербург
Сервисный офис «Практик» начал свою работу на Октябрьской набережной в Санкт-Петербурге.
29 апреля, среда / Санкт-Петербург
Строительство складских помещений в Санкт-Петербурге и Ленинградской области увеличилось в 2,5 раза.
29 апреля, среда / Москва
Москва увеличила объем строительства в рамках программы МПТ до 9,5 миллионов квадратных метров
29 апреля, среда / Санкт-Петербург
Соседский центр "ЖИВИ Клуб" открыл свои двери в Новоселье
29 апреля, среда / Москва
"Завершено строительство пятиэтажной наземной парковки в районе Нагатинский Затон"
29 апреля, среда / Санкт-Петербург
Рекордный уровень строительства складов зафиксирован в Санкт-Петербурге и Ленинградской области
29 апреля, среда / Москва
Аренда складов в Москве снизилась на 25%