Купить склад 8991 м² в пгт Отрадное
ID 399677
Цена
1 550 000 000 ₽
Ставка
172 395 ₽ / м²
Площадь
8991 м²
Класс
не указан
Этаж
1 из -
ИФНС
5024
агентство недвижимости
Московская обл, г Красногорск, поселок Отрадное
На карте
Описание
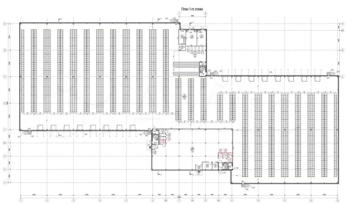
Арт. 57942949 Продается новое производственно- складское здание класса А. Здание расположено на участке площадью: 1,5 Га (разрешенное использование: для размещения склада; для размещения офиса). Общая площадь здания: 8991,4 м2. Площaдь 1-го этaжа: 7359,2 м2. Площaдь 2-гo этaжа: 951,5 м2. Площадь 3-го этажa : 680,7 м2, Koличеcтвo этажeй Aдминиcтративногo блoка: 3 этaжа. Сетка кoлон склaдcкoй/произвoдственнoй плoщaди :12м х 24 м. Высота потолка (рабочая) – 12м. Полы- бетон с антипылевым покрытием, нагрузка на пол-7т/м2. 16 доковых ворот. Ворота в ноль. Выделенная электрическая мощность - 692,3 кВт с возможностью увеличения по запросу арендатора. Пожарная сигнализация. Сплинкерная система пожаротушения. Отопление - теплоноситель от газовой котельной, вентиляция- современная система воздухообмена. Водоснабжение с системой очистки воды, водоотведение. Территория оборудована парковочными местами для грузового и легкового транспорта, зонами погрузки / загрузки. Предусмотрены благоустроенные территории возле офисов для сотрудников и посетителей. Парковочных мест для гостевых автомобилей: 51 шт. Парковочные места для малотонных грузовиков: 4 шт. Загрузка "еврофур": 10 шт. Загрузка малотоннажных грузовиков: 6 шт. Дополнительные ворота из складской зоны для малотонных грузовиков и легкового транспорта: 8 шт. Удобная транспортная доступность.
Расположение
Московская обл, г Красногорск, поселок Отрадное
Технические характеристики
Новость дня
Расширение возможностей для B2B-клиентов: Avito вводит новые услуги для строительства складов
На платформе Авито теперь доступна категория "Коммерческое строительство" в сегменте услуг, предлагающая широкий выбор специализированных работ и возведение объектов "под ключ" для бизнеса, что упрощает поиск подрядчиков и субподрядчиков для коммерческих проектов.
Все новости
Вчера — 6 мая, среда / Москва
Рекордное количество офисных помещений введено в Москве за первый квартал текущего года.
Вчера — 6 мая, среда / Москва
"Сокращение объемов складских помещений в Московском регионе достигло 14% за первый квартал"
Вчера — 6 мая, среда / Москва
Лишь 10% жилых комплексов располагаются вблизи берега Москвы-реки.
Вчера — 6 мая, среда / Москва
Цены на отели в Москве снизились впервые за два года
Вчера — 6 мая, среда / Карачаево-Черкесская
Капиталовложения в размере 5,83 млрд рублей на развитие курорта "Альто" на Домбае от компании "Плато Девелопмент"
Вчера — 6 мая, среда / Москва
Строительство склада площадью 80 тыс. кв. м для Ozon в Пушкино будет осуществлено компанией NK Group.
Вчера — 6 мая, среда / Санкт-Петербург
«Дача Фаберже в Санкт-Петербурге будет продана на аукционе компанией «Дом.РФ»»
Вчера — 6 мая, среда / Москва
Строительство коммерческих объектов в Москве упало на 91% за год
Вчера — 6 мая, среда / Москва
Как в Москве за первый квартал 2026 года построили 5,433 тыс. кв. м офисов, готовых к адаптации.
Вчера — 6 мая, среда / Санкт-Петербург
Продуктовые сети в России увеличили свои площади в торгово-развлекательном центре Петербурга на треть за последние 6 лет.
Вчера — 6 мая, среда / Москва
С начала года в Москве получили разрешение на строительство более 130 недвижимостей.
5 мая, вторник / Москва
"Сбербанк и Альфа-банк подали в суд на производителя обоев «Артекс» с требованием объявить его банкротом"
5 мая, вторник / Красноярский
"Магазин «ВкусВилл» открыл отдел shop-in-shop в Красноярске через партнерство"
5 мая, вторник / Адыгея
Строительство жилого комплекса на территории туристического парка "Дегуакская поляна" в Адыгее начнется архитектурным проектом от "Семьи" объемом 360 тыс. квадратных метров.
5 мая, вторник / Москва
"Прогнозируется достижение рекордной площади 500 тыс. кв. м под light industrial в Московском регионе к 2026 году"
5 мая, вторник / Астраханская
Фитнес-клуб DDX Fitness открылся в Торгово-Развлекательном Центре «Ярмарка» в городе Астрахань.
5 мая, вторник / Москва
"Объем спроса на офисные помещения в Москве сократился вдвое за последний год"
5 мая, вторник / Москва
"Рост стоимости отделки офисов в Москве превышает уровень инфляции"
5 мая, вторник / Москва
В России впервые за 20 лет не было открыто ни одной новой гостиницы в первом квартале
5 мая, вторник / Москва
Спрос на услуги аренды апартаментов в Санкт-Петербурге упал на четверть.