Купить офис 96 м² в деловом квартале Товарищество Рябовской Мануфактуры
Описание
Номер объекта: 545621. Арендный бизнес. ПСН площадью 96,8 м2 (блок 4210) расположено в Деловом квартале в стиле Лофт – в ДК «Товарищество Рябовской Мануфактуры», в 3-х минутах пешком от метро Тульская.
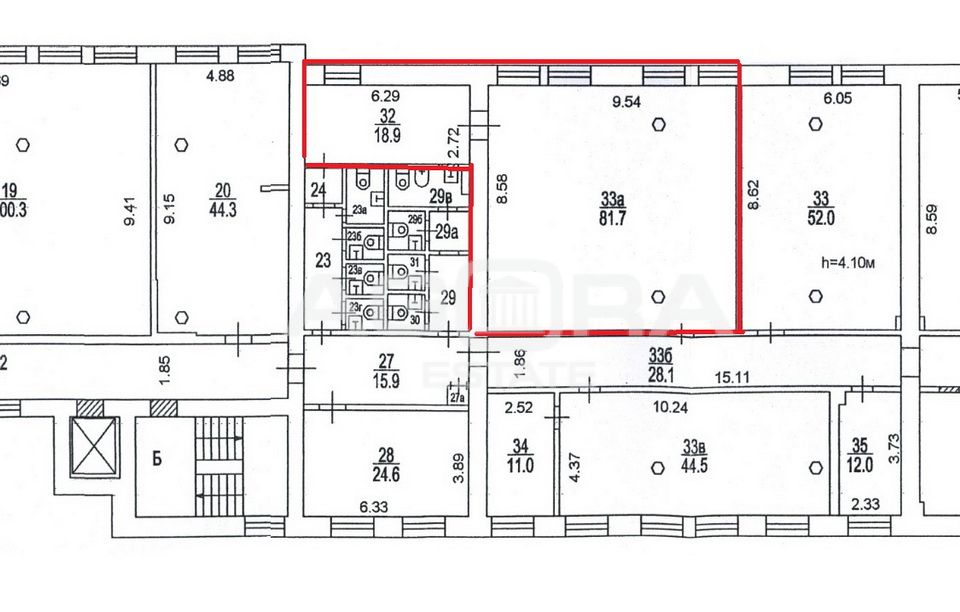
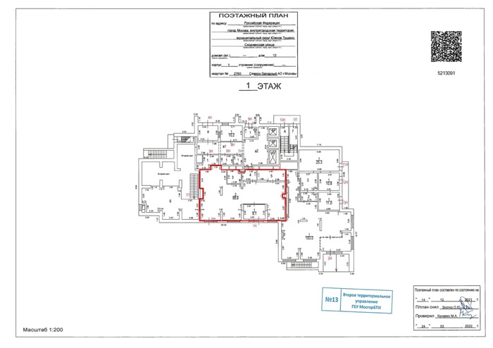
Помещение находится на 2-м этаже в 2-х этажном здании (строение 4), с высокими потолками 4,2 метра. Все центральные коммуникации – в наличии. Есть собственный с/у. Современная отделка в стиле арендатора.
Сдано в аренду. Арендатор – офис торговой компании, МАП 350 000 руб. ГАП 4 200 000 руб. КДА с правом пролонгации.
Деловой квартал Рябовская Мануфактура - это кластер общей площадью более 55 000 м2, в состав которого входят 16 зданий переменной этажности. Есть наземная парковка на 165 м/м. Территория Делового квартала – стильная и благоустроенная, свободный доступ 24/7 (без пропускной системы). Концепция «Товарищества» - это пространство для бизнеса, в котором можно не только комфортно работать, но и проводить время, заниматься спортом, встречаться с друзьями и партнерами по бизнесу. В этом объекте сохранена история квартала, история города и построено новое пространство для общения.
Среди арендаторов делового квартала – офисы, кафе и рестораны, шоурумы одежды и мебели, мастерские и сервисный центр, салоны красоты, интернет-магазины, логистическая компания, отель и т.д.
Рядом находятся ТЦ "Ереван плаза", Даниловский рынок, Арбитражный суд, Данилов монастырь, БЦ, театры и объекты культуры.
Объект № 545621
Помещение находится на 2-м этаже в 2-х этажном здании (строение 4), с высокими потолками 4,2 метра. Все центральные коммуникации – в наличии. Есть собственный с/у. Современная отделка в стиле арендатора.
Сдано в аренду. Арендатор – офис торговой компании, МАП 350 000 руб. ГАП 4 200 000 руб. КДА с правом пролонгации.
Деловой квартал Рябовская Мануфактура - это кластер общей площадью более 55 000 м2, в состав которого входят 16 зданий переменной этажности. Есть наземная парковка на 165 м/м. Территория Делового квартала – стильная и благоустроенная, свободный доступ 24/7 (без пропускной системы). Концепция «Товарищества» - это пространство для бизнеса, в котором можно не только комфортно работать, но и проводить время, заниматься спортом, встречаться с друзьями и партнерами по бизнесу. В этом объекте сохранена история квартала, история города и построено новое пространство для общения.
Среди арендаторов делового квартала – офисы, кафе и рестораны, шоурумы одежды и мебели, мастерские и сервисный центр, салоны красоты, интернет-магазины, логистическая компания, отель и т.д.
Рядом находятся ТЦ "Ереван плаза", Даниловский рынок, Арбитражный суд, Данилов монастырь, БЦ, театры и объекты культуры.
Объект № 545621
Расположение
г Москва, пер Холодильный, д 3 стр 4
Тульская
—
4 мин
Шаболовская
—
19 мин
ЗИЛ
—
23 мин
Технические характеристики
Параметры
Инженерия
кондиционер
Статус владельца объявления
агентство
Параметры помещения
Высота потолков
—
Свободные помещения в Деловой квартал Товарищество Рябовской Мануфактуры
Новость дня
Расширение возможностей для B2B-клиентов: Avito вводит новые услуги для строительства складов
На платформе Авито теперь доступна категория "Коммерческое строительство" в сегменте услуг, предлагающая широкий выбор специализированных работ и возведение объектов "под ключ" для бизнеса, что упрощает поиск подрядчиков и субподрядчиков для коммерческих проектов.
Все новости
30 апреля, четверг / Москва
"Бумеранг Капитал" увеличил свою долю в сети кафе-пекарен "Цех 85" до 50%
30 апреля, четверг / Ставропольский
В Кисловодске начался проект строительства инвестиционного отеля "Реликт"
30 апреля, четверг / Москва
Ресторан «Долина 5165» и магазин Sokolov теперь доступны посетителям ТРЦ Avenue Sever
30 апреля, четверг / Москва
"Новый флагманский магазин под названием «Флаувау» открыл свои двери на Мясницкой улице"
30 апреля, четверг / Москва
"Уровень вакансии на складах в Московском регионе достиг 5,4% из-за увеличения предложений по субаренде"
30 апреля, четверг / Москва
"Прогнозируется незначительный прирост числа туристов в первом квартале 2026 года - всего 2,8%"
30 апреля, четверг / Москва
Компания "Ориентир" планирует вложить до 150 млрд рублей в расширение бизнеса и развитие новых секторов.
30 апреля, четверг / Москва
"Завершено строительство наземной парковки на 400 автомобильных мест в парке «Ривер Парк Коломенское»"
30 апреля, четверг / Москва
Скорось открытия новых магазинов «Лэтуаль» снизится - 150 точек закроются к 2026 году.
30 апреля, четверг / Москва
Смайл-бар сети "Белая точка" теперь доступен посетителям ТЦ "Левел Причальный"
29 апреля, среда / Москва
Московский цех открыл производство 3D-принтеров для металлической печати.
29 апреля, среда / Москва
БМ-банк завершил продажу большей части площадей в ТЦ «Весна» на Новом Арбате.
29 апреля, среда / Москва
Перефразированное название: "Сеть магазинов 'Жизньмарт' возобновляет свою деятельность в Челябинске"
29 апреля, среда / Санкт-Петербург
Сервисный офис «Практик» начал свою работу на Октябрьской набережной в Санкт-Петербурге.
29 апреля, среда / Санкт-Петербург
Строительство складских помещений в Санкт-Петербурге и Ленинградской области увеличилось в 2,5 раза.
29 апреля, среда / Москва
Москва увеличила объем строительства в рамках программы МПТ до 9,5 миллионов квадратных метров
29 апреля, среда / Санкт-Петербург
Соседский центр "ЖИВИ Клуб" открыл свои двери в Новоселье
29 апреля, среда / Москва
"Завершено строительство пятиэтажной наземной парковки в районе Нагатинский Затон"
29 апреля, среда / Санкт-Петербург
Рекордный уровень строительства складов зафиксирован в Санкт-Петербурге и Ленинградской области
29 апреля, среда / Москва
Аренда складов в Москве снизилась на 25%