Главная
Аренда торговых помещений в Москве и МО
Торговое помещение 24 м² в Street retail Солянский тупик д.1/4, стр.1-2
Снять торговое помещение 24 м² в Street retail Солянский тупик д.1/4, стр.1-2
Описание
Номер объекта: 548922. Аренда торгового помещения, ЦАО, Таганский район, на выходе из метро Китай-город.
Первая линия домов Солянского проезда.
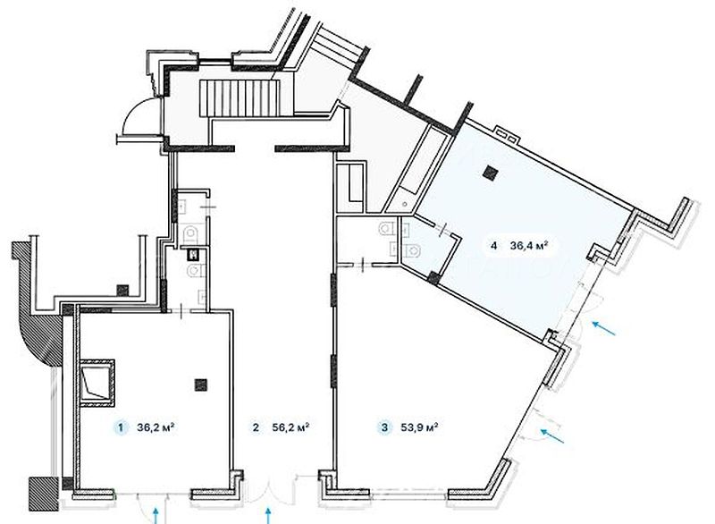
Площадь 24,6 кв.м (на плане - Блок 10). Отдельный вход с улицы. Планировка открытая, высокие потолки, состояние - с отделкой.
Здание расположено в районе с высокой деловой активностью. В шаговой доступности метро Китай-город, Славянская площадь, Лубянский проезд. Рядом с помещениями расположены кафе, рестораны, салоны красоты, магазины косметики и парфюмерии, аптеки, стоматологические центры, банки.
Гарантированный сверхинтенсивный пешеходный трафик. Высокий маркетинговый потенциал.Объект № 548922
Первая линия домов Солянского проезда.
Площадь 24,6 кв.м (на плане - Блок 10). Отдельный вход с улицы. Планировка открытая, высокие потолки, состояние - с отделкой.
Здание расположено в районе с высокой деловой активностью. В шаговой доступности метро Китай-город, Славянская площадь, Лубянский проезд. Рядом с помещениями расположены кафе, рестораны, салоны красоты, магазины косметики и парфюмерии, аптеки, стоматологические центры, банки.
Гарантированный сверхинтенсивный пешеходный трафик. Высокий маркетинговый потенциал.Объект № 548922
Расположение
г Москва, ул Солянка, д 2/6
Китай-город
—
1 мин
Китай-город
—
1 мин
Пл. Революции
—
11 мин
Технические характеристики
Параметры
Статус владельца объявления
агентство
Класс
b
Параметры помещения
Высота потолков
—
Свободные помещения в Street retail Солянский тупик д.1/4, стр.1-2
Новость дня
Расширение возможностей для B2B-клиентов: Avito вводит новые услуги для строительства складов
На платформе Авито теперь доступна категория "Коммерческое строительство" в сегменте услуг, предлагающая широкий выбор специализированных работ и возведение объектов "под ключ" для бизнеса, что упрощает поиск подрядчиков и субподрядчиков для коммерческих проектов.
Все новости
Сегодня — 30 апреля, четверг / Москва
"Бумеранг Капитал" увеличил свою долю в сети кафе-пекарен "Цех 85" до 50%
Сегодня — 30 апреля, четверг / Ставропольский
В Кисловодске начался проект строительства инвестиционного отеля "Реликт"
Сегодня — 30 апреля, четверг / Москва
Ресторан «Долина 5165» и магазин Sokolov теперь доступны посетителям ТРЦ Avenue Sever
Сегодня — 30 апреля, четверг / Москва
"Новый флагманский магазин под названием «Флаувау» открыл свои двери на Мясницкой улице"
Сегодня — 30 апреля, четверг / Москва
"Уровень вакансии на складах в Московском регионе достиг 5,4% из-за увеличения предложений по субаренде"
Сегодня — 30 апреля, четверг / Москва
"Прогнозируется незначительный прирост числа туристов в первом квартале 2026 года - всего 2,8%"
Сегодня — 30 апреля, четверг / Москва
Компания "Ориентир" планирует вложить до 150 млрд рублей в расширение бизнеса и развитие новых секторов.
Сегодня — 30 апреля, четверг / Москва
"Завершено строительство наземной парковки на 400 автомобильных мест в парке «Ривер Парк Коломенское»"
Сегодня — 30 апреля, четверг / Москва
Скорось открытия новых магазинов «Лэтуаль» снизится - 150 точек закроются к 2026 году.
Сегодня — 30 апреля, четверг / Москва
Смайл-бар сети "Белая точка" теперь доступен посетителям ТЦ "Левел Причальный"
Вчера — 29 апреля, среда / Москва
Московский цех открыл производство 3D-принтеров для металлической печати.
Вчера — 29 апреля, среда / Москва
БМ-банк завершил продажу большей части площадей в ТЦ «Весна» на Новом Арбате.
Вчера — 29 апреля, среда / Москва
Перефразированное название: "Сеть магазинов 'Жизньмарт' возобновляет свою деятельность в Челябинске"
Вчера — 29 апреля, среда / Санкт-Петербург
Сервисный офис «Практик» начал свою работу на Октябрьской набережной в Санкт-Петербурге.
Вчера — 29 апреля, среда / Санкт-Петербург
Строительство складских помещений в Санкт-Петербурге и Ленинградской области увеличилось в 2,5 раза.
Вчера — 29 апреля, среда / Москва
Москва увеличила объем строительства в рамках программы МПТ до 9,5 миллионов квадратных метров
Вчера — 29 апреля, среда / Санкт-Петербург
Соседский центр "ЖИВИ Клуб" открыл свои двери в Новоселье
Вчера — 29 апреля, среда / Москва
"Завершено строительство пятиэтажной наземной парковки в районе Нагатинский Затон"
Вчера — 29 апреля, среда / Санкт-Петербург
Рекордный уровень строительства складов зафиксирован в Санкт-Петербурге и Ленинградской области
Вчера — 29 апреля, среда / Москва
Аренда складов в Москве снизилась на 25%