Снять торговое помещение 62 м² в ЖК Скандинавия
Описание
Предложение напрямую от застройщика!
ХАРАКТЕРИСТИКИ ПОМЕЩЕНИЯ
Стоимость аренды в мес.: 120 000 рублей
Стоимость аренды за м2/мес.: 1 929 рублей
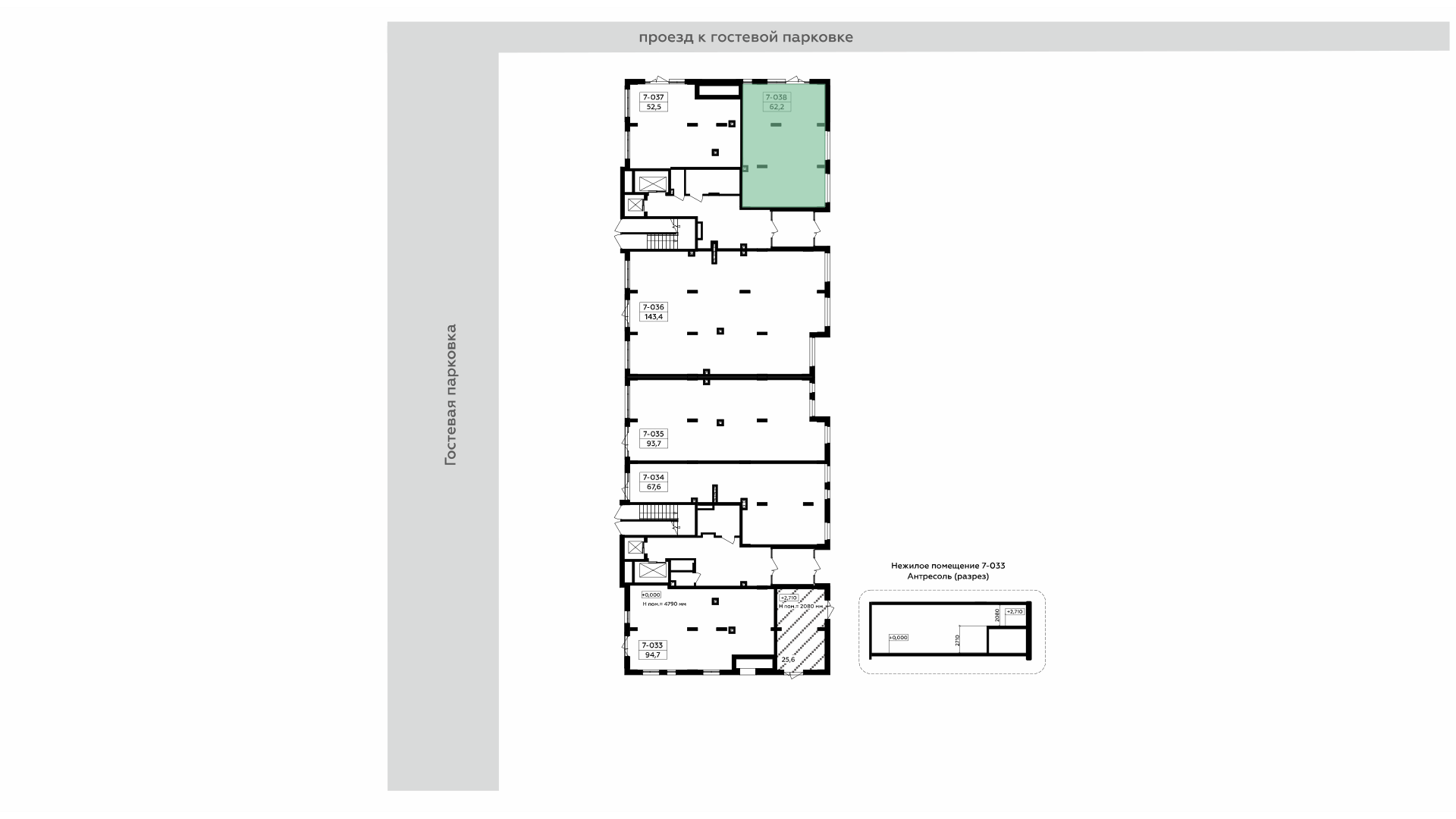
Площадь: 62,2 м2
Назначение: свободное назначение
Отделка: нет
Потолки: 4,04 м
Разрешенная мощность: 12,4 кВт
Система вентиляции: Ø100, 200х100
Количество входов: 1
Витринное остекление: нет
ЖК «Скандинавия» - Более 60 000 человек численность населения. Первая и вторая очереди проекта заселены в 2019 году.
ЖК «Скандинавия» строится на границе Бутовского лесопарка в экологически благоприятной юго-западной части Москвы — для тех, кто выбирает для себя и своей семьи комфорт мегаполиса, но жить предпочитает в окружении природы. Главная идея — баланс жилья и сервисов, транспортной доступности и комфортной удалённости от трасс, шумных зон для активных видов отдыха и уютных зелёных островков для созерцания и релаксации. 5 детских садов и 1 школа открыты. Квартиры с планировки для семей. Бутовский лесопарк 1610 га. 6 детских садов и 3 школы проектируются и строятся. 100 га городских и парковых пространств.
Арендуя помещение, вы можете воспользоваться интерактивным подбором помещений, выбрать помещение с акцептом франшизы. Мы создали платформу «А101 Бизнес» с учётом потребностей владельцев бизнесов, инвесторов и сформировали предложения для каждой группы покупателей, арендодателей и арендаторов.
ЖИЛОЙ КОМПЛЕКС РАСПОЛОЖЕН
Ст. метро «Новомосковская» (2023г.) 700м, ст. метро «Коммунарка» 2 км, ст. метро «Тёплый Стан» 7 км, ст. метро «Бунинская аллея» 5,5 км, МКАД 6,5 км, Калужское шоссе 2,9 км.
ХАРАКТЕРИСТИКИ ПОМЕЩЕНИЯ
Стоимость аренды в мес.: 120 000 рублей
Стоимость аренды за м2/мес.: 1 929 рублей
Площадь: 62,2 м2
Назначение: свободное назначение
Отделка: нет
Потолки: 4,04 м
Разрешенная мощность: 12,4 кВт
Система вентиляции: Ø100, 200х100
Количество входов: 1
Витринное остекление: нет
ЖК «Скандинавия» - Более 60 000 человек численность населения. Первая и вторая очереди проекта заселены в 2019 году.
ЖК «Скандинавия» строится на границе Бутовского лесопарка в экологически благоприятной юго-западной части Москвы — для тех, кто выбирает для себя и своей семьи комфорт мегаполиса, но жить предпочитает в окружении природы. Главная идея — баланс жилья и сервисов, транспортной доступности и комфортной удалённости от трасс, шумных зон для активных видов отдыха и уютных зелёных островков для созерцания и релаксации. 5 детских садов и 1 школа открыты. Квартиры с планировки для семей. Бутовский лесопарк 1610 га. 6 детских садов и 3 школы проектируются и строятся. 100 га городских и парковых пространств.
Арендуя помещение, вы можете воспользоваться интерактивным подбором помещений, выбрать помещение с акцептом франшизы. Мы создали платформу «А101 Бизнес» с учётом потребностей владельцев бизнесов, инвесторов и сформировали предложения для каждой группы покупателей, арендодателей и арендаторов.
ЖИЛОЙ КОМПЛЕКС РАСПОЛОЖЕН
Ст. метро «Новомосковская» (2023г.) 700м, ст. метро «Коммунарка» 2 км, ст. метро «Тёплый Стан» 7 км, ст. метро «Бунинская аллея» 5,5 км, МКАД 6,5 км, Калужское шоссе 2,9 км.
Расположение
г Москва, Сосенское п, б-р Скандинавский, д 19
Улица Горчакова
—
25 мин
Бунинская аллея
—
25 мин
Потапово
—
14 мин
Технические характеристики
Свободные помещения в ЖК Скандинавия
Новость дня
Все новости
Сегодня — 30 апреля, четверг / Ставропольский
В Кисловодске начался проект строительства инвестиционного отеля "Реликт"
Сегодня — 30 апреля, четверг / Москва
Ресторан «Долина 5165» и магазин Sokolov теперь доступны посетителям ТРЦ Avenue Sever
Сегодня — 30 апреля, четверг / Москва
"Новый флагманский магазин под названием «Флаувау» открыл свои двери на Мясницкой улице"
Сегодня — 30 апреля, четверг / Москва
"Уровень вакансии на складах в Московском регионе достиг 5,4% из-за увеличения предложений по субаренде"
Сегодня — 30 апреля, четверг / Москва
"Прогнозируется незначительный прирост числа туристов в первом квартале 2026 года - всего 2,8%"
Сегодня — 30 апреля, четверг / Москва
Компания "Ориентир" планирует вложить до 150 млрд рублей в расширение бизнеса и развитие новых секторов.
Сегодня — 30 апреля, четверг / Москва
"Завершено строительство наземной парковки на 400 автомобильных мест в парке «Ривер Парк Коломенское»"
Сегодня — 30 апреля, четверг / Москва
Скорось открытия новых магазинов «Лэтуаль» снизится - 150 точек закроются к 2026 году.
Сегодня — 30 апреля, четверг / Москва
Смайл-бар сети "Белая точка" теперь доступен посетителям ТЦ "Левел Причальный"
Вчера — 29 апреля, среда / Москва
Московский цех открыл производство 3D-принтеров для металлической печати.
Вчера — 29 апреля, среда / Москва
БМ-банк завершил продажу большей части площадей в ТЦ «Весна» на Новом Арбате.
Вчера — 29 апреля, среда / Москва
Перефразированное название: "Сеть магазинов 'Жизньмарт' возобновляет свою деятельность в Челябинске"
Вчера — 29 апреля, среда / Санкт-Петербург
Сервисный офис «Практик» начал свою работу на Октябрьской набережной в Санкт-Петербурге.
Вчера — 29 апреля, среда / Санкт-Петербург
Строительство складских помещений в Санкт-Петербурге и Ленинградской области увеличилось в 2,5 раза.
Вчера — 29 апреля, среда / Москва
Москва увеличила объем строительства в рамках программы МПТ до 9,5 миллионов квадратных метров
Вчера — 29 апреля, среда / Санкт-Петербург
Соседский центр "ЖИВИ Клуб" открыл свои двери в Новоселье
Вчера — 29 апреля, среда / Москва
"Завершено строительство пятиэтажной наземной парковки в районе Нагатинский Затон"
Вчера — 29 апреля, среда / Санкт-Петербург
Рекордный уровень строительства складов зафиксирован в Санкт-Петербурге и Ленинградской области
Вчера — 29 апреля, среда / Москва
Аренда складов в Москве снизилась на 25%
28 апреля, вторник / Москва
"Появление двух новых брендов на российском рынке в начале 2026 года"