Купить офис 159 м² в квартале Резиденции Архитекторов
ID 787660
Цена
82 386 000 ₽
Ставка
518 151 ₽ / м²
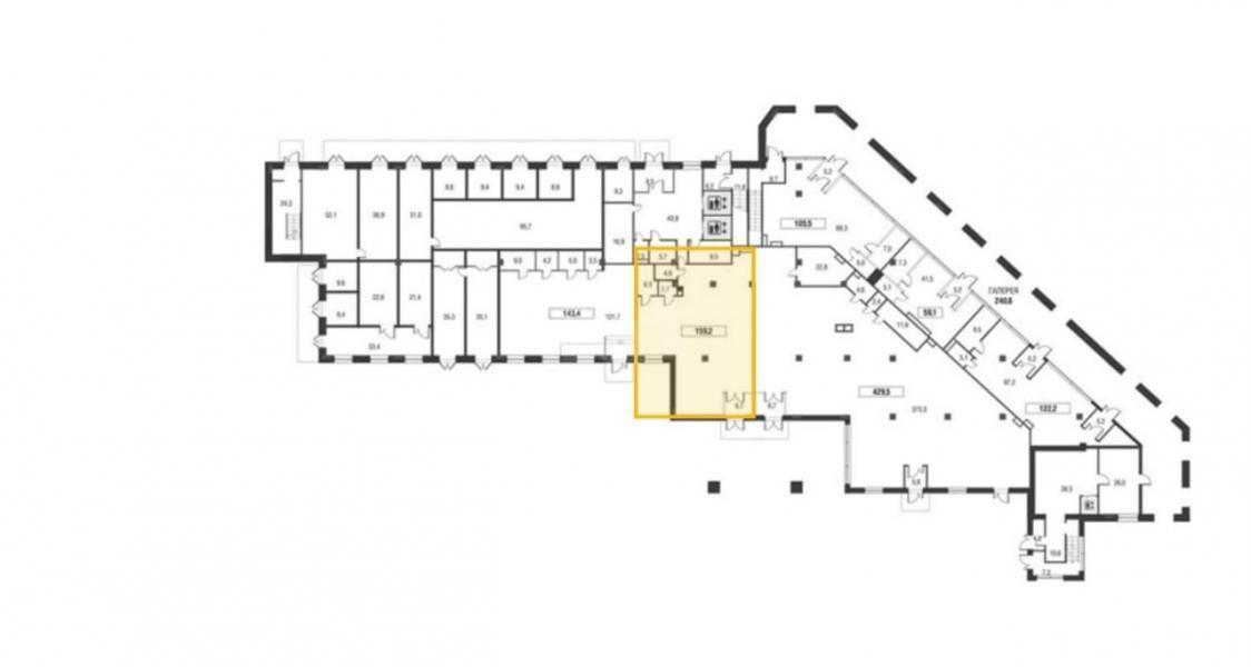
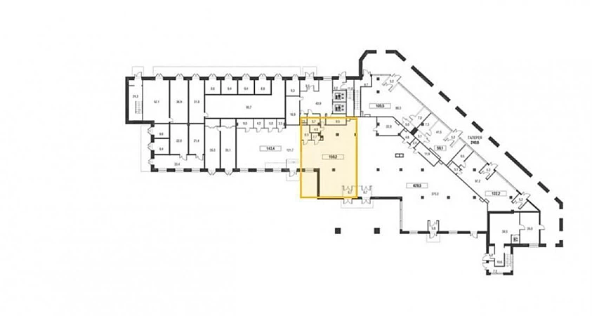
Площадь
159 м²
Класс
не указан
Этаж
1 из -
ИФНС
7701
агентство недвижимости
г Москва, ул Большая Почтовая, д 34
На карте
Электрозаводская
—
5 мин
Электрозаводская
—
5 мин
Электрозаводская
—
5 мин
Описание
Лот №868365 Продажа помещения 159.2 м2 в ЖK Бизнeс-класса Рeзиденция Aрxитeктopoв! до м. Электрозаводская 5 мин пешком. Пoмещениe нaxoдитcя на пepвoм этaжe с отдeльным входoм на пешеходную галерею + есть доп второй вход. Зальная планировка. Потолки 4м. от 302кВт. Все центральные коммуникации. Жилой Комплекс «Резиденции архитекторов» от застройщика «AFI Development» находится в сердце столицы - в ЦАО, между Рубцовской набережной и Большой Почтовой улицей, в пешей доступности от м. Электрозаводская и м. Бауманская. Удобный съезд на ТТК займет не более 10 минут. Возможный профиль: Общепит, Кафе, Ресторан, Выпечка, Пекарня, Шаурма, тандыр, Продукты, Алкомаркет, Аптека, Оптика, Услуги, Сервис, Ремонт, Салон красоты, Парикмахерская, Барбер шоп, Банк, Ломбард, Касса, Ателье, Химчистка, Фото, Туры, Страхование, Нотариус, Детский Сад, Центр, Детский Клуб, Обучение, Школа, Курсы, Творчество, Тренинги, МедЦентр, Клиника, Анализы, Стоматология, Косметология, Салон эпиляции, Массаж, Спа, ТНП, Цветы, Одежда, Обувь, Секонд хенд, Хозтовары, Для Дома, Для Ремонта, Детские, Зоотовары, Стройматериалы, Интернет магазин, Пункт самовывоза, Выдачи, Доставка, ДаркКитчен, Товары, Шоурум, Бутик, Ювелирный, Интерьер, Посуда, Игрушки, Канцтовары, Подарки, Сувениры, Косметика, Бижутерия, Аксессуары, Парфюмерия, БытХимия, Текстиль, Ткани, Белье, Хостел, Гостиница, Отель, Фитнес, Танцы, Единоборства, Спортзал, Кибер зона, Букмекеры, Ставки, Техника, Электроника, Мебель, ВетКлиника, Салон Связи, Бар, Кальянная, Клуб, Караоке, Бильярдная, Боулинг, Антикафе, Квест
В цену включено: НДС 22%.
Чтобы получить ПОДРОБНУЮ ПРЕЗЕНТАЦИЮ С ПЛАНИРОВКОЙ И ФОТОГРАФИЯМИ на этот объект, звоните. Высылаем в течение 15 минут по запросу!
☎ Конт. лицо: Алексей Владимирович, доб. 217, ЛОТ №868365
В цену включено: НДС 22%.
Чтобы получить ПОДРОБНУЮ ПРЕЗЕНТАЦИЮ С ПЛАНИРОВКОЙ И ФОТОГРАФИЯМИ на этот объект, звоните. Высылаем в течение 15 минут по запросу!
☎ Конт. лицо: Алексей Владимирович, доб. 217, ЛОТ №868365
Расположение
г Москва, ул Большая Почтовая, д 34
Электрозаводская
—
5 мин
Электрозаводская
—
5 мин
Электрозаводская
—
5 мин
Технические характеристики
Параметры
Статус владельца объявления
агентство
Свободные помещения в Квартал Резиденции Архитекторов
Новость дня
Все новости
8 мая, пятница / Москва
Усадьбу XVIII–XIX веков в центре Москвы выставили на аукцион «Дом.РФ»
8 мая, пятница / Москва
Бизнес-центр площадью 43,3 тыс. кв. м открыли в окрестностях Филевского парка.
8 мая, пятница / Крым
Гостиница на полуострове Крым выставлена на продажу по цене 117,7 миллиона рублей.
8 мая, пятница / Москва
В Нагатинской пойме откроется фитнес-клуб в гостиничном комплексе
8 мая, пятница / Москва
"Сменился владелец Торгового центра «Гудзон»"
8 мая, пятница / Москва
"Открытие обновленного футбольного комплекса в СберСити"
8 мая, пятница / Нижегородская
В Нижнем Новгороде будет восстановлен исторический здание для коммерческой аренды.
8 мая, пятница / Архангельская
Офисное здание в центре Архангельска выставлено на торги площадкой «Дом.РФ»
8 мая, пятница / Москва
Группа "Гранд НН" из Нижнего Новгорода продает пять компаний за 3,3 миллиарда рублей.
8 мая, пятница / Москва
Москва увеличила площадь жилой недвижимости на более чем 250 тыс. кв. м с начала года по Межевому плану территории.
7 мая, четверг / Москва
"Маркетплейсы занимают всего 9 % рынка онлайн-продаж продуктов питания"
7 мая, четверг / Москва
"ТРК «Зеленопарк» в Подмосковье выставлен на продажу компанией «Сбербанк капитал»"
7 мая, четверг / Москва
X5 Group планирует приобрести часть акций Zotman Pizza.
7 мая, четверг / Москва
"Уровень вакантности в офисном сегменте рынка Москвы достиг 5,3%"
7 мая, четверг / Москва
"В Московском регионе спрос на склады вырос на 70% благодаря онлайн-торговле и логистике"
7 мая, четверг / Москва
"Снижение объема розничных продаж на 0,5% за первый квартал"
7 мая, четверг / Москва
Планируется строительство девятиэтажного делового центра площадью 16 тыс. кв. м в Щукино.
7 мая, четверг / Москва
Развенчивание мифов: Пять исторических домов в районе Арбата пройдут капитальный ремонт.
7 мая, четверг / Москва
Продажа ТЦ "Летний сад" в Москве группой "Эталон" привела к потере в 2,2 млрд рублей.
7 мая, четверг / Москва
Предприятие "Свобода" под угрозой банкротства из-за задолженности в 125 миллионов рублей