Снять офис 3040 м² в технопарке Рябиновая
Описание
Предложение в аренду № 59834.
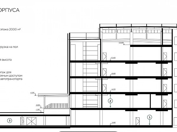
Предлагается в аренду помещение в "Парке Рябиновая", по адресу: Рябиновая улица, 44.
. Помещение на -1 этаже + антресоль, общей площадью 3 040 м2. -1 этаж 2 500 м2, антресоль 540 м2. 8х8м. шаг колонн; Бетонный пол с антипылевым покрытием (720 кг/м² нагрузка на пол). 4 грузовых лифта грузоподъемностью 5 т.; Автоматические секционные ворота. Подземный этаж для отгрузки с прямым доступом курьерского автотранспорта. Пандус для разгрузки малотоннажного транспорта (+0,9 м). Электроснабжение — 2 МВт, II категория.
.
Без комиссии.
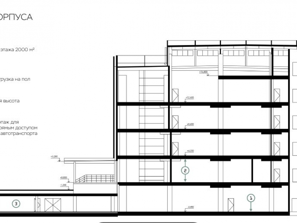
Предлагается в аренду помещение в "Парке Рябиновая", по адресу: Рябиновая улица, 44.
. Помещение на -1 этаже + антресоль, общей площадью 3 040 м2. -1 этаж 2 500 м2, антресоль 540 м2. 8х8м. шаг колонн; Бетонный пол с антипылевым покрытием (720 кг/м² нагрузка на пол). 4 грузовых лифта грузоподъемностью 5 т.; Автоматические секционные ворота. Подземный этаж для отгрузки с прямым доступом курьерского автотранспорта. Пандус для разгрузки малотоннажного транспорта (+0,9 м). Электроснабжение — 2 МВт, II категория.
.
Без комиссии.
Расположение
г Москва, ул Рябиновая, д 44
Озёрная
—
7 мин
Мещерская
—
12 мин
Очаково
—
17 мин
Технические характеристики
Параметры
Статус владельца объявления
агентство
Свободные помещения в Технопарк Рябиновая
Новость дня
Расширение возможностей для B2B-клиентов: Avito вводит новые услуги для строительства складов
На платформе Авито теперь доступна категория "Коммерческое строительство" в сегменте услуг, предлагающая широкий выбор специализированных работ и возведение объектов "под ключ" для бизнеса, что упрощает поиск подрядчиков и субподрядчиков для коммерческих проектов.
Все новости
30 апреля, четверг / Москва
"Бумеранг Капитал" увеличил свою долю в сети кафе-пекарен "Цех 85" до 50%
30 апреля, четверг / Ставропольский
В Кисловодске начался проект строительства инвестиционного отеля "Реликт"
30 апреля, четверг / Москва
Ресторан «Долина 5165» и магазин Sokolov теперь доступны посетителям ТРЦ Avenue Sever
30 апреля, четверг / Москва
"Новый флагманский магазин под названием «Флаувау» открыл свои двери на Мясницкой улице"
30 апреля, четверг / Москва
"Уровень вакансии на складах в Московском регионе достиг 5,4% из-за увеличения предложений по субаренде"
30 апреля, четверг / Москва
"Прогнозируется незначительный прирост числа туристов в первом квартале 2026 года - всего 2,8%"
30 апреля, четверг / Москва
Компания "Ориентир" планирует вложить до 150 млрд рублей в расширение бизнеса и развитие новых секторов.
30 апреля, четверг / Москва
"Завершено строительство наземной парковки на 400 автомобильных мест в парке «Ривер Парк Коломенское»"
30 апреля, четверг / Москва
Скорось открытия новых магазинов «Лэтуаль» снизится - 150 точек закроются к 2026 году.
30 апреля, четверг / Москва
Смайл-бар сети "Белая точка" теперь доступен посетителям ТЦ "Левел Причальный"
29 апреля, среда / Москва
Московский цех открыл производство 3D-принтеров для металлической печати.
29 апреля, среда / Москва
БМ-банк завершил продажу большей части площадей в ТЦ «Весна» на Новом Арбате.
29 апреля, среда / Москва
Перефразированное название: "Сеть магазинов 'Жизньмарт' возобновляет свою деятельность в Челябинске"
29 апреля, среда / Санкт-Петербург
Сервисный офис «Практик» начал свою работу на Октябрьской набережной в Санкт-Петербурге.
29 апреля, среда / Санкт-Петербург
Строительство складских помещений в Санкт-Петербурге и Ленинградской области увеличилось в 2,5 раза.
29 апреля, среда / Москва
Москва увеличила объем строительства в рамках программы МПТ до 9,5 миллионов квадратных метров
29 апреля, среда / Санкт-Петербург
Соседский центр "ЖИВИ Клуб" открыл свои двери в Новоселье
29 апреля, среда / Москва
"Завершено строительство пятиэтажной наземной парковки в районе Нагатинский Затон"
29 апреля, среда / Санкт-Петербург
Рекордный уровень строительства складов зафиксирован в Санкт-Петербурге и Ленинградской области
29 апреля, среда / Москва
Аренда складов в Москве снизилась на 25%