Описание
Продажа здания 4900 м2 в районе станции метро Кантемировская.
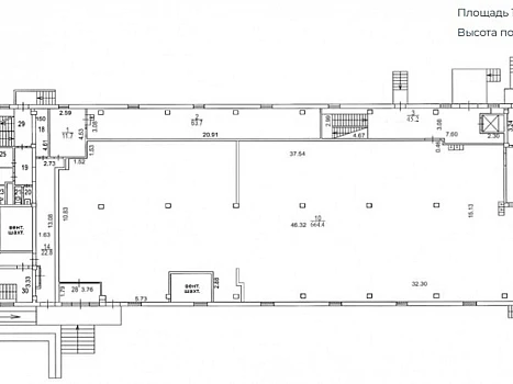
o 1, 2, 3 этажи, антресоль и минус первый этаж (парковка)
o Класс В+
o Отдельно стоящее здание, ОСЗ
o Торгово-офисный центр
o Объект незавершенного строительства – идет отделка фасадов
o Готовность объекта более 90%
o Свободная планировка
o Площадь каждого этажа, более 1000 м2
o Ближайшие станции метро Кантемировская, 3 минуты пешком
o В шаговой доступности вся необходимая инфраструктура
o Все коммуникации центральные
o Круглосуточная охрана и видеонаблюдение
o Подземная парковка
o Наземная парковка
o Продажа по ДКП
Здание расположено в районе Москворечье-Сабурово. Общая площадь здания 4900 м2. Год постройки 2025 - 2026.
Заинтересованы в аренде или покупке коммерческой недвижимости, записывайтесь на индивидуальный просмотр. Звоните!
ID: L11651
o 1, 2, 3 этажи, антресоль и минус первый этаж (парковка)
o Класс В+
o Отдельно стоящее здание, ОСЗ
o Торгово-офисный центр
o Объект незавершенного строительства – идет отделка фасадов
o Готовность объекта более 90%
o Свободная планировка
o Площадь каждого этажа, более 1000 м2
o Ближайшие станции метро Кантемировская, 3 минуты пешком
o В шаговой доступности вся необходимая инфраструктура
o Все коммуникации центральные
o Круглосуточная охрана и видеонаблюдение
o Подземная парковка
o Наземная парковка
o Продажа по ДКП
Здание расположено в районе Москворечье-Сабурово. Общая площадь здания 4900 м2. Год постройки 2025 - 2026.
Заинтересованы в аренде или покупке коммерческой недвижимости, записывайтесь на индивидуальный просмотр. Звоните!
ID: L11651
Расположение
г Москва, пр-кт Пролетарский, д 21/24
Кантемировская
—
5 мин
Каширская
—
22 мин
Технические характеристики
Параметры
Инженерия
кондиционер, вентиляция
Статус владельца объявления
агентство
Класс
b+
Новость дня
Все новости
8 мая, пятница / Москва
Усадьбу XVIII–XIX веков в центре Москвы выставили на аукцион «Дом.РФ»
8 мая, пятница / Москва
Бизнес-центр площадью 43,3 тыс. кв. м открыли в окрестностях Филевского парка.
8 мая, пятница / Крым
Гостиница на полуострове Крым выставлена на продажу по цене 117,7 миллиона рублей.
8 мая, пятница / Москва
В Нагатинской пойме откроется фитнес-клуб в гостиничном комплексе
8 мая, пятница / Москва
"Сменился владелец Торгового центра «Гудзон»"
8 мая, пятница / Москва
"Открытие обновленного футбольного комплекса в СберСити"
8 мая, пятница / Нижегородская
В Нижнем Новгороде будет восстановлен исторический здание для коммерческой аренды.
8 мая, пятница / Архангельская
Офисное здание в центре Архангельска выставлено на торги площадкой «Дом.РФ»
8 мая, пятница / Москва
Группа "Гранд НН" из Нижнего Новгорода продает пять компаний за 3,3 миллиарда рублей.
8 мая, пятница / Москва
Москва увеличила площадь жилой недвижимости на более чем 250 тыс. кв. м с начала года по Межевому плану территории.
7 мая, четверг / Москва
"Маркетплейсы занимают всего 9 % рынка онлайн-продаж продуктов питания"
7 мая, четверг / Москва
"ТРК «Зеленопарк» в Подмосковье выставлен на продажу компанией «Сбербанк капитал»"
7 мая, четверг / Москва
X5 Group планирует приобрести часть акций Zotman Pizza.
7 мая, четверг / Москва
"Уровень вакантности в офисном сегменте рынка Москвы достиг 5,3%"
7 мая, четверг / Москва
"В Московском регионе спрос на склады вырос на 70% благодаря онлайн-торговле и логистике"
7 мая, четверг / Москва
"Снижение объема розничных продаж на 0,5% за первый квартал"
7 мая, четверг / Москва
Планируется строительство девятиэтажного делового центра площадью 16 тыс. кв. м в Щукино.
7 мая, четверг / Москва
Развенчивание мифов: Пять исторических домов в районе Арбата пройдут капитальный ремонт.
7 мая, четверг / Москва
Продажа ТЦ "Летний сад" в Москве группой "Эталон" привела к потере в 2,2 млрд рублей.
7 мая, четверг / Москва
Предприятие "Свобода" под угрозой банкротства из-за задолженности в 125 миллионов рублей