Снять ПСН 1200 м²
ID 846561
Цена
2 160 000 ₽/мес
Ставка
21 600 ₽ / м² / год
Площадь
1200 м²
Этаж
2 из -
ИФНС
5029
агентство недвижимости
Московская обл, г Мытищи, пр-кт Октябрьский, д 5А
На карте
Описание
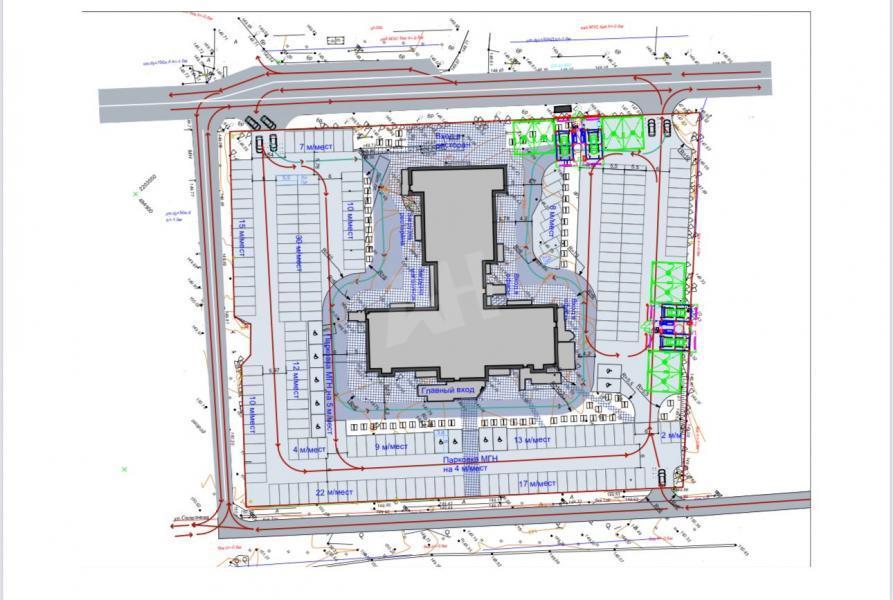
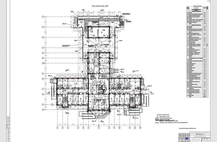
Лот №791600 Предлагается в аренду помещение на 2 этаже 1200м2 в 3-этажном здании в Мытищах в 2 мин от ж/д станции Тайнинская.
Здание состоит из 3 этажей и цоколя, высота потолков по 3 м. Электричество 120 Квт, возможно увеличение.
Здание находится в стадии реконструкции. В настоящий момент ведутся работы возведению всех коммуникаций. Будут организованы зоны разгрузки/погрузки, удобные входы и выходы для посетителей и персонала,
Здание будет подключено ко всем сетям, будут установлены лифты (грузовой/пассажирский), будет организовано благоустройство участка с парковочными местами.
Рядом со здание находится заселенный жилой комплекс, также планируется строительство новых домов, что увеличит количество населения в районе
Земельный участок 0,5Г.
С Ж/д станции Тайнинская прямой выход к этому зданию. 20 мин до МЦК, или до
метро Медведково, 7-10 мин до МКАД (4 км), удобные выезды на Осташковское и Ярославское шоссе.
Помещения подходят под:
Банки, рестораны/кафе, магазины, спорт товары, фитнес, супермаркеты, образовательный сегмент, офисы, продовольственные товары, производство, предприятие.
Предоставляем арендные каникулы.
Звоните !!! Оперативные показы день в день!
Стоимость аренды: 21600 руб/м2/год (2160000 руб в месяц) УСН. В цену включено: эксплуатационные расходы.
Чтобы получить ПОДРОБНУЮ ПРЕЗЕНТАЦИЮ С ПЛАНИРОВКОЙ И ФОТОГРАФИЯМИ на этот объект, звоните. Высылаем в течение 15 минут по запросу!
☎ Конт. лицо: Лидия Владимировна, доб. 240, ЛОТ №791600
Здание состоит из 3 этажей и цоколя, высота потолков по 3 м. Электричество 120 Квт, возможно увеличение.
Здание находится в стадии реконструкции. В настоящий момент ведутся работы возведению всех коммуникаций. Будут организованы зоны разгрузки/погрузки, удобные входы и выходы для посетителей и персонала,
Здание будет подключено ко всем сетям, будут установлены лифты (грузовой/пассажирский), будет организовано благоустройство участка с парковочными местами.
Рядом со здание находится заселенный жилой комплекс, также планируется строительство новых домов, что увеличит количество населения в районе
Земельный участок 0,5Г.
С Ж/д станции Тайнинская прямой выход к этому зданию. 20 мин до МЦК, или до
метро Медведково, 7-10 мин до МКАД (4 км), удобные выезды на Осташковское и Ярославское шоссе.
Помещения подходят под:
Банки, рестораны/кафе, магазины, спорт товары, фитнес, супермаркеты, образовательный сегмент, офисы, продовольственные товары, производство, предприятие.
Предоставляем арендные каникулы.
Звоните !!! Оперативные показы день в день!
Стоимость аренды: 21600 руб/м2/год (2160000 руб в месяц) УСН. В цену включено: эксплуатационные расходы.
Чтобы получить ПОДРОБНУЮ ПРЕЗЕНТАЦИЮ С ПЛАНИРОВКОЙ И ФОТОГРАФИЯМИ на этот объект, звоните. Высылаем в течение 15 минут по запросу!
☎ Конт. лицо: Лидия Владимировна, доб. 240, ЛОТ №791600
Расположение
Московская обл, г Мытищи, пр-кт Октябрьский, д 5А
Технические характеристики
Новость дня
Все новости
24 апреля, пятница / Москва
"Продажа бывшего офиса ПСБ на Таганке на аукционе"
24 апреля, пятница / Москва
Компания Level Group планирует создать в юго-восточной части Москвы Многофункциональный комплекс с отелем, термальным центром и спортивными объектами
24 апреля, пятница / Москва
"Более миллиона квадратных метров складских помещений доступны для использования в Московском регионе"
24 апреля, пятница / Санкт-Петербург
Инвестиции в петербургскую недвижимость уменьшились на 9% за первый квартал
24 апреля, пятница / Москва
В Бутырском районе планируют построить бизнес-центр с амфитеатром.
24 апреля, пятница / Москва
"ГК «Калашников» приобрела часть акций десяти швейных фабрик"
24 апреля, пятница / Москва
"«Восток Инвестиции» приобрел долю в 20% компании Tasty Coffee"
24 апреля, пятница / Москва
Магазин «М.Косметик» открыл свой первый филиал в Краснодарском крае, специализирующийся на товарах для дома.
24 апреля, пятница / Москва
В Тверском районе Москвы планируется создание дворцово-садового комплекса с водоемом рядом с жилым домом.
24 апреля, пятница / Москва
"Компания 'Росспиртпром' находится в процессе обсуждения возможности приобретения компании Stellar Group"
23 апреля, четверг / Москва
STONE предлагает комплексный ремонт офисных помещений по цене от 85 тыс. руб. за квадратный метр.
23 апреля, четверг / Краснодарский
"Продаётся агрокомбинат «Тепличный» в Краснодаре за 2,8 млрд рублей"
23 апреля, четверг / Москва
Nike увеличил срок действия исключительных прав на свои бренды в России до 2036 года
23 апреля, четверг / Москва
Расширение площади флагманского магазина AMAZING RED в ТРЦ "Авиапарк"
23 апреля, четверг / Москва
"Магазин «Азбука вкуса» теперь работает круглосуточно в ЖК «Остров»"
23 апреля, четверг / Москва
"Появится комьюнити-центр с крышным огородом в районе Прокшино"
23 апреля, четверг / Москва
"Разработчик жилищного проекта "Дом.РФ" продал земельные участки общей площадью 175 гектаров в 24 регионах за первый квартал"
23 апреля, четверг / Москва
"Снижение инвестиций в коммерческую недвижимость России в первом квартале на 64%"
23 апреля, четверг / Татарстан
В Казани будет возведен самый просторный президентский люкс России
23 апреля, четверг / Москва
В галерее «Чкалов» появились уголки с итальянскими и паназиатскими блюдами.