Главная
Купить производственное помещение в Москве и МО
Производственное помещение 27000 м² в пгт Столбовая
Купить производственное помещение 27000 м² в пгт Столбовая
ID 852447
Цена
900 000 000 ₽
Ставка
33 333 ₽ / м²
Площадь
27000 м²
Этаж
1 из 1
ИФНС
5043
агентство недвижимости
Московская обл, г Чехов, рп Столбовая, ул Большая, д 26
На карте
Описание
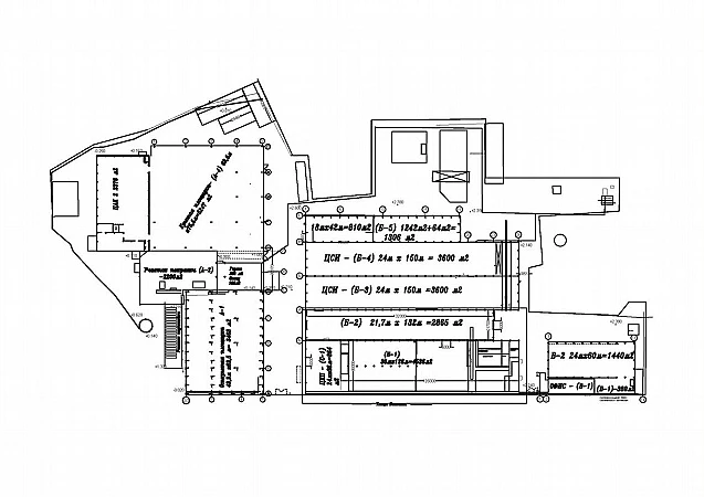
==ЛОТ 209090 == ОТ СОБСТВЕННИКА, БЕЗ КОМИССИИ. Продам: Производство-готовый бизнес/ Склад/Площади свободного назначения - общей площадью 27000 м ( г Чехов, рп Столбовая ул Большая 26). Земля 61 000 кв. м. в аренде 49 лет. Дом: тип строения - производственное, материал стен - железобетонный, этаж - 1, этажность - 1. Мощность 3440кВа, вода, канализация, отопление, газ (собственная котельная). Особенности: парковка на улице, охрана, пропускной режим, видеонаблюдение, логистические услуги, доступ на объект 7*24. Дополнительно: а/погрузчик, кран-балка, металообр., оборудование, сухой, тельфер, теплый, утепленный, ответственное хранение, наличие офиса на складе. Особенности строения: складск. комплекс, тер. предприятия., открытая площадка. Состояние: чистовая. Стоит дорогостоящее оборудование готовый бизнес под окраску, оборудование по стеклу, алюминиевое производство и тд. - готовый бизнес -участок А2 - Участок покраски 2200 кв. м. - (А-2 цо+гальваника - 3 кран-балки, 2 тельфера, туалет, раздевалка). - участок А3- производство, склад 2 376 кв. м. -(2 кран-балки по 5т. ) - участок Б1- 4 536 кв. м. производство, склад, 2 мостовых крана 10 тн, душевая, туалет, раздевалка, столовая, общежитие. - Б2- Фонарь-производство - склад- 2865 кв. М. - гпм-нет, отапливаемое, 2-ое секционных ворот 6 м, высота потлков 9м. - готовый бизнес ! Б3+Б4 7200 кв. м. - готовый бизнес, стоит оборудование по стеклу рассматриваем партнёрские отношения. (1 кран-балка 3тн, склад, 2-ой этаж для итр, 1 кран-балка-5тн, душевая, туалет, раздевалка, 2-ой этаж для итр) склад 360 метров . склад 168 м. оборудование продается отдельно при заинтересованности!21
Расположение
Московская обл, г Чехов, рп Столбовая, ул Большая, д 26
Технические характеристики
Параметры
Статус владельца объявления
агентство
Параметры помещения
Высота потолков
—
Новость дня
Расширение возможностей для B2B-клиентов: Avito вводит новые услуги для строительства складов
На платформе Авито теперь доступна категория "Коммерческое строительство" в сегменте услуг, предлагающая широкий выбор специализированных работ и возведение объектов "под ключ" для бизнеса, что упрощает поиск подрядчиков и субподрядчиков для коммерческих проектов.
Все новости
Вчера — 6 мая, среда / Москва
Рекордное количество офисных помещений введено в Москве за первый квартал текущего года.
Вчера — 6 мая, среда / Москва
"Сокращение объемов складских помещений в Московском регионе достигло 14% за первый квартал"
Вчера — 6 мая, среда / Москва
Лишь 10% жилых комплексов располагаются вблизи берега Москвы-реки.
Вчера — 6 мая, среда / Москва
Цены на отели в Москве снизились впервые за два года
Вчера — 6 мая, среда / Карачаево-Черкесская
Капиталовложения в размере 5,83 млрд рублей на развитие курорта "Альто" на Домбае от компании "Плато Девелопмент"
Вчера — 6 мая, среда / Москва
Строительство склада площадью 80 тыс. кв. м для Ozon в Пушкино будет осуществлено компанией NK Group.
Вчера — 6 мая, среда / Санкт-Петербург
«Дача Фаберже в Санкт-Петербурге будет продана на аукционе компанией «Дом.РФ»»
Вчера — 6 мая, среда / Москва
Строительство коммерческих объектов в Москве упало на 91% за год
Вчера — 6 мая, среда / Москва
Как в Москве за первый квартал 2026 года построили 5,433 тыс. кв. м офисов, готовых к адаптации.
Вчера — 6 мая, среда / Санкт-Петербург
Продуктовые сети в России увеличили свои площади в торгово-развлекательном центре Петербурга на треть за последние 6 лет.
Вчера — 6 мая, среда / Москва
С начала года в Москве получили разрешение на строительство более 130 недвижимостей.
5 мая, вторник / Москва
"Сбербанк и Альфа-банк подали в суд на производителя обоев «Артекс» с требованием объявить его банкротом"
5 мая, вторник / Красноярский
"Магазин «ВкусВилл» открыл отдел shop-in-shop в Красноярске через партнерство"
5 мая, вторник / Адыгея
Строительство жилого комплекса на территории туристического парка "Дегуакская поляна" в Адыгее начнется архитектурным проектом от "Семьи" объемом 360 тыс. квадратных метров.
5 мая, вторник / Москва
"Прогнозируется достижение рекордной площади 500 тыс. кв. м под light industrial в Московском регионе к 2026 году"
5 мая, вторник / Астраханская
Фитнес-клуб DDX Fitness открылся в Торгово-Развлекательном Центре «Ярмарка» в городе Астрахань.
5 мая, вторник / Москва
"Объем спроса на офисные помещения в Москве сократился вдвое за последний год"
5 мая, вторник / Москва
"Рост стоимости отделки офисов в Москве превышает уровень инфляции"
5 мая, вторник / Москва
В России впервые за 20 лет не было открыто ни одной новой гостиницы в первом квартале
5 мая, вторник / Москва
Спрос на услуги аренды апартаментов в Санкт-Петербурге упал на четверть.