Описание
Предложение на продажу № 60112.
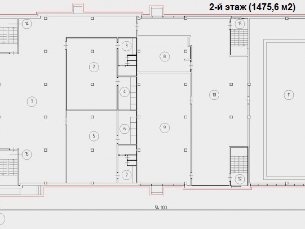
Продаем отдельно стоящее 3-х этажное здание МФЦ площадью 3458,8 м2 в центре крупного жилого массива с многоквартирными домами района Южного Бутово. От метро "Бульвар Адмирала Ушакова", "Улица Горчакова" 15 минут пешком. Первая линия домов, большие витрины по периметру здания. Рекламные площади по фасаду здания. Зальная планировка. Высокие потолки от 5 до 9 м. Здание монолитное, современное, все инженерные системы централизованные, гвс, хвс, отопление, канализация, су, мокрые точки, бассейн на 2-м этаже. Эл-во 400 кВт. Парковка на 80 машино-мест вдоль периметра. Земельный участок 4100 кв.м. долгосрочная аренда. Идеально под ТЦ с фитнес-центром и бассейном и душевыми на 2-м этаже здания. Отличное место под Медцентр, Супермаркет, Торговый центр. Удачное месторасположение, удобный заезд и выезд к зданию. На 1-ом этаже 10 отдельных входов с улицы, удобная зона для разгрузки-погрузки арендаторов. Площадь 1 этажа 1482,4 м2, 2 этаж 1482 м2, Мансардный этаж 354,7 м2 + второй свет над чашей бассейна 2-го этажа. Долгосрочная аренда.
Этажи с 1 по 3.
Торговая недвижимость, Street Retail. 1 линия домов. Ресторанная вытяжка. Торговый центр. Витрины. Место для рекламы. Зона разгрузки. Проходное и проездное место.
Без комиссии.
Продаем отдельно стоящее 3-х этажное здание МФЦ площадью 3458,8 м2 в центре крупного жилого массива с многоквартирными домами района Южного Бутово. От метро "Бульвар Адмирала Ушакова", "Улица Горчакова" 15 минут пешком. Первая линия домов, большие витрины по периметру здания. Рекламные площади по фасаду здания. Зальная планировка. Высокие потолки от 5 до 9 м. Здание монолитное, современное, все инженерные системы централизованные, гвс, хвс, отопление, канализация, су, мокрые точки, бассейн на 2-м этаже. Эл-во 400 кВт. Парковка на 80 машино-мест вдоль периметра. Земельный участок 4100 кв.м. долгосрочная аренда. Идеально под ТЦ с фитнес-центром и бассейном и душевыми на 2-м этаже здания. Отличное место под Медцентр, Супермаркет, Торговый центр. Удачное месторасположение, удобный заезд и выезд к зданию. На 1-ом этаже 10 отдельных входов с улицы, удобная зона для разгрузки-погрузки арендаторов. Площадь 1 этажа 1482,4 м2, 2 этаж 1482 м2, Мансардный этаж 354,7 м2 + второй свет над чашей бассейна 2-го этажа. Долгосрочная аренда.
Этажи с 1 по 3.
Торговая недвижимость, Street Retail. 1 линия домов. Ресторанная вытяжка. Торговый центр. Витрины. Место для рекламы. Зона разгрузки. Проходное и проездное место.
Без комиссии.
Расположение
г Москва, проезд Чечёрский, влд 22
Технические характеристики
Параметры
Статус владельца объявления
агентство
Новость дня
Расширение возможностей для B2B-клиентов: Avito вводит новые услуги для строительства складов
На платформе Авито теперь доступна категория "Коммерческое строительство" в сегменте услуг, предлагающая широкий выбор специализированных работ и возведение объектов "под ключ" для бизнеса, что упрощает поиск подрядчиков и субподрядчиков для коммерческих проектов.
Все новости
Сегодня — 4 мая, понедельник / Москва
Вложения в недвижимость России за первую половину текущего года составили 169,5 миллиарда рублей.
Сегодня — 4 мая, понедельник / Москва
Российский складской рынок продолжает расти: площадь складских помещений превысит 60 млн кв. м к концу 2026 года
Сегодня — 4 мая, понедельник / Москва
"Компания "Галс-Девелопмент" получила одобрение на строительство делового центра "Дубининский"."
Сегодня — 4 мая, понедельник / Москва
Инвестиционный фонд "Бумеранг Капитал" стал владельцем половины сети кофеен "Цех 85"
Сегодня — 4 мая, понедельник / Краснодарский
В Анапе откроется первый отель с инновационными IT-сервисами
Сегодня — 4 мая, понедельник / Москва
Планируется строительство торгового центра площадью свыше 6 тыс. кв. м в Краснопахорском районе Москвы.
Сегодня — 4 мая, понедельник / Москва
Смена собственника у клубов «Дикая орхидея» и «Дефиле»
Сегодня — 4 мая, понедельник / Вологодская
"Прекращена деятельность "наливаек" и магазинов электронных сигарет в Вологодской области"
Сегодня — 4 мая, понедельник / Москва
"Exeed перемещает производство из Подмосковья на площадку АГР в Шушарах"
Сегодня — 4 мая, понедельник / Москва
На юге Москвы запланировано строительство ТПУ "Кленовый бульвар" на площади 2 гектара.
30 апреля, четверг / Москва
"Бумеранг Капитал" увеличил свою долю в сети кафе-пекарен "Цех 85" до 50%
30 апреля, четверг / Ставропольский
В Кисловодске начался проект строительства инвестиционного отеля "Реликт"
30 апреля, четверг / Москва
Ресторан «Долина 5165» и магазин Sokolov теперь доступны посетителям ТРЦ Avenue Sever
30 апреля, четверг / Москва
"Новый флагманский магазин под названием «Флаувау» открыл свои двери на Мясницкой улице"
30 апреля, четверг / Москва
"Уровень вакансии на складах в Московском регионе достиг 5,4% из-за увеличения предложений по субаренде"
30 апреля, четверг / Москва
"Прогнозируется незначительный прирост числа туристов в первом квартале 2026 года - всего 2,8%"
30 апреля, четверг / Москва
Компания "Ориентир" планирует вложить до 150 млрд рублей в расширение бизнеса и развитие новых секторов.
30 апреля, четверг / Москва
"Завершено строительство наземной парковки на 400 автомобильных мест в парке «Ривер Парк Коломенское»"
30 апреля, четверг / Москва
Скорось открытия новых магазинов «Лэтуаль» снизится - 150 точек закроются к 2026 году.
30 апреля, четверг / Москва
Смайл-бар сети "Белая точка" теперь доступен посетителям ТЦ "Левел Причальный"