Снять торговое помещение 95 м² в ЖК Испанские кварталы
Описание
Предложение напрямую от застройщика!
ХАРАКТЕРИСТИКИ ПОМЕЩЕНИЯ
Стоимость аренды в мес.: 191 000 рублей
Стоимость аренды за м2/мес.: 2 000 рублей
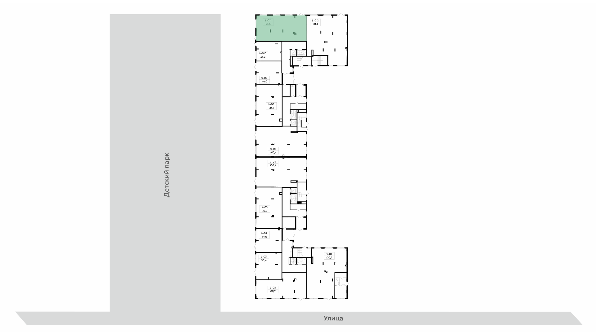
Площадь: 95,5 м2
Назначение: свободное назначение
Отделка: есть
Потолки: 4,22 м
Разрешенная мощность: 39,4 кВт
Система вентиляции: Ш100, Ш200
Количество входов: 2
Витринное остекление: нет
«Испанские кварталы» - более 23 500 человек численность населения.
Проект Испанские кварталы 1 заселен в 2018 г.
«Испанские кварталы» - обособленный жилой комплекс с хорошей транспортной доступностью в НАО Москвы. Сейчас строится второй район проекта с жилыми домами комфорт-
и бизнес-класса, магазинами, кафе, бытовыми сервисами, детскими садами и крупным образовательным комплексом. Для отдыха, прогулок и общения жителей в нём появятся пешеходный бульвар и собственная благоустроенная набережная с удобными спусками к воде, местами для спокойного и активного отдыха. Первый район, где уже построены все жилые дома и работает инфраструктура, в 2020 году стал «Лучшим реализованным проектом в области строительства домов повышенной комфортности» – по результатам открытого голосования на портале «Активный гражданин». В жилом комплексе дома бизнес-класса и комфорт-класса, квартиры с дизайнерской отделкой, пред чистовой отделкой, без отделки.
Арендуя помещение, вы можете воспользоваться интерактивным подбором помещений, выбрать помещение с акцептом франшизы. Мы создали платформу «А101 Бизнес» с учётом потребностей владельцев бизнесов, инвесторов и сформировали предложения для каждой группы покупателей, арендодателей и арендаторов.
ЖИЛОЙ КОМПЛЕКС РАСПОЛОЖЕН
ст. метро «Прокшино» 1,5 км, Калужское шоссе 3 км, Киевское шоссе 2 км, МКАД 4,7 км, выезд на СБВ 1км.
ХАРАКТЕРИСТИКИ ПОМЕЩЕНИЯ
Стоимость аренды в мес.: 191 000 рублей
Стоимость аренды за м2/мес.: 2 000 рублей
Площадь: 95,5 м2
Назначение: свободное назначение
Отделка: есть
Потолки: 4,22 м
Разрешенная мощность: 39,4 кВт
Система вентиляции: Ш100, Ш200
Количество входов: 2
Витринное остекление: нет
«Испанские кварталы» - более 23 500 человек численность населения.
Проект Испанские кварталы 1 заселен в 2018 г.
«Испанские кварталы» - обособленный жилой комплекс с хорошей транспортной доступностью в НАО Москвы. Сейчас строится второй район проекта с жилыми домами комфорт-
и бизнес-класса, магазинами, кафе, бытовыми сервисами, детскими садами и крупным образовательным комплексом. Для отдыха, прогулок и общения жителей в нём появятся пешеходный бульвар и собственная благоустроенная набережная с удобными спусками к воде, местами для спокойного и активного отдыха. Первый район, где уже построены все жилые дома и работает инфраструктура, в 2020 году стал «Лучшим реализованным проектом в области строительства домов повышенной комфортности» – по результатам открытого голосования на портале «Активный гражданин». В жилом комплексе дома бизнес-класса и комфорт-класса, квартиры с дизайнерской отделкой, пред чистовой отделкой, без отделки.
Арендуя помещение, вы можете воспользоваться интерактивным подбором помещений, выбрать помещение с акцептом франшизы. Мы создали платформу «А101 Бизнес» с учётом потребностей владельцев бизнесов, инвесторов и сформировали предложения для каждой группы покупателей, арендодателей и арендаторов.
ЖИЛОЙ КОМПЛЕКС РАСПОЛОЖЕН
ст. метро «Прокшино» 1,5 км, Калужское шоссе 3 км, Киевское шоссе 2 км, МКАД 4,7 км, выезд на СБВ 1км.
Расположение
г Москва, Сосенское п, ул Сервантеса
Технические характеристики
Свободные помещения в ЖК Испанские кварталы
Новость дня
Расширение возможностей для B2B-клиентов: Avito вводит новые услуги для строительства складов
На платформе Авито теперь доступна категория "Коммерческое строительство" в сегменте услуг, предлагающая широкий выбор специализированных работ и возведение объектов "под ключ" для бизнеса, что упрощает поиск подрядчиков и субподрядчиков для коммерческих проектов.
Все новости
Сегодня — 7 мая, четверг / Москва
"Уровень вакантности в офисном сегменте рынка Москвы достиг 5,3%"
Сегодня — 7 мая, четверг / Москва
"В Московском регионе спрос на склады вырос на 70% благодаря онлайн-торговле и логистике"
Сегодня — 7 мая, четверг / Москва
"Снижение объема розничных продаж на 0,5% за первый квартал"
Сегодня — 7 мая, четверг / Москва
Планируется строительство девятиэтажного делового центра площадью 16 тыс. кв. м в Щукино.
Сегодня — 7 мая, четверг / Москва
Развенчивание мифов: Пять исторических домов в районе Арбата пройдут капитальный ремонт.
Сегодня — 7 мая, четверг / Москва
Продажа ТЦ "Летний сад" в Москве группой "Эталон" привела к потере в 2,2 млрд рублей.
Сегодня — 7 мая, четверг / Москва
Предприятие "Свобода" под угрозой банкротства из-за задолженности в 125 миллионов рублей
Вчера — 6 мая, среда / Москва
Рекордное количество офисных помещений введено в Москве за первый квартал текущего года.
Вчера — 6 мая, среда / Москва
"Сокращение объемов складских помещений в Московском регионе достигло 14% за первый квартал"
Вчера — 6 мая, среда / Москва
Лишь 10% жилых комплексов располагаются вблизи берега Москвы-реки.
Вчера — 6 мая, среда / Москва
Цены на отели в Москве снизились впервые за два года
Вчера — 6 мая, среда / Карачаево-Черкесская
Капиталовложения в размере 5,83 млрд рублей на развитие курорта "Альто" на Домбае от компании "Плато Девелопмент"
Вчера — 6 мая, среда / Москва
Строительство склада площадью 80 тыс. кв. м для Ozon в Пушкино будет осуществлено компанией NK Group.
Вчера — 6 мая, среда / Санкт-Петербург
«Дача Фаберже в Санкт-Петербурге будет продана на аукционе компанией «Дом.РФ»»
Вчера — 6 мая, среда / Москва
Строительство коммерческих объектов в Москве упало на 91% за год
Вчера — 6 мая, среда / Москва
Как в Москве за первый квартал 2026 года построили 5,433 тыс. кв. м офисов, готовых к адаптации.
Вчера — 6 мая, среда / Санкт-Петербург
Продуктовые сети в России увеличили свои площади в торгово-развлекательном центре Петербурга на треть за последние 6 лет.
Вчера — 6 мая, среда / Москва
С начала года в Москве получили разрешение на строительство более 130 недвижимостей.
5 мая, вторник / Москва
"Сбербанк и Альфа-банк подали в суд на производителя обоев «Артекс» с требованием объявить его банкротом"
5 мая, вторник / Красноярский
"Магазин «ВкусВилл» открыл отдел shop-in-shop в Красноярске через партнерство"