Снять офис 289 м² в Москва, Даниловская набережная, 8
ID 8669
Цена
196 415 ₽/мес
Ставка
8 156 ₽ / м² / год
Площадь
289 м²
Класс
C
Этаж
3 из 3
ИФНС
7725
агентство недвижимости
г Москва, наб Даниловская, д 8
На карте
Павелецкая
Павелецкая
Пролетарская
Тульская
Автозаводская
—
14 мин
ЗИЛ
—
17 мин
Описание
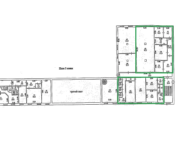
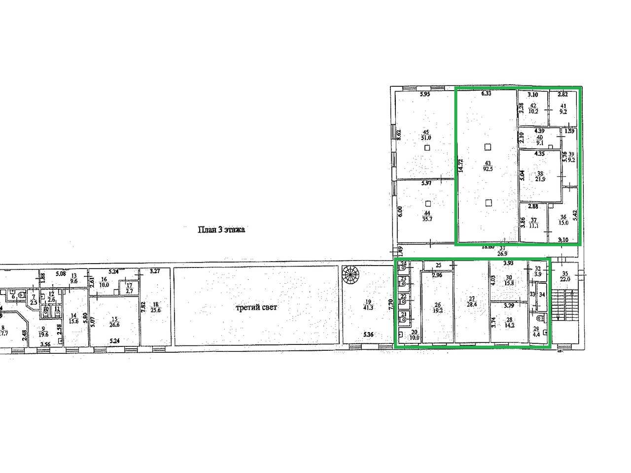
Территория ОАО ПО "Даниловский строительный завод"Предлагается в аренду от собственника офисный блок площадью 289,20 м2 (НЕТ ЦЕНТРАЛЬНОГО ОТОПЛЕНИЯ, НЕТ ЛИФТА, НУЖНО ДЕЛАТЬ РАЗВОДКУ ЭЛЕКТРИЧЕСТВА). Отдельный вход, с/у, несколько кабинетов. Планировка кабинетная, состояние помещения – ТРЕБУЕТСЯ КАПИТАЛЬНЫЙ РЕМОНТ. Назначение помещения– холодный склад. Высота потолков – 3,0м, 3-й этаж. Парковка на территории за дополнительную плату. Въезд на территорию платный (пропускной режим). Интернет- провайдер Сити-телеком. Территория БП находится под круглосуточной охраной и видеонаблюдением. Проведены все коммуникации, контроль доступа. Режим работы круглосуточный.Административное здание расположено в непосредственной близости от метро Тульская (10 минут пешком). Договор аренды на 11 месяцев. Обеспечительный взнос 2-е месячные арендные платы. Юридический адрес НЕ предоставляется. Отдельно оплачиваются коммунальные платежи, клининг. Арендная ставка включает НДС. При необходимости ремонта предоставляются арендные каникулы. Лот № 000006025
Расположение
г Москва, наб Даниловская, д 8
Павелецкая
Павелецкая
Пролетарская
Тульская
Автозаводская
—
14 мин
ЗИЛ
—
17 мин
Технические характеристики
Новость дня
Расширение возможностей для B2B-клиентов: Avito вводит новые услуги для строительства складов
На платформе Авито теперь доступна категория "Коммерческое строительство" в сегменте услуг, предлагающая широкий выбор специализированных работ и возведение объектов "под ключ" для бизнеса, что упрощает поиск подрядчиков и субподрядчиков для коммерческих проектов.
Все новости
30 апреля, четверг / Москва
"Бумеранг Капитал" увеличил свою долю в сети кафе-пекарен "Цех 85" до 50%
30 апреля, четверг / Ставропольский
В Кисловодске начался проект строительства инвестиционного отеля "Реликт"
30 апреля, четверг / Москва
Ресторан «Долина 5165» и магазин Sokolov теперь доступны посетителям ТРЦ Avenue Sever
30 апреля, четверг / Москва
"Новый флагманский магазин под названием «Флаувау» открыл свои двери на Мясницкой улице"
30 апреля, четверг / Москва
"Уровень вакансии на складах в Московском регионе достиг 5,4% из-за увеличения предложений по субаренде"
30 апреля, четверг / Москва
"Прогнозируется незначительный прирост числа туристов в первом квартале 2026 года - всего 2,8%"
30 апреля, четверг / Москва
Компания "Ориентир" планирует вложить до 150 млрд рублей в расширение бизнеса и развитие новых секторов.
30 апреля, четверг / Москва
"Завершено строительство наземной парковки на 400 автомобильных мест в парке «Ривер Парк Коломенское»"
30 апреля, четверг / Москва
Скорось открытия новых магазинов «Лэтуаль» снизится - 150 точек закроются к 2026 году.
30 апреля, четверг / Москва
Смайл-бар сети "Белая точка" теперь доступен посетителям ТЦ "Левел Причальный"
29 апреля, среда / Москва
Московский цех открыл производство 3D-принтеров для металлической печати.
29 апреля, среда / Москва
БМ-банк завершил продажу большей части площадей в ТЦ «Весна» на Новом Арбате.
29 апреля, среда / Москва
Перефразированное название: "Сеть магазинов 'Жизньмарт' возобновляет свою деятельность в Челябинске"
29 апреля, среда / Санкт-Петербург
Сервисный офис «Практик» начал свою работу на Октябрьской набережной в Санкт-Петербурге.
29 апреля, среда / Санкт-Петербург
Строительство складских помещений в Санкт-Петербурге и Ленинградской области увеличилось в 2,5 раза.
29 апреля, среда / Москва
Москва увеличила объем строительства в рамках программы МПТ до 9,5 миллионов квадратных метров
29 апреля, среда / Санкт-Петербург
Соседский центр "ЖИВИ Клуб" открыл свои двери в Новоселье
29 апреля, среда / Москва
"Завершено строительство пятиэтажной наземной парковки в районе Нагатинский Затон"
29 апреля, среда / Санкт-Петербург
Рекордный уровень строительства складов зафиксирован в Санкт-Петербурге и Ленинградской области
29 апреля, среда / Москва
Аренда складов в Москве снизилась на 25%