Снять офис 1517 м² в БЦ Шаболовка
ID 875076
Цена
3 287 700 ₽/мес
Ставка
26 007 ₽ / м² / год
Площадь
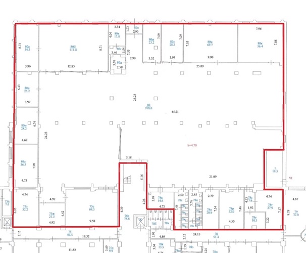
1517 м²
Класс
не указан
Этаж
5 из -
ИФНС
7725
агентство недвижимости
г Москва, ул Шаболовка, д 31Б
На карте
Шаболовская
—
5 мин
Серпуховская
—
12 мин
Октябрьская
—
12 мин
Описание
Аренда офиса 1517,4 м2 м. Шаболовская в ЮАО Описание: Предлагается в аренду офис 1517,4 м2, расположенный на 5 этаже БЦ "Шаболовка". В помещении выполнен качественный дизайнерский ремонт, пол - плитка/ковролин, стены - покраска, собственный санузел. Высокие потолки - 4,5 м. Назначение: под офис. Состояние помещения полностью готово к въезду.Предложение с комиссией от арендатора. Расположение: ЮАО, м. Шаболовская в 5 минутах ходьбы.Удобный заезд на территорию, беспрепятственный доступ к зданию
с основных магистралей ЦАО и ЮАО. Коммуникации: Все инженерные коммуникации центральные, системы противопожарной сигнализации, круглосуточная с видеонаблюдением по периметру здания, приточно-вытяжная вентиляция, системы противопожарной сигнализации.Возможность проведения сети Интернета и связи любым провайдером.
Парковка: Наземная, собственная, на огороженной территории с пропускной системой на 700+ м/м. Стоимость 1 м/м - 12000 р/мес. Дополнительно: Коммунальные платежи оплачиваются отдельно.Развитая инфраструктура: на территории БЦ располагается столовая, кафе, аптека, нотариус. Звоните, ответим на Ваши вопросы и организуем показ в удобное для вас время! Объект №3100-955950.
с основных магистралей ЦАО и ЮАО. Коммуникации: Все инженерные коммуникации центральные, системы противопожарной сигнализации, круглосуточная с видеонаблюдением по периметру здания, приточно-вытяжная вентиляция, системы противопожарной сигнализации.Возможность проведения сети Интернета и связи любым провайдером.
Парковка: Наземная, собственная, на огороженной территории с пропускной системой на 700+ м/м. Стоимость 1 м/м - 12000 р/мес. Дополнительно: Коммунальные платежи оплачиваются отдельно.Развитая инфраструктура: на территории БЦ располагается столовая, кафе, аптека, нотариус. Звоните, ответим на Ваши вопросы и организуем показ в удобное для вас время! Объект №3100-955950.
Расположение
г Москва, ул Шаболовка, д 31Б
Шаболовская
—
5 мин
Серпуховская
—
12 мин
Октябрьская
—
12 мин
Технические характеристики
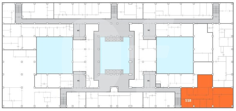
Свободные помещения в БЦ Шаболовка
Новость дня
Все новости
24 апреля, пятница / Москва
"Продажа бывшего офиса ПСБ на Таганке на аукционе"
24 апреля, пятница / Москва
Компания Level Group планирует создать в юго-восточной части Москвы Многофункциональный комплекс с отелем, термальным центром и спортивными объектами
24 апреля, пятница / Москва
"Более миллиона квадратных метров складских помещений доступны для использования в Московском регионе"
24 апреля, пятница / Санкт-Петербург
Инвестиции в петербургскую недвижимость уменьшились на 9% за первый квартал
24 апреля, пятница / Москва
В Бутырском районе планируют построить бизнес-центр с амфитеатром.
24 апреля, пятница / Москва
"ГК «Калашников» приобрела часть акций десяти швейных фабрик"
24 апреля, пятница / Москва
"«Восток Инвестиции» приобрел долю в 20% компании Tasty Coffee"
24 апреля, пятница / Москва
Магазин «М.Косметик» открыл свой первый филиал в Краснодарском крае, специализирующийся на товарах для дома.
24 апреля, пятница / Москва
В Тверском районе Москвы планируется создание дворцово-садового комплекса с водоемом рядом с жилым домом.
24 апреля, пятница / Москва
"Компания 'Росспиртпром' находится в процессе обсуждения возможности приобретения компании Stellar Group"
23 апреля, четверг / Москва
STONE предлагает комплексный ремонт офисных помещений по цене от 85 тыс. руб. за квадратный метр.
23 апреля, четверг / Краснодарский
"Продаётся агрокомбинат «Тепличный» в Краснодаре за 2,8 млрд рублей"
23 апреля, четверг / Москва
Nike увеличил срок действия исключительных прав на свои бренды в России до 2036 года
23 апреля, четверг / Москва
Расширение площади флагманского магазина AMAZING RED в ТРЦ "Авиапарк"
23 апреля, четверг / Москва
"Магазин «Азбука вкуса» теперь работает круглосуточно в ЖК «Остров»"
23 апреля, четверг / Москва
"Появится комьюнити-центр с крышным огородом в районе Прокшино"
23 апреля, четверг / Москва
"Разработчик жилищного проекта "Дом.РФ" продал земельные участки общей площадью 175 гектаров в 24 регионах за первый квартал"
23 апреля, четверг / Москва
"Снижение инвестиций в коммерческую недвижимость России в первом квартале на 64%"
23 апреля, четверг / Татарстан
В Казани будет возведен самый просторный президентский люкс России
23 апреля, четверг / Москва
В галерее «Чкалов» появились уголки с итальянскими и паназиатскими блюдами.