Купить ПСН 1012 м²
ID 875189
Цена
141 000 000 ₽
Ставка
139 328 ₽ / м²
Площадь
1012 м²
Этаж
1 из -
ИФНС
7724
агентство недвижимости
г Москва, ул Харьковская, д 1 к 6
На карте
Красный строитель
—
28 мин
Покровское
—
30 мин
Битца
—
32 мин
Описание
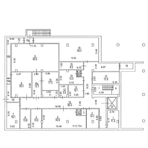
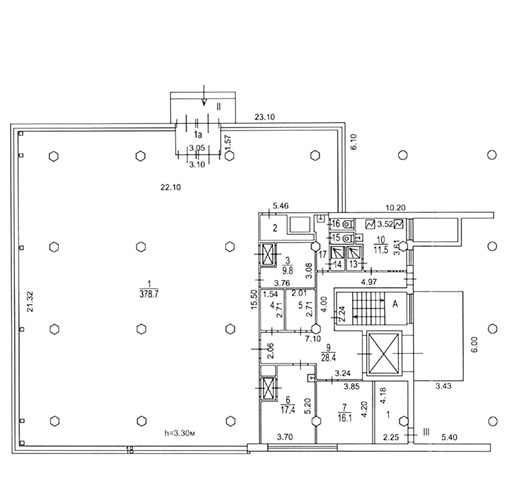
Продажа ОСЗ, ГАБ 1011.7 м2 м. Улица Академика Янгеля в ЮАООписание: Объект представляет собои отдельно стоящее здание, расположенное в раионе Бирюлево Западное (ЮАО), вблизи оживленнои магистрали, в 3-х км от МКАД. Окружение представляет собои густонаселенныи спальныи раион с плотнои жилои застроикои. В непосредственнои близости находится остановка городского транспорта. Расположение определяет высокии уровень автомобильного и пешеходного трафика. Отличная видимость со стороны улицы. Есть возможности для размещения рекламных вывесок. Якорным арендатором является продовольственныи магазин Пятерочка. На территории имеется бесплатная наземная парковка для посетителеи. В пешеи доступности расположены жилые массивы, школы, детские сады, поликлиники, спортивные и досуговые центры. Также рядом находятся жилые комплексы: Анинскии, M-House, Микрораион Загорье. Рядом находится парк культуры и отдыха — парк «Сквер Школьныи».Технические характеристики:
- Площадь объекта - 1 011,7 м2;
- Земельныи участок - 1 059 м2, аренда 49 лет, договор от 2011 г.;
- Назначение - Торговое, нежилое;
- Этажность - 1 этаж + подвал, отдельно стоящее здание;
- Фасад - Витражное остекление, керамогранит;
- Высота потолков - Подвал — 2,6 м, 1-и этаж — 3,1 м;
- Выделенная мощность - 90 кВт, 380\220v;
- Пандус для разгрузки - Есть
- Внутренняя отделка - С ремонтом;
- Телефонная связь - МГТС;
- Паркинг - Наземный.Форма сделки: Продажа объекта недвижимости.Звоните, ответим на Ваши вопросы и организуем показ в удобное для вас время! Объект №3100-956635.
- Площадь объекта - 1 011,7 м2;
- Земельныи участок - 1 059 м2, аренда 49 лет, договор от 2011 г.;
- Назначение - Торговое, нежилое;
- Этажность - 1 этаж + подвал, отдельно стоящее здание;
- Фасад - Витражное остекление, керамогранит;
- Высота потолков - Подвал — 2,6 м, 1-и этаж — 3,1 м;
- Выделенная мощность - 90 кВт, 380\220v;
- Пандус для разгрузки - Есть
- Внутренняя отделка - С ремонтом;
- Телефонная связь - МГТС;
- Паркинг - Наземный.Форма сделки: Продажа объекта недвижимости.Звоните, ответим на Ваши вопросы и организуем показ в удобное для вас время! Объект №3100-956635.
Расположение
г Москва, ул Харьковская, д 1 к 6
Красный строитель
—
28 мин
Покровское
—
30 мин
Битца
—
32 мин
Технические характеристики
Новость дня
Все новости
Сегодня — 30 апреля, четверг / Ставропольский
В Кисловодске начался проект строительства инвестиционного отеля "Реликт"
Сегодня — 30 апреля, четверг / Москва
Ресторан «Долина 5165» и магазин Sokolov теперь доступны посетителям ТРЦ Avenue Sever
Сегодня — 30 апреля, четверг / Москва
"Новый флагманский магазин под названием «Флаувау» открыл свои двери на Мясницкой улице"
Сегодня — 30 апреля, четверг / Москва
"Уровень вакансии на складах в Московском регионе достиг 5,4% из-за увеличения предложений по субаренде"
Сегодня — 30 апреля, четверг / Москва
"Прогнозируется незначительный прирост числа туристов в первом квартале 2026 года - всего 2,8%"
Сегодня — 30 апреля, четверг / Москва
Компания "Ориентир" планирует вложить до 150 млрд рублей в расширение бизнеса и развитие новых секторов.
Сегодня — 30 апреля, четверг / Москва
"Завершено строительство наземной парковки на 400 автомобильных мест в парке «Ривер Парк Коломенское»"
Сегодня — 30 апреля, четверг / Москва
Скорось открытия новых магазинов «Лэтуаль» снизится - 150 точек закроются к 2026 году.
Сегодня — 30 апреля, четверг / Москва
Смайл-бар сети "Белая точка" теперь доступен посетителям ТЦ "Левел Причальный"
Вчера — 29 апреля, среда / Москва
Московский цех открыл производство 3D-принтеров для металлической печати.
Вчера — 29 апреля, среда / Москва
БМ-банк завершил продажу большей части площадей в ТЦ «Весна» на Новом Арбате.
Вчера — 29 апреля, среда / Москва
Перефразированное название: "Сеть магазинов 'Жизньмарт' возобновляет свою деятельность в Челябинске"
Вчера — 29 апреля, среда / Санкт-Петербург
Сервисный офис «Практик» начал свою работу на Октябрьской набережной в Санкт-Петербурге.
Вчера — 29 апреля, среда / Санкт-Петербург
Строительство складских помещений в Санкт-Петербурге и Ленинградской области увеличилось в 2,5 раза.
Вчера — 29 апреля, среда / Москва
Москва увеличила объем строительства в рамках программы МПТ до 9,5 миллионов квадратных метров
Вчера — 29 апреля, среда / Санкт-Петербург
Соседский центр "ЖИВИ Клуб" открыл свои двери в Новоселье
Вчера — 29 апреля, среда / Москва
"Завершено строительство пятиэтажной наземной парковки в районе Нагатинский Затон"
Вчера — 29 апреля, среда / Санкт-Петербург
Рекордный уровень строительства складов зафиксирован в Санкт-Петербурге и Ленинградской области
Вчера — 29 апреля, среда / Москва
Аренда складов в Москве снизилась на 25%
28 апреля, вторник / Москва
"Появление двух новых брендов на российском рынке в начале 2026 года"