Снять ПСН 3763 м²
ID 875210
Цена
6 898 833 ₽/мес
Ставка
22 000 ₽ / м² / год
Площадь
3763 м²
Этаж
1 из -
ИФНС
7720
агентство недвижимости
г Москва, ш Энтузиастов, д 21
На карте
Авиамоторная
—
5 мин
Авиамоторная
—
6 мин
Авиамоторная
—
7 мин
Описание
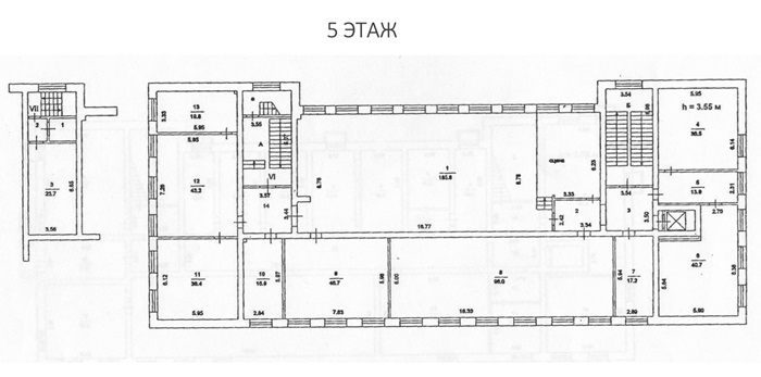
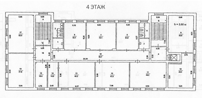
Аренда административного здания 3760 м² м Авиамоторная
Описание: Предлагается в аренду современное административное здание класса В, расположенное в непосредственной близости от шоссе Энтузиастов и двух станций метро: "Авиамоторная" и "Шоссе Энтузиастов". Здание идеально подходит для размещения учебных заведений, медицинских центров и других организаций. Кабинетная планировка, все помещения светлые с окнами. Высота потолков: 3,7 метра. Типовой офисный ремонт за выездом арендатора. Возможна подготовка под нового арендатора силами собственника или через предоставление арендных каникул (обсуждается).
Есть лифты, конференц зал на 200+ человек.
Здание оборудовано широкими коридорами и выполнено в светлых тонах, что создает комфортную рабочую атмосферу. Все помещения после ремонта, светлые, с окнами.
Коммуникации: Центральные коммуникации. Естественная вентиляция.
Парковка: собственная наземная, 25 м/м. Огорожена территория Круглосуточная охрана, круглосуточный доступ. При разделении площадей есть возможность организовать отдельный вход в здание.
Транспортная доступность: Близость к ТТК, МКАД и шоссе Энтузиастов обеспечивает удобный подъезд для транспорта. Пешая доступность до метро и транспортных узлов.
Коммерческие условия: Арендная ставка указана с НДС и эксплуатационными расходами. коммунальные услуги оплачиваются отдельно. При заключении договора аренды оплачивается обеспечительный платеж 1 МАП и авансовый платеж. Срок арендных каникул обсуждается.
Налоговая инспекция №20.
Потенциальное использование: Учебные заведения (школы, колледжи, курсы), медицинские учреждения (поликлиники, диагностические центры), офисное пространство.
#аренда_здания #офис #медцентр #учебный_центр #Москва #Авиамоторная
Объект №3100-956747.
Описание: Предлагается в аренду современное административное здание класса В, расположенное в непосредственной близости от шоссе Энтузиастов и двух станций метро: "Авиамоторная" и "Шоссе Энтузиастов". Здание идеально подходит для размещения учебных заведений, медицинских центров и других организаций. Кабинетная планировка, все помещения светлые с окнами. Высота потолков: 3,7 метра. Типовой офисный ремонт за выездом арендатора. Возможна подготовка под нового арендатора силами собственника или через предоставление арендных каникул (обсуждается).
Есть лифты, конференц зал на 200+ человек.
Здание оборудовано широкими коридорами и выполнено в светлых тонах, что создает комфортную рабочую атмосферу. Все помещения после ремонта, светлые, с окнами.
Коммуникации: Центральные коммуникации. Естественная вентиляция.
Парковка: собственная наземная, 25 м/м. Огорожена территория Круглосуточная охрана, круглосуточный доступ. При разделении площадей есть возможность организовать отдельный вход в здание.
Транспортная доступность: Близость к ТТК, МКАД и шоссе Энтузиастов обеспечивает удобный подъезд для транспорта. Пешая доступность до метро и транспортных узлов.
Коммерческие условия: Арендная ставка указана с НДС и эксплуатационными расходами. коммунальные услуги оплачиваются отдельно. При заключении договора аренды оплачивается обеспечительный платеж 1 МАП и авансовый платеж. Срок арендных каникул обсуждается.
Налоговая инспекция №20.
Потенциальное использование: Учебные заведения (школы, колледжи, курсы), медицинские учреждения (поликлиники, диагностические центры), офисное пространство.
#аренда_здания #офис #медцентр #учебный_центр #Москва #Авиамоторная
Объект №3100-956747.
Расположение
г Москва, ш Энтузиастов, д 21
Авиамоторная
—
5 мин
Авиамоторная
—
6 мин
Авиамоторная
—
7 мин
Технические характеристики
Параметры
Статус владельца объявления
агентство
Отделка
офисная отделка
Новость дня
Все новости
Вчера — 8 мая, пятница / Москва
Усадьбу XVIII–XIX веков в центре Москвы выставили на аукцион «Дом.РФ»
Вчера — 8 мая, пятница / Москва
Бизнес-центр площадью 43,3 тыс. кв. м открыли в окрестностях Филевского парка.
Вчера — 8 мая, пятница / Крым
Гостиница на полуострове Крым выставлена на продажу по цене 117,7 миллиона рублей.
Вчера — 8 мая, пятница / Москва
В Нагатинской пойме откроется фитнес-клуб в гостиничном комплексе
Вчера — 8 мая, пятница / Москва
"Сменился владелец Торгового центра «Гудзон»"
Вчера — 8 мая, пятница / Москва
"Открытие обновленного футбольного комплекса в СберСити"
Вчера — 8 мая, пятница / Нижегородская
В Нижнем Новгороде будет восстановлен исторический здание для коммерческой аренды.
Вчера — 8 мая, пятница / Архангельская
Офисное здание в центре Архангельска выставлено на торги площадкой «Дом.РФ»
Вчера — 8 мая, пятница / Москва
Группа "Гранд НН" из Нижнего Новгорода продает пять компаний за 3,3 миллиарда рублей.
Вчера — 8 мая, пятница / Москва
Москва увеличила площадь жилой недвижимости на более чем 250 тыс. кв. м с начала года по Межевому плану территории.
7 мая, четверг / Москва
"Маркетплейсы занимают всего 9 % рынка онлайн-продаж продуктов питания"
7 мая, четверг / Москва
"ТРК «Зеленопарк» в Подмосковье выставлен на продажу компанией «Сбербанк капитал»"
7 мая, четверг / Москва
X5 Group планирует приобрести часть акций Zotman Pizza.
7 мая, четверг / Москва
"Уровень вакантности в офисном сегменте рынка Москвы достиг 5,3%"
7 мая, четверг / Москва
"В Московском регионе спрос на склады вырос на 70% благодаря онлайн-торговле и логистике"
7 мая, четверг / Москва
"Снижение объема розничных продаж на 0,5% за первый квартал"
7 мая, четверг / Москва
Планируется строительство девятиэтажного делового центра площадью 16 тыс. кв. м в Щукино.
7 мая, четверг / Москва
Развенчивание мифов: Пять исторических домов в районе Арбата пройдут капитальный ремонт.
7 мая, четверг / Москва
Продажа ТЦ "Летний сад" в Москве группой "Эталон" привела к потере в 2,2 млрд рублей.
7 мая, четверг / Москва
Предприятие "Свобода" под угрозой банкротства из-за задолженности в 125 миллионов рублей