Купить торговое помещение 420 м²
ID 876259
Цена
84 744 000 ₽
Ставка
201 771 ₽ / м²
Площадь
420 м²
Этаж
1 из -
ИФНС
7721
агентство недвижимости
г Москва, Лермонтовский пр-кт, д 2 к 1
На карте
Косино
—
4 мин
Косино
—
5 мин
Лермонтовский проспект
—
5 мин
Описание
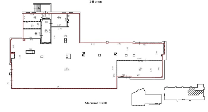
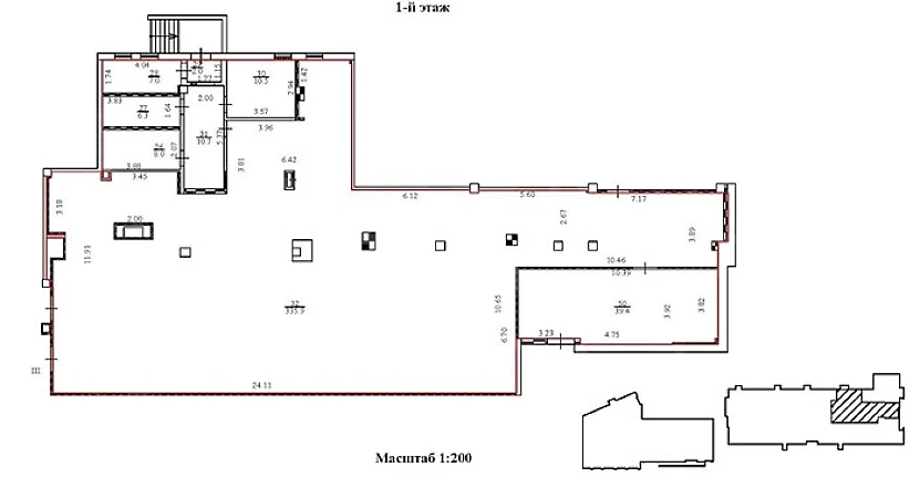
Продажа торговой площади(ГАБ) 419,80 м2 м. Лермонтовский проспект в ВАО Описание: Продается торговая площадь 419,80 м2 на Лермонтовском проспекте, д. 2, стр. 1, расположенная в ТЦ общей площадью 1600 кв.м. Готовый арендный бизнес, арендатор "ЧИЖИК", так же покупатель получает долю в МОП в размере 158,00 м2.
Помещение расположено на первом этаже. Отдельные входные группы: Удобный доступ для клиентов и арендаторов. - Большая парковка: Вдоль главного и бокового фасадов здания. - Теплый дебаркадер: Удобство для разгрузки и погрузки товаров. Удобный заезд с Лермонтовского проспекта на дублер. Близость к метро и станции МЦД-3. Престижное расположение: В центре активного района с высоким пешеходным и автомобильным трафиком. Расположение: - ЮВАО, Выхино-Жулебино - м. Лермонтовский проспект, м. Косино, станция МЦД-3 до 5 минут пешком - Лермонтовский пр-кт, д. 2, к. 1 Коммуникации: Объект оборудован системами пожаротушения, вентиляции, кондиционирования, в наличии несколько мокрых точек.Дополнительно: Звоните, ответим на Ваши вопросы и организуем показ в удобное для вас время! Объект №3100-966492.
Помещение расположено на первом этаже. Отдельные входные группы: Удобный доступ для клиентов и арендаторов. - Большая парковка: Вдоль главного и бокового фасадов здания. - Теплый дебаркадер: Удобство для разгрузки и погрузки товаров. Удобный заезд с Лермонтовского проспекта на дублер. Близость к метро и станции МЦД-3. Престижное расположение: В центре активного района с высоким пешеходным и автомобильным трафиком. Расположение: - ЮВАО, Выхино-Жулебино - м. Лермонтовский проспект, м. Косино, станция МЦД-3 до 5 минут пешком - Лермонтовский пр-кт, д. 2, к. 1 Коммуникации: Объект оборудован системами пожаротушения, вентиляции, кондиционирования, в наличии несколько мокрых точек.Дополнительно: Звоните, ответим на Ваши вопросы и организуем показ в удобное для вас время! Объект №3100-966492.
Расположение
г Москва, Лермонтовский пр-кт, д 2 к 1
Косино
—
4 мин
Косино
—
5 мин
Лермонтовский проспект
—
5 мин
Технические характеристики
Параметры
Статус владельца объявления
агентство
Новость дня
Расширение возможностей для B2B-клиентов: Avito вводит новые услуги для строительства складов
На платформе Авито теперь доступна категория "Коммерческое строительство" в сегменте услуг, предлагающая широкий выбор специализированных работ и возведение объектов "под ключ" для бизнеса, что упрощает поиск подрядчиков и субподрядчиков для коммерческих проектов.
Все новости
Вчера — 6 мая, среда / Москва
Рекордное количество офисных помещений введено в Москве за первый квартал текущего года.
Вчера — 6 мая, среда / Москва
"Сокращение объемов складских помещений в Московском регионе достигло 14% за первый квартал"
Вчера — 6 мая, среда / Москва
Лишь 10% жилых комплексов располагаются вблизи берега Москвы-реки.
Вчера — 6 мая, среда / Москва
Цены на отели в Москве снизились впервые за два года
Вчера — 6 мая, среда / Карачаево-Черкесская
Капиталовложения в размере 5,83 млрд рублей на развитие курорта "Альто" на Домбае от компании "Плато Девелопмент"
Вчера — 6 мая, среда / Москва
Строительство склада площадью 80 тыс. кв. м для Ozon в Пушкино будет осуществлено компанией NK Group.
Вчера — 6 мая, среда / Санкт-Петербург
«Дача Фаберже в Санкт-Петербурге будет продана на аукционе компанией «Дом.РФ»»
Вчера — 6 мая, среда / Москва
Строительство коммерческих объектов в Москве упало на 91% за год
Вчера — 6 мая, среда / Москва
Как в Москве за первый квартал 2026 года построили 5,433 тыс. кв. м офисов, готовых к адаптации.
Вчера — 6 мая, среда / Санкт-Петербург
Продуктовые сети в России увеличили свои площади в торгово-развлекательном центре Петербурга на треть за последние 6 лет.
Вчера — 6 мая, среда / Москва
С начала года в Москве получили разрешение на строительство более 130 недвижимостей.
5 мая, вторник / Москва
"Сбербанк и Альфа-банк подали в суд на производителя обоев «Артекс» с требованием объявить его банкротом"
5 мая, вторник / Красноярский
"Магазин «ВкусВилл» открыл отдел shop-in-shop в Красноярске через партнерство"
5 мая, вторник / Адыгея
Строительство жилого комплекса на территории туристического парка "Дегуакская поляна" в Адыгее начнется архитектурным проектом от "Семьи" объемом 360 тыс. квадратных метров.
5 мая, вторник / Москва
"Прогнозируется достижение рекордной площади 500 тыс. кв. м под light industrial в Московском регионе к 2026 году"
5 мая, вторник / Астраханская
Фитнес-клуб DDX Fitness открылся в Торгово-Развлекательном Центре «Ярмарка» в городе Астрахань.
5 мая, вторник / Москва
"Объем спроса на офисные помещения в Москве сократился вдвое за последний год"
5 мая, вторник / Москва
"Рост стоимости отделки офисов в Москве превышает уровень инфляции"
5 мая, вторник / Москва
В России впервые за 20 лет не было открыто ни одной новой гостиницы в первом квартале
5 мая, вторник / Москва
Спрос на услуги аренды апартаментов в Санкт-Петербурге упал на четверть.