Снять ПСН 1525 м² в тер МКАД
ID 878134
Цена
1 906 250 ₽/мес
Ставка
15 000 ₽ / м² / год
Площадь
1525 м²
Этаж
1 из -
ИФНС
7751
агентство недвижимости
г Москва, Московский п, км МКАД 47-й
На карте
Описание
✨ Складской актив для вашего бизнеса! Отапливаемый комплекс 1525 м² с рабочих удобствами и доступом у м. Говорово 🚚
Описание:
Масштабное складское пространство на 2 уровнях — идеальное решение для логистики, хранения или комплексного использования!
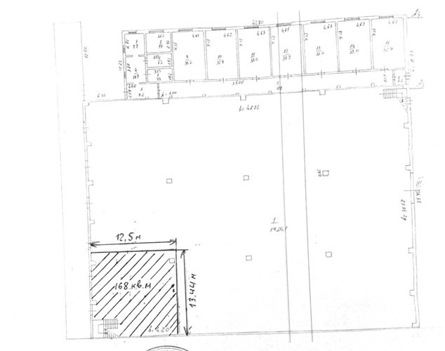
- 1-й этаж: Зона пикинга 168 м² — эффективная организация сортировки и отгрузки.
- 2-й этаж: 1357 м² под складирование товаров, оборудования или любые бизнес-нужды.
- Высота потолков 4-6 м — позволяет устанавливать стеллажи до «самых облаков»!
- Грузовой подъемник грузоподъемностью 1 тонна — быстрая транспортировка даже объемных грузов.
- Наливные полы, погрузочные ворота и рампа.
- 2 отапливаемые комнаты по 15 м².
Безопасность? У нас есть: ⚙️ пожарная сигнализация, 🎥 видеонаблюдение, 🛡️ круглосуточная охрана. Доступ к объекту открыт 24/7!
Расположение:
📍 В районе метро «Говорово» (внешний радиус МКАД, 47 км). Прямые выезды на ТТК и МКАД — доставка «на скорости света»!
Коммуникации:
💡 Электричество: мощность 800 кВт — готов к интенсивной эксплуатации.
🔥 Отопление: круглосуточная подача, чтобы не тратить деньги на дополнительные обогреватели.
💧 Вода, дренаж — все центральные сети работают без перебоев.
Парковка:
🅿️ Собственная асфальтированная площадка перед зданием — место для 10+ грузовиков.
⛔ Грузовой подъезд: свободный доступ и нет очередей у рампы.
Дополнительно:
💰 Цена: включает НДС 5%, коммунальные платежи и парковку.
Фишки для экономии времени:
✅ Удобное зонирование пространства.
✅ Современные системы безопасности.
✅ Готов к старту 24/7 — без бета-тестов и вводных курсов.
🚀 Свяжитесь с нами и заберите локацию раньше конкурентов!
Пишите, чтобы уточнить детали или забронировать дату просмотра. Объект №3100-975489.
Описание:
Масштабное складское пространство на 2 уровнях — идеальное решение для логистики, хранения или комплексного использования!
- 1-й этаж: Зона пикинга 168 м² — эффективная организация сортировки и отгрузки.
- 2-й этаж: 1357 м² под складирование товаров, оборудования или любые бизнес-нужды.
- Высота потолков 4-6 м — позволяет устанавливать стеллажи до «самых облаков»!
- Грузовой подъемник грузоподъемностью 1 тонна — быстрая транспортировка даже объемных грузов.
- Наливные полы, погрузочные ворота и рампа.
- 2 отапливаемые комнаты по 15 м².
Безопасность? У нас есть: ⚙️ пожарная сигнализация, 🎥 видеонаблюдение, 🛡️ круглосуточная охрана. Доступ к объекту открыт 24/7!
Расположение:
📍 В районе метро «Говорово» (внешний радиус МКАД, 47 км). Прямые выезды на ТТК и МКАД — доставка «на скорости света»!
Коммуникации:
💡 Электричество: мощность 800 кВт — готов к интенсивной эксплуатации.
🔥 Отопление: круглосуточная подача, чтобы не тратить деньги на дополнительные обогреватели.
💧 Вода, дренаж — все центральные сети работают без перебоев.
Парковка:
🅿️ Собственная асфальтированная площадка перед зданием — место для 10+ грузовиков.
⛔ Грузовой подъезд: свободный доступ и нет очередей у рампы.
Дополнительно:
💰 Цена: включает НДС 5%, коммунальные платежи и парковку.
Фишки для экономии времени:
✅ Удобное зонирование пространства.
✅ Современные системы безопасности.
✅ Готов к старту 24/7 — без бета-тестов и вводных курсов.
🚀 Свяжитесь с нами и заберите локацию раньше конкурентов!
Пишите, чтобы уточнить детали или забронировать дату просмотра. Объект №3100-975489.
Расположение
г Москва, Московский п, км МКАД 47-й
Технические характеристики
Новость дня
Все новости
Вчера — 8 мая, пятница / Москва
Усадьбу XVIII–XIX веков в центре Москвы выставили на аукцион «Дом.РФ»
Вчера — 8 мая, пятница / Москва
Бизнес-центр площадью 43,3 тыс. кв. м открыли в окрестностях Филевского парка.
Вчера — 8 мая, пятница / Крым
Гостиница на полуострове Крым выставлена на продажу по цене 117,7 миллиона рублей.
Вчера — 8 мая, пятница / Москва
В Нагатинской пойме откроется фитнес-клуб в гостиничном комплексе
Вчера — 8 мая, пятница / Москва
"Сменился владелец Торгового центра «Гудзон»"
Вчера — 8 мая, пятница / Москва
"Открытие обновленного футбольного комплекса в СберСити"
Вчера — 8 мая, пятница / Нижегородская
В Нижнем Новгороде будет восстановлен исторический здание для коммерческой аренды.
Вчера — 8 мая, пятница / Архангельская
Офисное здание в центре Архангельска выставлено на торги площадкой «Дом.РФ»
Вчера — 8 мая, пятница / Москва
Группа "Гранд НН" из Нижнего Новгорода продает пять компаний за 3,3 миллиарда рублей.
Вчера — 8 мая, пятница / Москва
Москва увеличила площадь жилой недвижимости на более чем 250 тыс. кв. м с начала года по Межевому плану территории.
7 мая, четверг / Москва
"Маркетплейсы занимают всего 9 % рынка онлайн-продаж продуктов питания"
7 мая, четверг / Москва
"ТРК «Зеленопарк» в Подмосковье выставлен на продажу компанией «Сбербанк капитал»"
7 мая, четверг / Москва
X5 Group планирует приобрести часть акций Zotman Pizza.
7 мая, четверг / Москва
"Уровень вакантности в офисном сегменте рынка Москвы достиг 5,3%"
7 мая, четверг / Москва
"В Московском регионе спрос на склады вырос на 70% благодаря онлайн-торговле и логистике"
7 мая, четверг / Москва
"Снижение объема розничных продаж на 0,5% за первый квартал"
7 мая, четверг / Москва
Планируется строительство девятиэтажного делового центра площадью 16 тыс. кв. м в Щукино.
7 мая, четверг / Москва
Развенчивание мифов: Пять исторических домов в районе Арбата пройдут капитальный ремонт.
7 мая, четверг / Москва
Продажа ТЦ "Летний сад" в Москве группой "Эталон" привела к потере в 2,2 млрд рублей.
7 мая, четверг / Москва
Предприятие "Свобода" под угрозой банкротства из-за задолженности в 125 миллионов рублей