Снять торговое помещение 72 м² в ЖК Скандинавия
Описание
Предложение напрямую от застройщика!
ХАРАКТЕРИСТИКИ ПОМЕЩЕНИЯ
Стоимость аренды в мес.: 135 000 рублей
Стоимость аренды за м2/мес.: 1 870 рублей
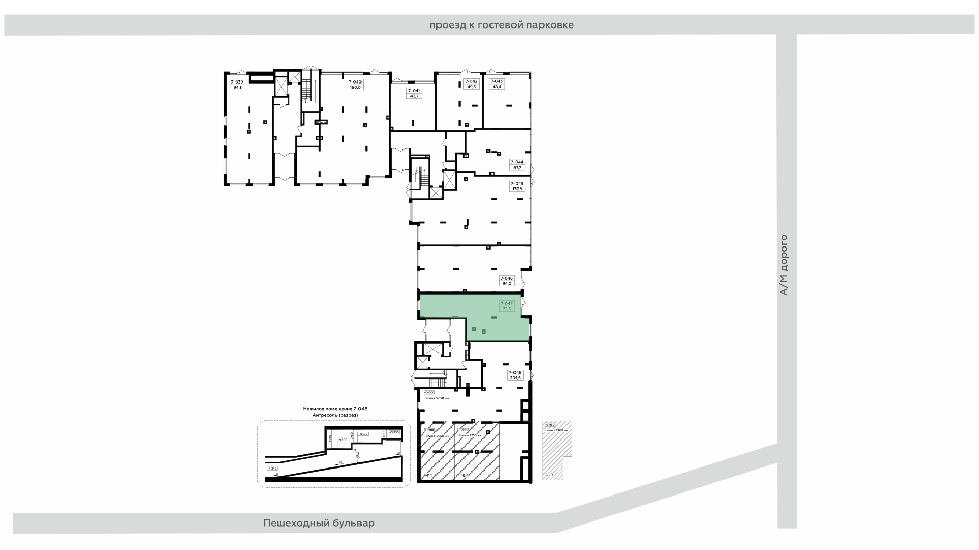
Площадь: 72,2 м2
Назначение: свободное назначение
Отделка: нет
Потолки: 5,56 м
Разрешенная мощность: 14,5 кВт
Система вентиляции: Ø100, 200х100
Количество входов: 1
Витринное остекление: нет
ЖК «Скандинавия» - Более 60 000 человек численность населения. Первая и вторая очереди проекта заселены в 2019 году.
ЖК «Скандинавия» строится на границе Бутовского лесопарка в экологически благоприятной юго-западной части Москвы — для тех, кто выбирает для себя и своей семьи комфорт мегаполиса, но жить предпочитает в окружении природы. Главная идея — баланс жилья и сервисов, транспортной доступности и комфортной удалённости от трасс, шумных зон для активных видов отдыха и уютных зелёных островков для созерцания и релаксации. 5 детских садов и 1 школа открыты. Квартиры с планировки для семей. Бутовский лесопарк 1610 га. 6 детских садов и 3 школы проектируются и строятся. 100 га городских и парковых пространств.
Арендуя помещение, вы можете воспользоваться интерактивным подбором помещений, выбрать помещение с акцептом франшизы. Мы создали платформу «А101 Бизнес» с учётом потребностей владельцев бизнесов, инвесторов и сформировали предложения для каждой группы покупателей, арендодателей и арендаторов.
ЖИЛОЙ КОМПЛЕКС РАСПОЛОЖЕН
Ст. метро «Новомосковская» (2023г.) 700м, ст. метро «Коммунарка» 2 км, ст. метро «Тёплый Стан» 7 км, ст. метро «Бунинская аллея» 5,5 км, МКАД 6,5 км, Калужское шоссе 2,9 км.
ХАРАКТЕРИСТИКИ ПОМЕЩЕНИЯ
Стоимость аренды в мес.: 135 000 рублей
Стоимость аренды за м2/мес.: 1 870 рублей
Площадь: 72,2 м2
Назначение: свободное назначение
Отделка: нет
Потолки: 5,56 м
Разрешенная мощность: 14,5 кВт
Система вентиляции: Ø100, 200х100
Количество входов: 1
Витринное остекление: нет
ЖК «Скандинавия» - Более 60 000 человек численность населения. Первая и вторая очереди проекта заселены в 2019 году.
ЖК «Скандинавия» строится на границе Бутовского лесопарка в экологически благоприятной юго-западной части Москвы — для тех, кто выбирает для себя и своей семьи комфорт мегаполиса, но жить предпочитает в окружении природы. Главная идея — баланс жилья и сервисов, транспортной доступности и комфортной удалённости от трасс, шумных зон для активных видов отдыха и уютных зелёных островков для созерцания и релаксации. 5 детских садов и 1 школа открыты. Квартиры с планировки для семей. Бутовский лесопарк 1610 га. 6 детских садов и 3 школы проектируются и строятся. 100 га городских и парковых пространств.
Арендуя помещение, вы можете воспользоваться интерактивным подбором помещений, выбрать помещение с акцептом франшизы. Мы создали платформу «А101 Бизнес» с учётом потребностей владельцев бизнесов, инвесторов и сформировали предложения для каждой группы покупателей, арендодателей и арендаторов.
ЖИЛОЙ КОМПЛЕКС РАСПОЛОЖЕН
Ст. метро «Новомосковская» (2023г.) 700м, ст. метро «Коммунарка» 2 км, ст. метро «Тёплый Стан» 7 км, ст. метро «Бунинская аллея» 5,5 км, МКАД 6,5 км, Калужское шоссе 2,9 км.
Расположение
г Москва, Сосенское п, б-р Скандинавский, д 19
Улица Горчакова
—
25 мин
Бунинская аллея
—
25 мин
Потапово
—
14 мин
Технические характеристики
Свободные помещения в ЖК Скандинавия
Новость дня
Все новости
Сегодня — 28 апреля, вторник / Москва
27-этажный бизнес-центр класса А в Коммунарке завершает процесс утверждения своего архитектурного дизайна
Сегодня — 28 апреля, вторник / Москва
Перефразированное название статьи: "Открытие первого флагманского магазина Lumique в «Авиапарке»"
Сегодня — 28 апреля, вторник / Москва
"Подольская фабрика офсетной печати выставляет на приватизацию 49% своих акций"
Сегодня — 28 апреля, вторник / Москва
Самострои в ЮВАО: площадь почти 4 тыс. кв. м за первый квартал
Сегодня — 28 апреля, вторник / Москва
Иск на 11,7 млрд рублей подан банком «Санкт-Петербург» к структуре «Гранели»
Сегодня — 28 апреля, вторник / Москва
"«Яндекс Фабрика» запускает цепь офлайн-магазинов в Москве"
Сегодня — 28 апреля, вторник / Москва
Детская сеть магазинов "Кораблик" столкнулась с финансовыми трудностями
Сегодня — 28 апреля, вторник / Москва
Снижение загрузки премиум отелей Москвы в первом квартале до 69,4%
Сегодня — 28 апреля, вторник / Крым
"Продается комплекс солнечных электростанций на полуострове Крым"
Вчера — 27 апреля, понедельник / Москва
Гастропространство «НеДетский» на 630 посадочных мест открылось в Центральном детском магазине на Лубянке.
Вчера — 27 апреля, понедельник / Москва
"FORMA завершает продажу всех офисных помещений в бизнес-центре «ЛЕЙКС»"
Вчера — 27 апреля, понедельник / Москва
"Прогноз: восстановление офисного рынка Москвы ожидается к 2028 году"
Вчера — 27 апреля, понедельник / Москва
Проект строительства промышленного парка с двумя зданиями на востоке Москвы.
Вчера — 27 апреля, понедельник / Москва
Бизнес-центр площадью 22,7 тыс. кв. м открылся в Нагатинской пойме.
Вчера — 27 апреля, понедельник / Самарская
Недостроенный птицеводческий комплекс "Евробиотех" в Самарской области ищет покупателя
Вчера — 27 апреля, понедельник / Москва
"Планируется строительство восьмиэтажной автостоянки с коммерческими помещениями на 465 машиномест в Новой Москве"
Вчера — 27 апреля, понедельник / Москва
"«Монарх» приобрел участок площадью 1,36 га на территории бывшего Карачаровского механического завода"
Вчера — 27 апреля, понедельник / Москва
"Производство растительного молока от Сварщицы Екатерины"
Вчера — 27 апреля, понедельник / Москва
"Будущее магазинов Gate 31 под угрозой из-за финансовых трудностей"
Вчера — 27 апреля, понедельник / Воронежская
Название статьи: "Открытие клубов Spirit Fitness площадью не менее 1,6 тыс. кв. м в Воронеже и Липецке"