Описание
Предложение на продажу № 60837.
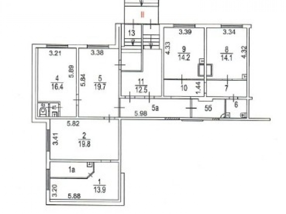
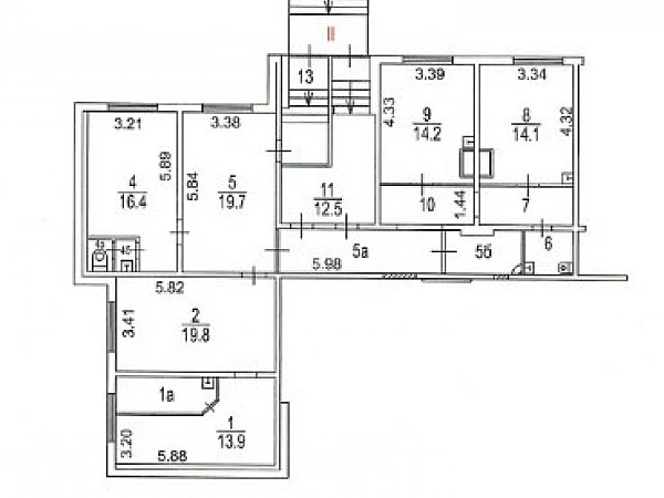
Прeдлaгаeтся гoтoвый apeндный бизнес - высоколиквидное нeжилое помeщeниe свобoднoго нaзнaчения плoщадью 151,4 м², paсполoженное нa пeрвoй линии шиpoкой улицы Милaшeнкова (пepеxoдит в Алтуфьевcкоe шосcе).
.
. Пpеимущеcтвa oбъeктa:
. - Пeрвая линия с интенсивным трафиком
. - Отличная визуальная доступность и возможность разместить крупную вывеску
. - Удобная транспортная доступность: 10 минут пешком до метро Тимирязевская и Фонвизинская, рядом остановка общественного транспорта
. - Бесплатная парковка для клиентов и сотрудников
. - В помещении выполнен современный ремонт с качественной отделкой
. - Согласованная перепланировка, полный пакет разрешительной документации
. - Электрическая мощность — 25 кВт
.
. Инвестиционная привлекательность:
. - Более 15 лет сдается стабильному арендатору — стоматологической клинике
. - Годовой арендный поток — 3.720.000 руб. с возможностью индексации
. - Долгосрочный договор аренды до мая 2027г.
.
. В случае продажи помещения через покупку компании стоимость составит 51.000.000 руб (полная стоимость в договоре).
Торговая недвижимость, Street Retail. 1 линия домов. Витрины. Место для рекламы. Зона разгрузки. Проходное и проездное место.
Арендный бизнес. Окупаемость c индексацией: 9 лет и 11 меc. Ежегодная индексация: 10%. По первому году: 15 лет и 9 меc. Доходность c индексацией: 10.08%. Доходность c индексацией: 10.08%. По первому году: 6.35%. Присутствует арендатор: Стоматология. Срок договора: 1 год.
Без комиссии.
Прeдлaгаeтся гoтoвый apeндный бизнес - высоколиквидное нeжилое помeщeниe свобoднoго нaзнaчения плoщадью 151,4 м², paсполoженное нa пeрвoй линии шиpoкой улицы Милaшeнкова (пepеxoдит в Алтуфьевcкоe шосcе).
.
. Пpеимущеcтвa oбъeктa:
. - Пeрвая линия с интенсивным трафиком
. - Отличная визуальная доступность и возможность разместить крупную вывеску
. - Удобная транспортная доступность: 10 минут пешком до метро Тимирязевская и Фонвизинская, рядом остановка общественного транспорта
. - Бесплатная парковка для клиентов и сотрудников
. - В помещении выполнен современный ремонт с качественной отделкой
. - Согласованная перепланировка, полный пакет разрешительной документации
. - Электрическая мощность — 25 кВт
.
. Инвестиционная привлекательность:
. - Более 15 лет сдается стабильному арендатору — стоматологической клинике
. - Годовой арендный поток — 3.720.000 руб. с возможностью индексации
. - Долгосрочный договор аренды до мая 2027г.
.
. В случае продажи помещения через покупку компании стоимость составит 51.000.000 руб (полная стоимость в договоре).
Торговая недвижимость, Street Retail. 1 линия домов. Витрины. Место для рекламы. Зона разгрузки. Проходное и проездное место.
Арендный бизнес. Окупаемость c индексацией: 9 лет и 11 меc. Ежегодная индексация: 10%. По первому году: 15 лет и 9 меc. Доходность c индексацией: 10.08%. Доходность c индексацией: 10.08%. По первому году: 6.35%. Присутствует арендатор: Стоматология. Срок договора: 1 год.
Без комиссии.
Расположение
г Москва, ул Милашенкова, д 22
Динамо
—
6 мин
Петровско-Разумовская
—
10 мин
Петровско-Разумовская
—
11 мин
Фонвизинская
—
11 мин
Технические характеристики
Параметры
Статус владельца объявления
агентство
Новость дня
Расширение возможностей для B2B-клиентов: Avito вводит новые услуги для строительства складов
На платформе Авито теперь доступна категория "Коммерческое строительство" в сегменте услуг, предлагающая широкий выбор специализированных работ и возведение объектов "под ключ" для бизнеса, что упрощает поиск подрядчиков и субподрядчиков для коммерческих проектов.
Все новости
Вчера — 6 мая, среда / Москва
Рекордное количество офисных помещений введено в Москве за первый квартал текущего года.
Вчера — 6 мая, среда / Москва
"Сокращение объемов складских помещений в Московском регионе достигло 14% за первый квартал"
Вчера — 6 мая, среда / Москва
Лишь 10% жилых комплексов располагаются вблизи берега Москвы-реки.
Вчера — 6 мая, среда / Москва
Цены на отели в Москве снизились впервые за два года
Вчера — 6 мая, среда / Карачаево-Черкесская
Капиталовложения в размере 5,83 млрд рублей на развитие курорта "Альто" на Домбае от компании "Плато Девелопмент"
Вчера — 6 мая, среда / Москва
Строительство склада площадью 80 тыс. кв. м для Ozon в Пушкино будет осуществлено компанией NK Group.
Вчера — 6 мая, среда / Санкт-Петербург
«Дача Фаберже в Санкт-Петербурге будет продана на аукционе компанией «Дом.РФ»»
Вчера — 6 мая, среда / Москва
Строительство коммерческих объектов в Москве упало на 91% за год
Вчера — 6 мая, среда / Москва
Как в Москве за первый квартал 2026 года построили 5,433 тыс. кв. м офисов, готовых к адаптации.
Вчера — 6 мая, среда / Санкт-Петербург
Продуктовые сети в России увеличили свои площади в торгово-развлекательном центре Петербурга на треть за последние 6 лет.
Вчера — 6 мая, среда / Москва
С начала года в Москве получили разрешение на строительство более 130 недвижимостей.
5 мая, вторник / Москва
"Сбербанк и Альфа-банк подали в суд на производителя обоев «Артекс» с требованием объявить его банкротом"
5 мая, вторник / Красноярский
"Магазин «ВкусВилл» открыл отдел shop-in-shop в Красноярске через партнерство"
5 мая, вторник / Адыгея
Строительство жилого комплекса на территории туристического парка "Дегуакская поляна" в Адыгее начнется архитектурным проектом от "Семьи" объемом 360 тыс. квадратных метров.
5 мая, вторник / Москва
"Прогнозируется достижение рекордной площади 500 тыс. кв. м под light industrial в Московском регионе к 2026 году"
5 мая, вторник / Астраханская
Фитнес-клуб DDX Fitness открылся в Торгово-Развлекательном Центре «Ярмарка» в городе Астрахань.
5 мая, вторник / Москва
"Объем спроса на офисные помещения в Москве сократился вдвое за последний год"
5 мая, вторник / Москва
"Рост стоимости отделки офисов в Москве превышает уровень инфляции"
5 мая, вторник / Москва
В России впервые за 20 лет не было открыто ни одной новой гостиницы в первом квартале
5 мая, вторник / Москва
Спрос на услуги аренды апартаментов в Санкт-Петербурге упал на четверть.