Описание
Предложение на продажу № 46791.
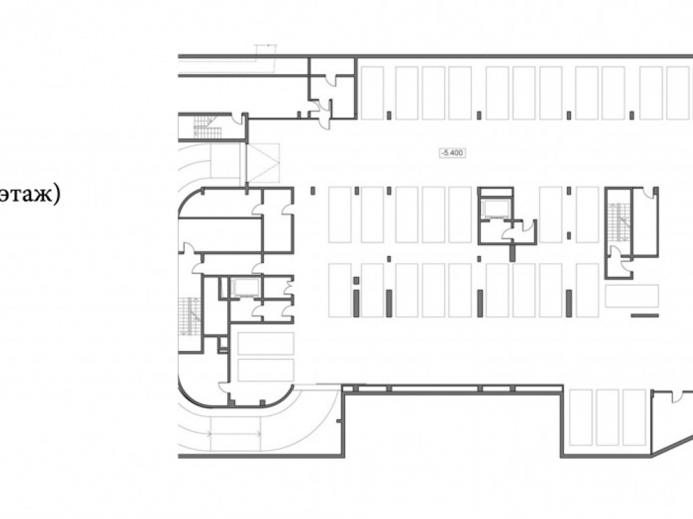
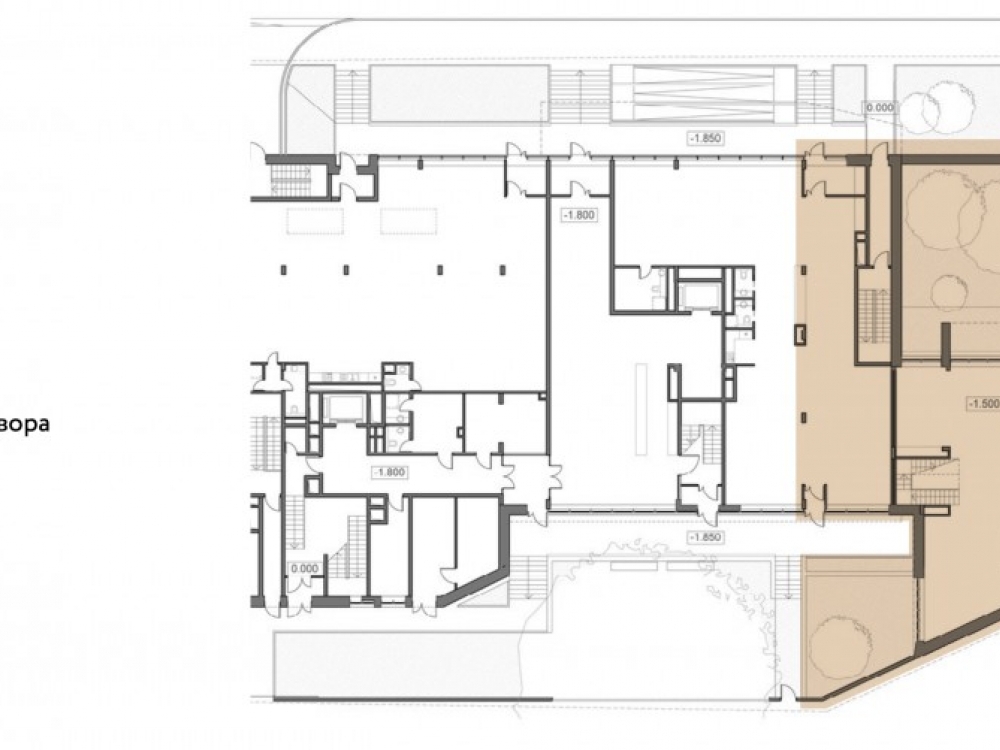
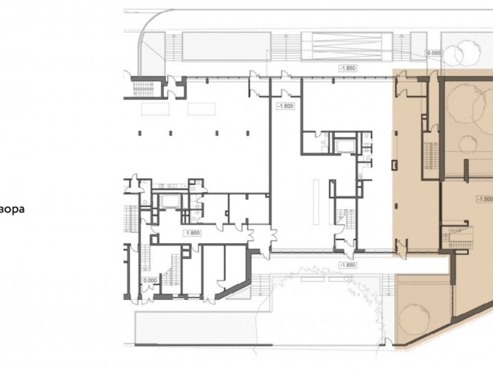
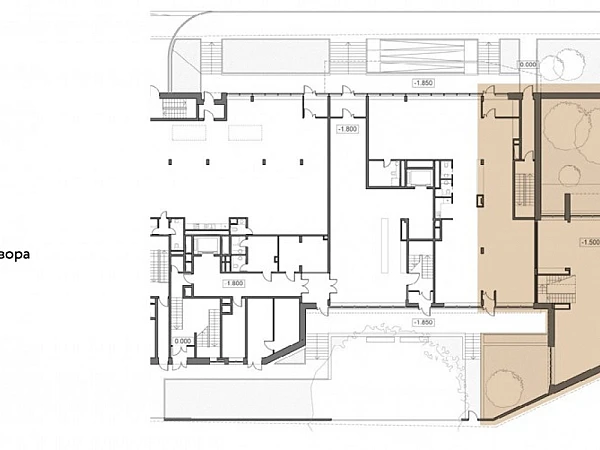
Предлагается в продажу помещение по адресу: " улица Бурденко, 3", на 1 этаже Жилого комплекса, расположен в одном из самых престижных районов Москвы - «Хамовники» на улице Бурденко. Закрытый внутренний двор с террасой – 200 м2;
.
. Единый лот, объединяющий коммерческие и жилые помещения с частным двором и паркингом в знаковом объекте от архитектурного бюро Сергея Скуратова.
.
. Детали лота:
. - Коммерческая недвижимость (1-2 этаж): 437,7 м²
. - Жилая недвижимость (3 этаж + балкон): 116,1 м²
. - Закрытый внутренний двор с террасой: 200+ м²
. - Машиноместа в подземном паркинге: 4 шт. (от 16,7 до 21,6 м²)
. - 3 отдельных входа на виллу: главный с улицы, общий через подъезд жк и лифт.
. - Индивидуальный лифт с прямым доступом в паркинг.
. - Большие витринные окна
. - Хороший рекламный потенциал
. - Выделенная электромощность: 116 кВт с опцией увеличения
.
. Ключевые преимущества объекта:
. - Архитектура и статус: Уникальный проект авторства Сергея Скуратова. Фасады из клинкерного кирпича премиального качества.
.
. Инженерия: Центральное кондиционирование, вентиляция, система водоподготовки, диспетчеризация. Уровень комфорта соответствует высшим стандартам.
.
. Локация: Хамовники. 1 минута пешком до Садового кольца, 10 минут до метро «Парк Культуры». Окружение историческими усадьбами и скверами.
.
. Уникальность лота: Готовое решение для совмещения бизнеса и проживания либо для создания семейного поместья в центре города.
Торговая недвижимость, Street Retail. 1 линия домов. Витрины. Место для рекламы. Проходное и проездное место.
Без комиссии.
Предлагается в продажу помещение по адресу: " улица Бурденко, 3", на 1 этаже Жилого комплекса, расположен в одном из самых престижных районов Москвы - «Хамовники» на улице Бурденко. Закрытый внутренний двор с террасой – 200 м2;
.
. Единый лот, объединяющий коммерческие и жилые помещения с частным двором и паркингом в знаковом объекте от архитектурного бюро Сергея Скуратова.
.
. Детали лота:
. - Коммерческая недвижимость (1-2 этаж): 437,7 м²
. - Жилая недвижимость (3 этаж + балкон): 116,1 м²
. - Закрытый внутренний двор с террасой: 200+ м²
. - Машиноместа в подземном паркинге: 4 шт. (от 16,7 до 21,6 м²)
. - 3 отдельных входа на виллу: главный с улицы, общий через подъезд жк и лифт.
. - Индивидуальный лифт с прямым доступом в паркинг.
. - Большие витринные окна
. - Хороший рекламный потенциал
. - Выделенная электромощность: 116 кВт с опцией увеличения
.
. Ключевые преимущества объекта:
. - Архитектура и статус: Уникальный проект авторства Сергея Скуратова. Фасады из клинкерного кирпича премиального качества.
.
. Инженерия: Центральное кондиционирование, вентиляция, система водоподготовки, диспетчеризация. Уровень комфорта соответствует высшим стандартам.
.
. Локация: Хамовники. 1 минута пешком до Садового кольца, 10 минут до метро «Парк Культуры». Окружение историческими усадьбами и скверами.
.
. Уникальность лота: Готовое решение для совмещения бизнеса и проживания либо для создания семейного поместья в центре города.
Торговая недвижимость, Street Retail. 1 линия домов. Витрины. Место для рекламы. Проходное и проездное место.
Без комиссии.
Расположение
г Москва, ул Бурденко, д 3
Парк культуры
—
11 мин
Парк культуры
—
11 мин
Киевская
—
12 мин
Технические характеристики
Параметры
Статус владельца объявления
агентство
Новость дня
Расширение возможностей для B2B-клиентов: Avito вводит новые услуги для строительства складов
На платформе Авито теперь доступна категория "Коммерческое строительство" в сегменте услуг, предлагающая широкий выбор специализированных работ и возведение объектов "под ключ" для бизнеса, что упрощает поиск подрядчиков и субподрядчиков для коммерческих проектов.
Все новости
Вчера — 30 апреля, четверг / Москва
"Бумеранг Капитал" увеличил свою долю в сети кафе-пекарен "Цех 85" до 50%
Вчера — 30 апреля, четверг / Ставропольский
В Кисловодске начался проект строительства инвестиционного отеля "Реликт"
Вчера — 30 апреля, четверг / Москва
Ресторан «Долина 5165» и магазин Sokolov теперь доступны посетителям ТРЦ Avenue Sever
Вчера — 30 апреля, четверг / Москва
"Новый флагманский магазин под названием «Флаувау» открыл свои двери на Мясницкой улице"
Вчера — 30 апреля, четверг / Москва
"Уровень вакансии на складах в Московском регионе достиг 5,4% из-за увеличения предложений по субаренде"
Вчера — 30 апреля, четверг / Москва
"Прогнозируется незначительный прирост числа туристов в первом квартале 2026 года - всего 2,8%"
Вчера — 30 апреля, четверг / Москва
Компания "Ориентир" планирует вложить до 150 млрд рублей в расширение бизнеса и развитие новых секторов.
Вчера — 30 апреля, четверг / Москва
"Завершено строительство наземной парковки на 400 автомобильных мест в парке «Ривер Парк Коломенское»"
Вчера — 30 апреля, четверг / Москва
Скорось открытия новых магазинов «Лэтуаль» снизится - 150 точек закроются к 2026 году.
Вчера — 30 апреля, четверг / Москва
Смайл-бар сети "Белая точка" теперь доступен посетителям ТЦ "Левел Причальный"
29 апреля, среда / Москва
Московский цех открыл производство 3D-принтеров для металлической печати.
29 апреля, среда / Москва
БМ-банк завершил продажу большей части площадей в ТЦ «Весна» на Новом Арбате.
29 апреля, среда / Москва
Перефразированное название: "Сеть магазинов 'Жизньмарт' возобновляет свою деятельность в Челябинске"
29 апреля, среда / Санкт-Петербург
Сервисный офис «Практик» начал свою работу на Октябрьской набережной в Санкт-Петербурге.
29 апреля, среда / Санкт-Петербург
Строительство складских помещений в Санкт-Петербурге и Ленинградской области увеличилось в 2,5 раза.
29 апреля, среда / Москва
Москва увеличила объем строительства в рамках программы МПТ до 9,5 миллионов квадратных метров
29 апреля, среда / Санкт-Петербург
Соседский центр "ЖИВИ Клуб" открыл свои двери в Новоселье
29 апреля, среда / Москва
"Завершено строительство пятиэтажной наземной парковки в районе Нагатинский Затон"
29 апреля, среда / Санкт-Петербург
Рекордный уровень строительства складов зафиксирован в Санкт-Петербурге и Ленинградской области
29 апреля, среда / Москва
Аренда складов в Москве снизилась на 25%