Купить ПСН 2564 м²
ID 981074
Цена
590 000 000 ₽
Ставка
230 109 ₽ / м²
Площадь
2564 м²
Этаж
1 из -
ИФНС
7725
агентство недвижимости
г Москва, пер 1-й Кожевнический, д 8
На карте
Павелецкая
—
10 мин
Павелецкая
—
10 мин
Крестьянская застава
—
16 мин
Описание
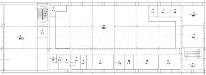
Лот №927218 Продается особняк общей площадью 2563,1 м², представляющий собой отличную возможность для инвестиций или размещения головного офиса. Объект находится в шаговой доступности от станции метро «Павелецкая» в престижном районе с развитой инфраструктурой. Рядом расположены банки, представительства крупных компаний, государственные учреждения, а также кафе, рестораны и магазины.
Здание предлагается к продаже как единый имущественный комплекс и полностью заселено надежными арендаторами, что обеспечивает стабильный доход. В 2004 году была проведена комплексная реконструкция с полной заменой перекрытий. Территория особняка огорожена и включает парковку на 25 автомобилей.
Объект оснащен современными инженерными системами, центральным кондиционированием и приточно-вытяжной вентиляцией. Внутренняя планировка смешанного типа с качественной отделкой под офисные помещения и медицинский центр. Имеется просторная зона ресепшн, оборудованная системой контроля доступа, а также организовано круглосуточное видеонаблюдение и охрана. Высота потолков составляет до 3,9 метра.
Земельный участок площадью 1727 м² передан в долгосрочную аренду у города Москвы на срок до 2033 года.
ВРИ земли - Оказание социальной помощи населению (3.2.2); Оказание услуг связи (3.2.3); Бытовое обслуживание (3.3); Здравоохранение (3.4); Образование и просвещение (3.5); Культурное развитие (3.6); Общественное управление (3.8); Обеспечение научной деятельности (3.9); Амбулаторное ветеринарное обслуживание (3.10.1); Деловое управление (4.1); Магазины (4.4); Банковская и страховая деятельность (4.5); Общественное питание (4.6); Развлекательные мероприятия (4.8.1); Служебные гаражи (4.9)
Чтобы получить ПОДРОБНУЮ ПРЕЗЕНТАЦИЮ С ПЛАНИРОВКОЙ И ФОТОГРАФИЯМИ на этот объект, звоните. Высылаем в течение 15 минут по запросу!
☎ Конт. лицо: Евгений Викторович, доб. 231, ЛОТ №927218
Здание предлагается к продаже как единый имущественный комплекс и полностью заселено надежными арендаторами, что обеспечивает стабильный доход. В 2004 году была проведена комплексная реконструкция с полной заменой перекрытий. Территория особняка огорожена и включает парковку на 25 автомобилей.
Объект оснащен современными инженерными системами, центральным кондиционированием и приточно-вытяжной вентиляцией. Внутренняя планировка смешанного типа с качественной отделкой под офисные помещения и медицинский центр. Имеется просторная зона ресепшн, оборудованная системой контроля доступа, а также организовано круглосуточное видеонаблюдение и охрана. Высота потолков составляет до 3,9 метра.
Земельный участок площадью 1727 м² передан в долгосрочную аренду у города Москвы на срок до 2033 года.
ВРИ земли - Оказание социальной помощи населению (3.2.2); Оказание услуг связи (3.2.3); Бытовое обслуживание (3.3); Здравоохранение (3.4); Образование и просвещение (3.5); Культурное развитие (3.6); Общественное управление (3.8); Обеспечение научной деятельности (3.9); Амбулаторное ветеринарное обслуживание (3.10.1); Деловое управление (4.1); Магазины (4.4); Банковская и страховая деятельность (4.5); Общественное питание (4.6); Развлекательные мероприятия (4.8.1); Служебные гаражи (4.9)
Чтобы получить ПОДРОБНУЮ ПРЕЗЕНТАЦИЮ С ПЛАНИРОВКОЙ И ФОТОГРАФИЯМИ на этот объект, звоните. Высылаем в течение 15 минут по запросу!
☎ Конт. лицо: Евгений Викторович, доб. 231, ЛОТ №927218
Расположение
г Москва, пер 1-й Кожевнический, д 8
Павелецкая
—
10 мин
Павелецкая
—
10 мин
Крестьянская застава
—
16 мин
Технические характеристики
Параметры
Статус владельца объявления
агентство
Новость дня
Расширение возможностей для B2B-клиентов: Avito вводит новые услуги для строительства складов
На платформе Авито теперь доступна категория "Коммерческое строительство" в сегменте услуг, предлагающая широкий выбор специализированных работ и возведение объектов "под ключ" для бизнеса, что упрощает поиск подрядчиков и субподрядчиков для коммерческих проектов.
Все новости
30 апреля, четверг / Москва
"Бумеранг Капитал" увеличил свою долю в сети кафе-пекарен "Цех 85" до 50%
30 апреля, четверг / Ставропольский
В Кисловодске начался проект строительства инвестиционного отеля "Реликт"
30 апреля, четверг / Москва
Ресторан «Долина 5165» и магазин Sokolov теперь доступны посетителям ТРЦ Avenue Sever
30 апреля, четверг / Москва
"Новый флагманский магазин под названием «Флаувау» открыл свои двери на Мясницкой улице"
30 апреля, четверг / Москва
"Уровень вакансии на складах в Московском регионе достиг 5,4% из-за увеличения предложений по субаренде"
30 апреля, четверг / Москва
"Прогнозируется незначительный прирост числа туристов в первом квартале 2026 года - всего 2,8%"
30 апреля, четверг / Москва
Компания "Ориентир" планирует вложить до 150 млрд рублей в расширение бизнеса и развитие новых секторов.
30 апреля, четверг / Москва
"Завершено строительство наземной парковки на 400 автомобильных мест в парке «Ривер Парк Коломенское»"
30 апреля, четверг / Москва
Скорось открытия новых магазинов «Лэтуаль» снизится - 150 точек закроются к 2026 году.
30 апреля, четверг / Москва
Смайл-бар сети "Белая точка" теперь доступен посетителям ТЦ "Левел Причальный"
29 апреля, среда / Москва
Московский цех открыл производство 3D-принтеров для металлической печати.
29 апреля, среда / Москва
БМ-банк завершил продажу большей части площадей в ТЦ «Весна» на Новом Арбате.
29 апреля, среда / Москва
Перефразированное название: "Сеть магазинов 'Жизньмарт' возобновляет свою деятельность в Челябинске"
29 апреля, среда / Санкт-Петербург
Сервисный офис «Практик» начал свою работу на Октябрьской набережной в Санкт-Петербурге.
29 апреля, среда / Санкт-Петербург
Строительство складских помещений в Санкт-Петербурге и Ленинградской области увеличилось в 2,5 раза.
29 апреля, среда / Москва
Москва увеличила объем строительства в рамках программы МПТ до 9,5 миллионов квадратных метров
29 апреля, среда / Санкт-Петербург
Соседский центр "ЖИВИ Клуб" открыл свои двери в Новоселье
29 апреля, среда / Москва
"Завершено строительство пятиэтажной наземной парковки в районе Нагатинский Затон"
29 апреля, среда / Санкт-Петербург
Рекордный уровень строительства складов зафиксирован в Санкт-Петербурге и Ленинградской области
29 апреля, среда / Москва
Аренда складов в Москве снизилась на 25%