Описание
Номер объекта: 549647. 290 метров от станции метро Лубянка, ЦАО, Басманный район
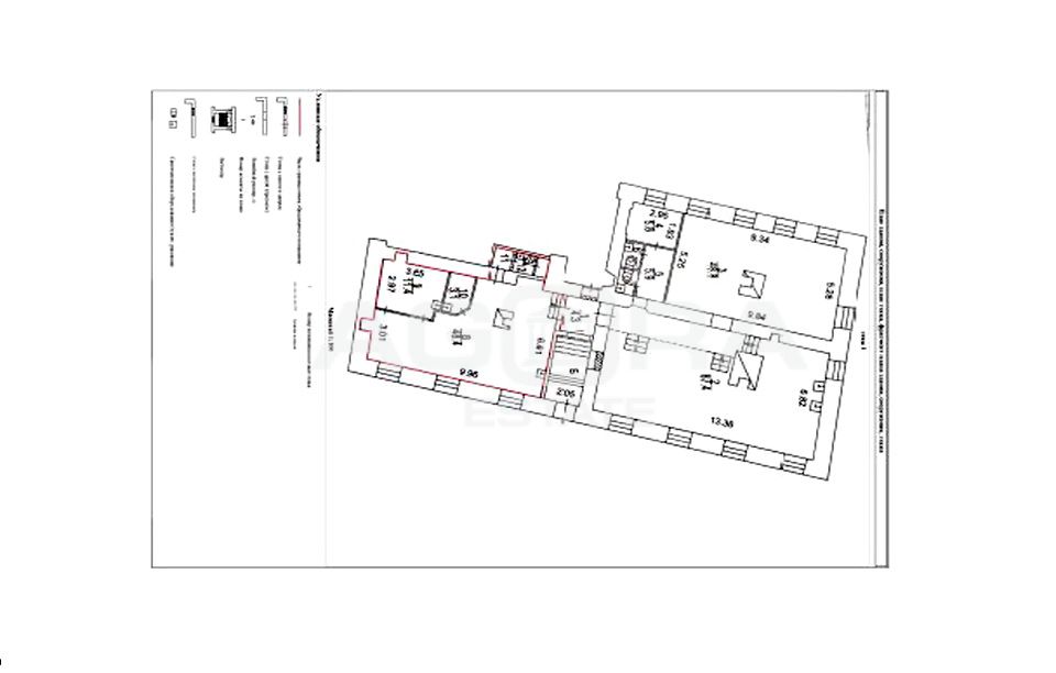
Продажа торгового помещения, стрит ритейл
Площадь - 222 кв.м.
Полностью на 1-м этаже, состоит из двух частей с общим входом с улицы.
Сдана ресторану по долгосрочному договору. Планировка: два зала для, электрическая мощность 120 кВт.
МАП - 1 млн рублей.
Дизайнерский дорогой ремонт. В каждом блоке есть мокрые точки, санузлы, вентиляция, система кондиционирования. Высота потолка - 3,6 м.
Возможно объединить обе части в случае необходимости.
Презентабельный фасад и входная групп, витражные окна, возможность размещения вывески на фасаде, отличная видимость входа в помещение.
Отлично подойдет под кафе, пиццерию, шоурум, VIP ателье, магазин, клиентский офис или любой другой вид деятельности.
Исторический центр Москвы, большой поток пешеходного и автомобильного трафика. Окружение торговый центр Центральный детский магазин, рестораны, бары, кофейни, бизнес-центры, государственные, учебные и культурные учреждения. Городская парковка - вдоль фасада здания. Три минуты пешком от станции метро Лубянка.Объект № 549647
Продажа торгового помещения, стрит ритейл
Площадь - 222 кв.м.
Полностью на 1-м этаже, состоит из двух частей с общим входом с улицы.
Сдана ресторану по долгосрочному договору. Планировка: два зала для, электрическая мощность 120 кВт.
МАП - 1 млн рублей.
Дизайнерский дорогой ремонт. В каждом блоке есть мокрые точки, санузлы, вентиляция, система кондиционирования. Высота потолка - 3,6 м.
Возможно объединить обе части в случае необходимости.
Презентабельный фасад и входная групп, витражные окна, возможность размещения вывески на фасаде, отличная видимость входа в помещение.
Отлично подойдет под кафе, пиццерию, шоурум, VIP ателье, магазин, клиентский офис или любой другой вид деятельности.
Исторический центр Москвы, большой поток пешеходного и автомобильного трафика. Окружение торговый центр Центральный детский магазин, рестораны, бары, кофейни, бизнес-центры, государственные, учебные и культурные учреждения. Городская парковка - вдоль фасада здания. Три минуты пешком от станции метро Лубянка.Объект № 549647
Расположение
г Москва, ул Мясницкая, д 7 стр 10
Лубянка
—
2 мин
Кузнецкий мост
—
5 мин
Китай-город
—
6 мин
Технические характеристики
Параметры
Инженерия
кондиционер
Статус владельца объявления
агентство
Класс
b+
Параметры помещения
Высота потолков
—
Новость дня
Расширение возможностей для B2B-клиентов: Avito вводит новые услуги для строительства складов
На платформе Авито теперь доступна категория "Коммерческое строительство" в сегменте услуг, предлагающая широкий выбор специализированных работ и возведение объектов "под ключ" для бизнеса, что упрощает поиск подрядчиков и субподрядчиков для коммерческих проектов.
Все новости
Вчера — 6 мая, среда / Москва
Рекордное количество офисных помещений введено в Москве за первый квартал текущего года.
Вчера — 6 мая, среда / Москва
"Сокращение объемов складских помещений в Московском регионе достигло 14% за первый квартал"
Вчера — 6 мая, среда / Москва
Лишь 10% жилых комплексов располагаются вблизи берега Москвы-реки.
Вчера — 6 мая, среда / Москва
Цены на отели в Москве снизились впервые за два года
Вчера — 6 мая, среда / Карачаево-Черкесская
Капиталовложения в размере 5,83 млрд рублей на развитие курорта "Альто" на Домбае от компании "Плато Девелопмент"
Вчера — 6 мая, среда / Москва
Строительство склада площадью 80 тыс. кв. м для Ozon в Пушкино будет осуществлено компанией NK Group.
Вчера — 6 мая, среда / Санкт-Петербург
«Дача Фаберже в Санкт-Петербурге будет продана на аукционе компанией «Дом.РФ»»
Вчера — 6 мая, среда / Москва
Строительство коммерческих объектов в Москве упало на 91% за год
Вчера — 6 мая, среда / Москва
Как в Москве за первый квартал 2026 года построили 5,433 тыс. кв. м офисов, готовых к адаптации.
Вчера — 6 мая, среда / Санкт-Петербург
Продуктовые сети в России увеличили свои площади в торгово-развлекательном центре Петербурга на треть за последние 6 лет.
Вчера — 6 мая, среда / Москва
С начала года в Москве получили разрешение на строительство более 130 недвижимостей.
5 мая, вторник / Москва
"Сбербанк и Альфа-банк подали в суд на производителя обоев «Артекс» с требованием объявить его банкротом"
5 мая, вторник / Красноярский
"Магазин «ВкусВилл» открыл отдел shop-in-shop в Красноярске через партнерство"
5 мая, вторник / Адыгея
Строительство жилого комплекса на территории туристического парка "Дегуакская поляна" в Адыгее начнется архитектурным проектом от "Семьи" объемом 360 тыс. квадратных метров.
5 мая, вторник / Москва
"Прогнозируется достижение рекордной площади 500 тыс. кв. м под light industrial в Московском регионе к 2026 году"
5 мая, вторник / Астраханская
Фитнес-клуб DDX Fitness открылся в Торгово-Развлекательном Центре «Ярмарка» в городе Астрахань.
5 мая, вторник / Москва
"Объем спроса на офисные помещения в Москве сократился вдвое за последний год"
5 мая, вторник / Москва
"Рост стоимости отделки офисов в Москве превышает уровень инфляции"
5 мая, вторник / Москва
В России впервые за 20 лет не было открыто ни одной новой гостиницы в первом квартале
5 мая, вторник / Москва
Спрос на услуги аренды апартаментов в Санкт-Петербурге упал на четверть.