Купить ПСН 27000 м² в пгт Столбовая
ID 1056442
Цена
2 000 000 000 ₽
Ставка
74 074 ₽ / м²
Площадь
27000 м²
Этаж
1 из -
ИФНС
5043
агентство недвижимости
Московская обл, г Чехов, пгт Столбовая, ул Большая
На карте
Описание
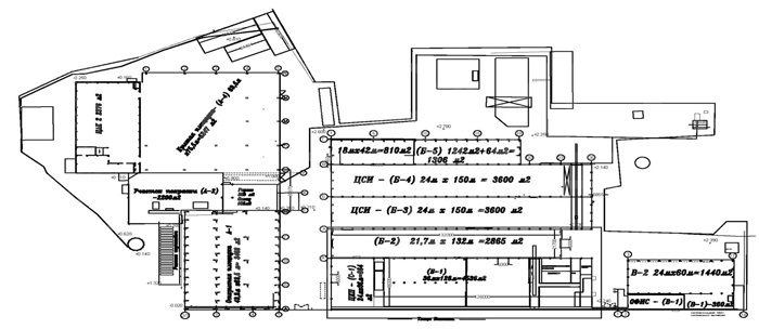
Предлагается в продажу производственное здание 27000 м2. Материал стен - железобетонныи. 1 этаж.Земельный участок - 61000 м2 в аренде на 49 лет.Электрическая мощность - 3440кВа. Вода. Канализация. Отопление. Газ (собственная котельная).Дополнительно: а/погрузчик, кран-балка, металообр. , оборудование, сухои, тельфер, теплыи, утепленныи, ответственное хранение, наличие офиса на складе.Особенности строения: складскои комплекс, территория предприятия, открытая площадка.Стоит дорогостоящее оборудование под окраску, оборудование по стеклу, алюминиевое производство и тд.участок А2 - Участок покраски 2200 кв. м.- (А-2 ЦО+гальваника - 3 кран-балки, 2 тельфера, туалет, раздевалка).участок А3- производство, склад 2 376 кв. м. -(2 кран-балки по 5т.)участок Б1- 4 536 кв. м. производство, склад, 2 мостовых крана 10 тн., душевая, туалет, раздевалка, столовая, общежитие.участок Б2- Фонарь-производство - склад- 2865 м2 - гпм- нет, отапливаемое, 2-ое секционных ворот по 6 метров, высота потолков - 9 метров.участок Б3+Б4 7200 м2 - 1 кран-балка 3тн, склад, 2-ои этаж для итр, 1 кран-балка-5тн, душевая, туалет, раздевалка, 2-ои этаж для итр.Парковка на улице, охрана, пропускнои режим, видеонаблюдение, логистические услуги, доступ на объект 7*24.Арендаторы на краткосрочных договорах.Форма сделки - продажа юр.лица. Объект №3100-952106.
Расположение
Московская обл, г Чехов, пгт Столбовая, ул Большая
Технические характеристики
Параметры
Статус владельца объявления
агентство
Отделка
офисная отделка
Новость дня
Расширение возможностей для B2B-клиентов: Avito вводит новые услуги для строительства складов
На платформе Авито теперь доступна категория "Коммерческое строительство" в сегменте услуг, предлагающая широкий выбор специализированных работ и возведение объектов "под ключ" для бизнеса, что упрощает поиск подрядчиков и субподрядчиков для коммерческих проектов.
Все новости
Сегодня — 4 мая, понедельник / Москва
Вложения в недвижимость России за первую половину текущего года составили 169,5 миллиарда рублей.
Сегодня — 4 мая, понедельник / Москва
Российский складской рынок продолжает расти: площадь складских помещений превысит 60 млн кв. м к концу 2026 года
Сегодня — 4 мая, понедельник / Москва
"Компания "Галс-Девелопмент" получила одобрение на строительство делового центра "Дубининский"."
Сегодня — 4 мая, понедельник / Москва
Инвестиционный фонд "Бумеранг Капитал" стал владельцем половины сети кофеен "Цех 85"
Сегодня — 4 мая, понедельник / Краснодарский
В Анапе откроется первый отель с инновационными IT-сервисами
Сегодня — 4 мая, понедельник / Москва
Планируется строительство торгового центра площадью свыше 6 тыс. кв. м в Краснопахорском районе Москвы.
Сегодня — 4 мая, понедельник / Москва
Смена собственника у клубов «Дикая орхидея» и «Дефиле»
Сегодня — 4 мая, понедельник / Вологодская
"Прекращена деятельность "наливаек" и магазинов электронных сигарет в Вологодской области"
Сегодня — 4 мая, понедельник / Москва
"Exeed перемещает производство из Подмосковья на площадку АГР в Шушарах"
Сегодня — 4 мая, понедельник / Москва
На юге Москвы запланировано строительство ТПУ "Кленовый бульвар" на площади 2 гектара.
30 апреля, четверг / Москва
"Бумеранг Капитал" увеличил свою долю в сети кафе-пекарен "Цех 85" до 50%
30 апреля, четверг / Ставропольский
В Кисловодске начался проект строительства инвестиционного отеля "Реликт"
30 апреля, четверг / Москва
Ресторан «Долина 5165» и магазин Sokolov теперь доступны посетителям ТРЦ Avenue Sever
30 апреля, четверг / Москва
"Новый флагманский магазин под названием «Флаувау» открыл свои двери на Мясницкой улице"
30 апреля, четверг / Москва
"Уровень вакансии на складах в Московском регионе достиг 5,4% из-за увеличения предложений по субаренде"
30 апреля, четверг / Москва
"Прогнозируется незначительный прирост числа туристов в первом квартале 2026 года - всего 2,8%"
30 апреля, четверг / Москва
Компания "Ориентир" планирует вложить до 150 млрд рублей в расширение бизнеса и развитие новых секторов.
30 апреля, четверг / Москва
"Завершено строительство наземной парковки на 400 автомобильных мест в парке «Ривер Парк Коломенское»"
30 апреля, четверг / Москва
Скорось открытия новых магазинов «Лэтуаль» снизится - 150 точек закроются к 2026 году.
30 апреля, четверг / Москва
Смайл-бар сети "Белая точка" теперь доступен посетителям ТЦ "Левел Причальный"