Снять офис 324 м² в бизнес-парке Водники
ID 1180897
Цена
425 250 ₽/мес
Ставка
15 750 ₽ / м² / год
Площадь
324 м²
Класс
B
Этаж
3 из -
ИФНС
7733
агентство недвижимости
г Москва, ул Водников, д 2
На карте
Спартак
—
10 мин
Тушинская
—
13 мин
Описание
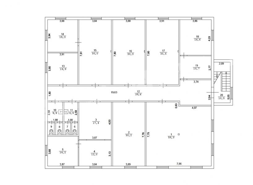
Лот №967132 Предлагается в аренду офисный блок общей площадью 323,3 м², расположенное на третьем этаже (3-й этаж целиком) здания по адресу: Москва, улица Водников, дом 2, стр. 14. Объект находится на территории бизнес-парка «Водники», обладающей собственной закрытой территорией.
Помещение характеризуется офисной блоковой планировкой коридорно-кабинетного типа. Внутри расположены два санузла. Электроснабжение составляет 15 кВт, имеется возможность перепланировки по предварительному согласованию.
Условия аренды включают заключение краткосрочного договора на 11 месяцев.
Внесение страхового депозита в размере двух месяцев базовой арендной платы.
На территории бизнес-парка доступна развитая инфраструктура: фитнес-клуб с бассейном, магазин, кафе и кафетерий самообслуживания.
Режим доступа на территорию предусматривает свободный пеший вход с 7:00 до 23:00.
Въезд автотранспорта осуществляется по пропускам или на основании предварительных заявок.
Добраться до объекта можно пешком от станции метро «Спартак» за 12 минут.
От метро «Сходненская» и «Сокол» следует трамвай №6 до остановки «Канал им. Москвы»,
от метро «Сокол» также курсирует автобус №356 до той же остановки.
Стоимость аренды: 15750 руб/м2/год (425250 руб в месяц) В цену включено: эксплуатационные расходы, НДС 5%. В цену не включено: затраты на электричество, коммунальные расходы, уборка.
Чтобы получить ПОДРОБНУЮ ПРЕЗЕНТАЦИЮ С ПЛАНИРОВКОЙ И ФОТОГРАФИЯМИ на этот объект, звоните. Высылаем в течение 15 минут по запросу!
☎ Конт. лицо: Ринат , доб. 232, ЛОТ №967132
Помещение характеризуется офисной блоковой планировкой коридорно-кабинетного типа. Внутри расположены два санузла. Электроснабжение составляет 15 кВт, имеется возможность перепланировки по предварительному согласованию.
Условия аренды включают заключение краткосрочного договора на 11 месяцев.
Внесение страхового депозита в размере двух месяцев базовой арендной платы.
На территории бизнес-парка доступна развитая инфраструктура: фитнес-клуб с бассейном, магазин, кафе и кафетерий самообслуживания.
Режим доступа на территорию предусматривает свободный пеший вход с 7:00 до 23:00.
Въезд автотранспорта осуществляется по пропускам или на основании предварительных заявок.
Добраться до объекта можно пешком от станции метро «Спартак» за 12 минут.
От метро «Сходненская» и «Сокол» следует трамвай №6 до остановки «Канал им. Москвы»,
от метро «Сокол» также курсирует автобус №356 до той же остановки.
Стоимость аренды: 15750 руб/м2/год (425250 руб в месяц) В цену включено: эксплуатационные расходы, НДС 5%. В цену не включено: затраты на электричество, коммунальные расходы, уборка.
Чтобы получить ПОДРОБНУЮ ПРЕЗЕНТАЦИЮ С ПЛАНИРОВКОЙ И ФОТОГРАФИЯМИ на этот объект, звоните. Высылаем в течение 15 минут по запросу!
☎ Конт. лицо: Ринат , доб. 232, ЛОТ №967132
Расположение
г Москва, ул Водников, д 2
Спартак
—
10 мин
Тушинская
—
13 мин
Технические характеристики
Параметры
Статус владельца объявления
агентство
Класс
b
Свободные помещения в Бизнес-парк Водники
Новость дня
Расширение возможностей для B2B-клиентов: Avito вводит новые услуги для строительства складов
На платформе Авито теперь доступна категория "Коммерческое строительство" в сегменте услуг, предлагающая широкий выбор специализированных работ и возведение объектов "под ключ" для бизнеса, что упрощает поиск подрядчиков и субподрядчиков для коммерческих проектов.
Все новости
Сегодня — 7 мая, четверг / Москва
"Уровень вакантности в офисном сегменте рынка Москвы достиг 5,3%"
Сегодня — 7 мая, четверг / Москва
"В Московском регионе спрос на склады вырос на 70% благодаря онлайн-торговле и логистике"
Сегодня — 7 мая, четверг / Москва
"Снижение объема розничных продаж на 0,5% за первый квартал"
Сегодня — 7 мая, четверг / Москва
Планируется строительство девятиэтажного делового центра площадью 16 тыс. кв. м в Щукино.
Сегодня — 7 мая, четверг / Москва
Развенчивание мифов: Пять исторических домов в районе Арбата пройдут капитальный ремонт.
Сегодня — 7 мая, четверг / Москва
Продажа ТЦ "Летний сад" в Москве группой "Эталон" привела к потере в 2,2 млрд рублей.
Сегодня — 7 мая, четверг / Москва
Предприятие "Свобода" под угрозой банкротства из-за задолженности в 125 миллионов рублей
Вчера — 6 мая, среда / Москва
Рекордное количество офисных помещений введено в Москве за первый квартал текущего года.
Вчера — 6 мая, среда / Москва
"Сокращение объемов складских помещений в Московском регионе достигло 14% за первый квартал"
Вчера — 6 мая, среда / Москва
Лишь 10% жилых комплексов располагаются вблизи берега Москвы-реки.
Вчера — 6 мая, среда / Москва
Цены на отели в Москве снизились впервые за два года
Вчера — 6 мая, среда / Карачаево-Черкесская
Капиталовложения в размере 5,83 млрд рублей на развитие курорта "Альто" на Домбае от компании "Плато Девелопмент"
Вчера — 6 мая, среда / Москва
Строительство склада площадью 80 тыс. кв. м для Ozon в Пушкино будет осуществлено компанией NK Group.
Вчера — 6 мая, среда / Санкт-Петербург
«Дача Фаберже в Санкт-Петербурге будет продана на аукционе компанией «Дом.РФ»»
Вчера — 6 мая, среда / Москва
Строительство коммерческих объектов в Москве упало на 91% за год
Вчера — 6 мая, среда / Москва
Как в Москве за первый квартал 2026 года построили 5,433 тыс. кв. м офисов, готовых к адаптации.
Вчера — 6 мая, среда / Санкт-Петербург
Продуктовые сети в России увеличили свои площади в торгово-развлекательном центре Петербурга на треть за последние 6 лет.
Вчера — 6 мая, среда / Москва
С начала года в Москве получили разрешение на строительство более 130 недвижимостей.
5 мая, вторник / Москва
"Сбербанк и Альфа-банк подали в суд на производителя обоев «Артекс» с требованием объявить его банкротом"
5 мая, вторник / Красноярский
"Магазин «ВкусВилл» открыл отдел shop-in-shop в Красноярске через партнерство"