Описание
Предложение на продажу № 62275.
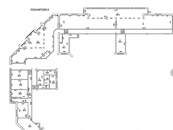
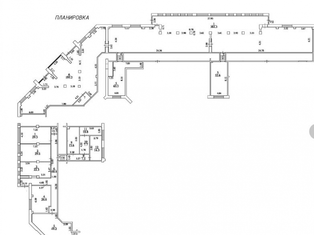
Продажа помещения свободного назначения 260.8 м² по адресу Москва, ул. Челюскинская, 9.
. Помещение после ремонта — запуск арендатора и эксплуатации без дополнительных капитальных вложений. Возможен формат готового арендного бизнеса.
.
. На объекте работает собственная управляющая компания — по договорённости передадим вместе с компанией для бесшовной работы.
.
. - 2 входа — независимые потоки клиентов и персонала
. - Потолки 3,8 м — гибкость планировочных решений и комфорт
. - После ремонта — быстрый ввод без капвложений
. - Собственная управляющая компания — передача вместе с процессами и подрядчиками
.
. Подходит инвесторам, а также под офисные и сервисные форматы, шоурумы и демонстрационные залы, образовательные проекты, медицинские форматы (при соблюдении профильных требований).
.
. Электрическая мощность 65 кВт.
Торговая недвижимость, Street Retail. 1 линия домов. Место для рекламы. Проходное место.
Без комиссии.
Продажа помещения свободного назначения 260.8 м² по адресу Москва, ул. Челюскинская, 9.
. Помещение после ремонта — запуск арендатора и эксплуатации без дополнительных капитальных вложений. Возможен формат готового арендного бизнеса.
.
. На объекте работает собственная управляющая компания — по договорённости передадим вместе с компанией для бесшовной работы.
.
. - 2 входа — независимые потоки клиентов и персонала
. - Потолки 3,8 м — гибкость планировочных решений и комфорт
. - После ремонта — быстрый ввод без капвложений
. - Собственная управляющая компания — передача вместе с процессами и подрядчиками
.
. Подходит инвесторам, а также под офисные и сервисные форматы, шоурумы и демонстрационные залы, образовательные проекты, медицинские форматы (при соблюдении профильных требований).
.
. Электрическая мощность 65 кВт.
Торговая недвижимость, Street Retail. 1 линия домов. Место для рекламы. Проходное место.
Без комиссии.
Расположение
г Москва, ул Челюскинская, д 9
Бабушкинская
—
24 мин
Медведково
—
34 мин
Свиблово
—
53 мин
Технические характеристики
Параметры
Статус владельца объявления
агентство
Новость дня
Расширение возможностей для B2B-клиентов: Avito вводит новые услуги для строительства складов
На платформе Авито теперь доступна категория "Коммерческое строительство" в сегменте услуг, предлагающая широкий выбор специализированных работ и возведение объектов "под ключ" для бизнеса, что упрощает поиск подрядчиков и субподрядчиков для коммерческих проектов.
Все новости
Вчера — 6 мая, среда / Москва
Рекордное количество офисных помещений введено в Москве за первый квартал текущего года.
Вчера — 6 мая, среда / Москва
"Сокращение объемов складских помещений в Московском регионе достигло 14% за первый квартал"
Вчера — 6 мая, среда / Москва
Лишь 10% жилых комплексов располагаются вблизи берега Москвы-реки.
Вчера — 6 мая, среда / Москва
Цены на отели в Москве снизились впервые за два года
Вчера — 6 мая, среда / Карачаево-Черкесская
Капиталовложения в размере 5,83 млрд рублей на развитие курорта "Альто" на Домбае от компании "Плато Девелопмент"
Вчера — 6 мая, среда / Москва
Строительство склада площадью 80 тыс. кв. м для Ozon в Пушкино будет осуществлено компанией NK Group.
Вчера — 6 мая, среда / Санкт-Петербург
«Дача Фаберже в Санкт-Петербурге будет продана на аукционе компанией «Дом.РФ»»
Вчера — 6 мая, среда / Москва
Строительство коммерческих объектов в Москве упало на 91% за год
Вчера — 6 мая, среда / Москва
Как в Москве за первый квартал 2026 года построили 5,433 тыс. кв. м офисов, готовых к адаптации.
Вчера — 6 мая, среда / Санкт-Петербург
Продуктовые сети в России увеличили свои площади в торгово-развлекательном центре Петербурга на треть за последние 6 лет.
Вчера — 6 мая, среда / Москва
С начала года в Москве получили разрешение на строительство более 130 недвижимостей.
5 мая, вторник / Москва
"Сбербанк и Альфа-банк подали в суд на производителя обоев «Артекс» с требованием объявить его банкротом"
5 мая, вторник / Красноярский
"Магазин «ВкусВилл» открыл отдел shop-in-shop в Красноярске через партнерство"
5 мая, вторник / Адыгея
Строительство жилого комплекса на территории туристического парка "Дегуакская поляна" в Адыгее начнется архитектурным проектом от "Семьи" объемом 360 тыс. квадратных метров.
5 мая, вторник / Москва
"Прогнозируется достижение рекордной площади 500 тыс. кв. м под light industrial в Московском регионе к 2026 году"
5 мая, вторник / Астраханская
Фитнес-клуб DDX Fitness открылся в Торгово-Развлекательном Центре «Ярмарка» в городе Астрахань.
5 мая, вторник / Москва
"Объем спроса на офисные помещения в Москве сократился вдвое за последний год"
5 мая, вторник / Москва
"Рост стоимости отделки офисов в Москве превышает уровень инфляции"
5 мая, вторник / Москва
В России впервые за 20 лет не было открыто ни одной новой гостиницы в первом квартале
5 мая, вторник / Москва
Спрос на услуги аренды апартаментов в Санкт-Петербурге упал на четверть.