Описание
"Зимняя дача 80 кв. м. на участке 7 соток в д. Бережки, КП Бережково. 45 км от МКАД по Пятницкому шоссе. Локация в окружении леса. Продается со всей мебелью и техникой
ДОМ: 2021 года постройки (2 года ждали усадки, 23 и 24 год отделка) из бревна 24-26 см, швы промазаны немецкой мастикой. Капитальный ленточный фундамент. Отмостка, парковка и дорожка на бетонном основании 15 см + пеноплекс.
КОММУНИКАЦИИ: Электричество 15 кВт, оптоволоконный интернет, колодец (ввод в дом зимний, 16 колец в глубину, 3 кольца воды), переливной септик. Отопление: теплый электрический пол, конвекторы и печь.
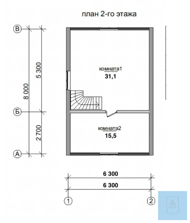
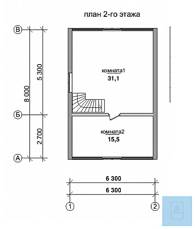
ПЛАНИРОВКА: Терраса с панорамными окнами, кухня, СУ, парилка и 2 спальни.
УЧАСТОК: парковка с навесом под две машины. Беседка. Хозблок из мини-бруса. шикарный газон. дорожки
ОКРУЖЕНИЕ: въезд на территорию КП через охрану и автоматические ворота. подъезд - асфальт. детская площадка. возможен выход в лес. в 2 км истринское водохранилище
ДОКУМЕНТЫ: Участок покупали в 2020 году, дом зарегистрировали в 2025. Оформлен, как жилой. Вся сумма в договоре. " AFY-506734331
ДОМ: 2021 года постройки (2 года ждали усадки, 23 и 24 год отделка) из бревна 24-26 см, швы промазаны немецкой мастикой. Капитальный ленточный фундамент. Отмостка, парковка и дорожка на бетонном основании 15 см + пеноплекс.
КОММУНИКАЦИИ: Электричество 15 кВт, оптоволоконный интернет, колодец (ввод в дом зимний, 16 колец в глубину, 3 кольца воды), переливной септик. Отопление: теплый электрический пол, конвекторы и печь.
ПЛАНИРОВКА: Терраса с панорамными окнами, кухня, СУ, парилка и 2 спальни.
УЧАСТОК: парковка с навесом под две машины. Беседка. Хозблок из мини-бруса. шикарный газон. дорожки
ОКРУЖЕНИЕ: въезд на территорию КП через охрану и автоматические ворота. подъезд - асфальт. детская площадка. возможен выход в лес. в 2 км истринское водохранилище
ДОКУМЕНТЫ: Участок покупали в 2020 году, дом зарегистрировали в 2025. Оформлен, как жилой. Вся сумма в договоре. " AFY-506734331
Расположение
Московская обл, г Солнечногорск, кв-л дачной застройки Бережково (д Бережки), д 9999
Технические характеристики
Параметры
Водоснабжение
есть
Электричество
есть
Канализация
есть
Телекоммуникации
интернет
Отопление
есть
Тип балкона
балкон
Параметры помещения
площадь кухни м²
15
Новость дня
Расширение возможностей для B2B-клиентов: Avito вводит новые услуги для строительства складов
На платформе Авито теперь доступна категория "Коммерческое строительство" в сегменте услуг, предлагающая широкий выбор специализированных работ и возведение объектов "под ключ" для бизнеса, что упрощает поиск подрядчиков и субподрядчиков для коммерческих проектов.
Все новости
Сегодня — 5 мая, вторник / Москва
"Сбербанк и Альфа-банк подали в суд на производителя обоев «Артекс» с требованием объявить его банкротом"
Сегодня — 5 мая, вторник / Красноярский
"Магазин «ВкусВилл» открыл отдел shop-in-shop в Красноярске через партнерство"
Сегодня — 5 мая, вторник / Адыгея
Строительство жилого комплекса на территории туристического парка "Дегуакская поляна" в Адыгее начнется архитектурным проектом от "Семьи" объемом 360 тыс. квадратных метров.
Сегодня — 5 мая, вторник / Москва
"Прогнозируется достижение рекордной площади 500 тыс. кв. м под light industrial в Московском регионе к 2026 году"
Сегодня — 5 мая, вторник / Астраханская
Фитнес-клуб DDX Fitness открылся в Торгово-Развлекательном Центре «Ярмарка» в городе Астрахань.
Сегодня — 5 мая, вторник / Москва
"Объем спроса на офисные помещения в Москве сократился вдвое за последний год"
Сегодня — 5 мая, вторник / Москва
"Рост стоимости отделки офисов в Москве превышает уровень инфляции"
Сегодня — 5 мая, вторник / Москва
В России впервые за 20 лет не было открыто ни одной новой гостиницы в первом квартале
Сегодня — 5 мая, вторник / Москва
Спрос на услуги аренды апартаментов в Санкт-Петербурге упал на четверть.
Сегодня — 5 мая, вторник / Москва
"Сеть магазинов 'Лента' запустила свой первый розничный магазин специализированных товаров для ремонта, дачи и сада в Шушарах"
Вчера — 4 мая, понедельник / Москва
Вложения в недвижимость России за первую половину текущего года составили 169,5 миллиарда рублей.
Вчера — 4 мая, понедельник / Москва
Российский складской рынок продолжает расти: площадь складских помещений превысит 60 млн кв. м к концу 2026 года
Вчера — 4 мая, понедельник / Москва
"Компания "Галс-Девелопмент" получила одобрение на строительство делового центра "Дубининский"."
Вчера — 4 мая, понедельник / Москва
Инвестиционный фонд "Бумеранг Капитал" стал владельцем половины сети кофеен "Цех 85"
Вчера — 4 мая, понедельник / Краснодарский
В Анапе откроется первый отель с инновационными IT-сервисами
Вчера — 4 мая, понедельник / Москва
Планируется строительство торгового центра площадью свыше 6 тыс. кв. м в Краснопахорском районе Москвы.
Вчера — 4 мая, понедельник / Москва
Смена собственника у клубов «Дикая орхидея» и «Дефиле»
Вчера — 4 мая, понедельник / Вологодская
"Прекращена деятельность "наливаек" и магазинов электронных сигарет в Вологодской области"
Вчера — 4 мая, понедельник / Москва
"Exeed перемещает производство из Подмосковья на площадку АГР в Шушарах"
Вчера — 4 мая, понедельник / Москва
На юге Москвы запланировано строительство ТПУ "Кленовый бульвар" на площади 2 гектара.