Описание
Предложение на продажу № 60737.
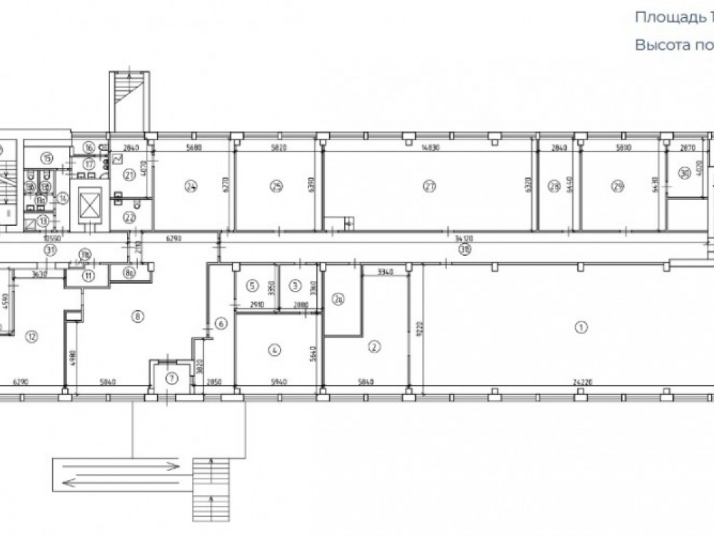
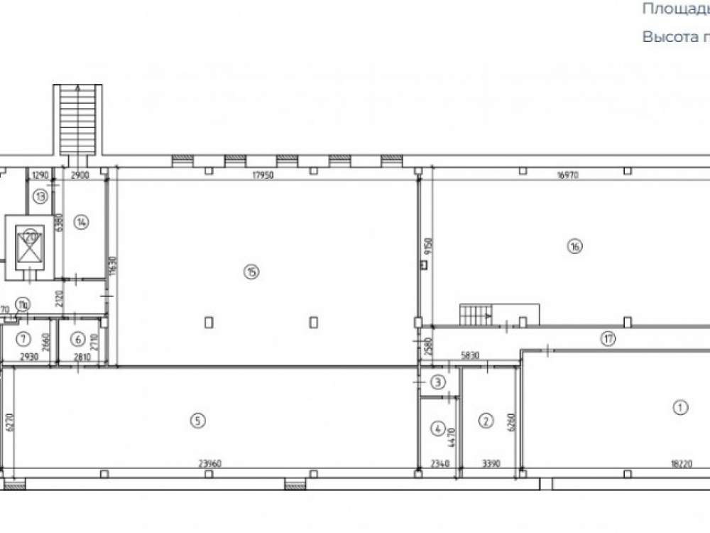
Продажа 4-ти этажного административного здания м. Щелковская.
.
. Густонаселенный жилой район.
.
. Общая площадь здания 4 572 кв.м.
.
. Земельный участок 2 366 кв.м. в долгосрочной аренде
.
. Высота потолков 4,5 м, центральные коммуникации.
.
. Выделенная мощность 335 кВт.
.
. Цена продажи 365 млн руб. с НДС.
.
. ДКП.
Этажи с 1 по 4.
Без комиссии.
Продажа 4-ти этажного административного здания м. Щелковская.
.
. Густонаселенный жилой район.
.
. Общая площадь здания 4 572 кв.м.
.
. Земельный участок 2 366 кв.м. в долгосрочной аренде
.
. Высота потолков 4,5 м, центральные коммуникации.
.
. Выделенная мощность 335 кВт.
.
. Цена продажи 365 млн руб. с НДС.
.
. ДКП.
Этажи с 1 по 4.
Без комиссии.
Расположение
г Москва, б-р Сиреневый, д 52А
Первомайская
—
5 мин
Щёлковская
—
20 мин
Измайловская
—
36 мин
Технические характеристики
Параметры
Статус владельца объявления
агентство
Новость дня
Расширение возможностей для B2B-клиентов: Avito вводит новые услуги для строительства складов
На платформе Авито теперь доступна категория "Коммерческое строительство" в сегменте услуг, предлагающая широкий выбор специализированных работ и возведение объектов "под ключ" для бизнеса, что упрощает поиск подрядчиков и субподрядчиков для коммерческих проектов.
Все новости
Сегодня — 7 мая, четверг / Москва
"В Московском регионе спрос на склады вырос на 70% благодаря онлайн-торговле и логистике"
Сегодня — 7 мая, четверг / Москва
"Снижение объема розничных продаж на 0,5% за первый квартал"
Сегодня — 7 мая, четверг / Москва
Планируется строительство девятиэтажного делового центра площадью 16 тыс. кв. м в Щукино.
Сегодня — 7 мая, четверг / Москва
Развенчивание мифов: Пять исторических домов в районе Арбата пройдут капитальный ремонт.
Сегодня — 7 мая, четверг / Москва
Продажа ТЦ "Летний сад" в Москве группой "Эталон" привела к потере в 2,2 млрд рублей.
Сегодня — 7 мая, четверг / Москва
Предприятие "Свобода" под угрозой банкротства из-за задолженности в 125 миллионов рублей
Вчера — 6 мая, среда / Москва
Рекордное количество офисных помещений введено в Москве за первый квартал текущего года.
Вчера — 6 мая, среда / Москва
"Сокращение объемов складских помещений в Московском регионе достигло 14% за первый квартал"
Вчера — 6 мая, среда / Москва
Лишь 10% жилых комплексов располагаются вблизи берега Москвы-реки.
Вчера — 6 мая, среда / Москва
Цены на отели в Москве снизились впервые за два года
Вчера — 6 мая, среда / Карачаево-Черкесская
Капиталовложения в размере 5,83 млрд рублей на развитие курорта "Альто" на Домбае от компании "Плато Девелопмент"
Вчера — 6 мая, среда / Москва
Строительство склада площадью 80 тыс. кв. м для Ozon в Пушкино будет осуществлено компанией NK Group.
Вчера — 6 мая, среда / Санкт-Петербург
«Дача Фаберже в Санкт-Петербурге будет продана на аукционе компанией «Дом.РФ»»
Вчера — 6 мая, среда / Москва
Строительство коммерческих объектов в Москве упало на 91% за год
Вчера — 6 мая, среда / Москва
Как в Москве за первый квартал 2026 года построили 5,433 тыс. кв. м офисов, готовых к адаптации.
Вчера — 6 мая, среда / Санкт-Петербург
Продуктовые сети в России увеличили свои площади в торгово-развлекательном центре Петербурга на треть за последние 6 лет.
Вчера — 6 мая, среда / Москва
С начала года в Москве получили разрешение на строительство более 130 недвижимостей.
5 мая, вторник / Москва
"Сбербанк и Альфа-банк подали в суд на производителя обоев «Артекс» с требованием объявить его банкротом"
5 мая, вторник / Красноярский
"Магазин «ВкусВилл» открыл отдел shop-in-shop в Красноярске через партнерство"