Купить готовый бизнес 130 м²
ID 1323607
Цена
43 000 000 ₽
Ставка
330 769 ₽ / м²
Площадь
130 м²
Этаж
1 из -
агентство недвижимости
г Москва, г Зеленоград, пр-кт Георгиевский, д 27
На карте
Описание
Лот №997272 Продаётся готовый арендный бизнес 129,2 м², ЖК «Зелёный Парк»
О помещении:
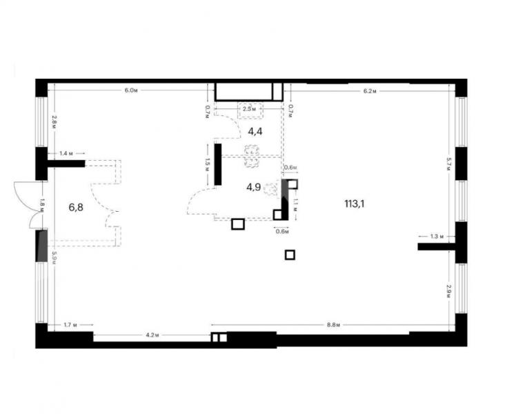
Площадь — 129,2 м².
Первый этаж торгового стилобата.
Свободная планировка, высота потолков — 4,07 м.
Два витринных окна, вход с фасада.
Электрическая мощность — 25 кВт, возможное увеличение.
Полная отделка от застройщика.
Передача ключей — до 1 сентября 2027 года.
Арендатор:
Федеральная сеть «Винлаб».
Договор аренды — 7 лет.
Безусловная индексация 5% с 4-го года.
Локация:
Центр квартала, напротив корпуса 5.3, рядом променад и парковка
ЖК расположен в 20 минутах от МЦД «Крюково», рядом крупная рекреационная зона.
Первая очередь сдана, ведётся строительство следующих корпусов.
По генплану — ещё 10 корпусов, формируется масштабный жилой кластер.
Преимущества:
Надёжный арендатор федерального уровня.
Перспективный развивающийся район с ростом населения.
Сильный фасад и высокая видимость.
Готовая отделка — снижение затрат на запуск.
Комфортный долгосрочный договор с индексацией.
Показ — по договорённости.
Чтобы получить ПОДРОБНУЮ ПРЕЗЕНТАЦИЮ С ПЛАНИРОВКОЙ И ФОТОГРАФИЯМИ на этот объект, звоните. Высылаем в течение 15 минут по запросу!
☎ Конт. лицо: Апекс , доб. 333, ЛОТ №997272
О помещении:
Площадь — 129,2 м².
Первый этаж торгового стилобата.
Свободная планировка, высота потолков — 4,07 м.
Два витринных окна, вход с фасада.
Электрическая мощность — 25 кВт, возможное увеличение.
Полная отделка от застройщика.
Передача ключей — до 1 сентября 2027 года.
Арендатор:
Федеральная сеть «Винлаб».
Договор аренды — 7 лет.
Безусловная индексация 5% с 4-го года.
Локация:
Центр квартала, напротив корпуса 5.3, рядом променад и парковка
ЖК расположен в 20 минутах от МЦД «Крюково», рядом крупная рекреационная зона.
Первая очередь сдана, ведётся строительство следующих корпусов.
По генплану — ещё 10 корпусов, формируется масштабный жилой кластер.
Преимущества:
Надёжный арендатор федерального уровня.
Перспективный развивающийся район с ростом населения.
Сильный фасад и высокая видимость.
Готовая отделка — снижение затрат на запуск.
Комфортный долгосрочный договор с индексацией.
Показ — по договорённости.
Чтобы получить ПОДРОБНУЮ ПРЕЗЕНТАЦИЮ С ПЛАНИРОВКОЙ И ФОТОГРАФИЯМИ на этот объект, звоните. Высылаем в течение 15 минут по запросу!
☎ Конт. лицо: Апекс , доб. 333, ЛОТ №997272
Расположение
г Москва, г Зеленоград, пр-кт Георгиевский, д 27
Технические характеристики
Параметры
Статус владельца объявления
агентство
Новость дня
Расширение возможностей для B2B-клиентов: Avito вводит новые услуги для строительства складов
На платформе Авито теперь доступна категория "Коммерческое строительство" в сегменте услуг, предлагающая широкий выбор специализированных работ и возведение объектов "под ключ" для бизнеса, что упрощает поиск подрядчиков и субподрядчиков для коммерческих проектов.
Все новости
Сегодня — 5 мая, вторник / Москва
"Сеть магазинов 'Лента' запустила свой первый розничный магазин специализированных товаров для ремонта, дачи и сада в Шушарах"
Вчера — 4 мая, понедельник / Москва
Вложения в недвижимость России за первую половину текущего года составили 169,5 миллиарда рублей.
Вчера — 4 мая, понедельник / Москва
Российский складской рынок продолжает расти: площадь складских помещений превысит 60 млн кв. м к концу 2026 года
Вчера — 4 мая, понедельник / Москва
"Компания "Галс-Девелопмент" получила одобрение на строительство делового центра "Дубининский"."
Вчера — 4 мая, понедельник / Москва
Инвестиционный фонд "Бумеранг Капитал" стал владельцем половины сети кофеен "Цех 85"
Вчера — 4 мая, понедельник / Краснодарский
В Анапе откроется первый отель с инновационными IT-сервисами
Вчера — 4 мая, понедельник / Москва
Планируется строительство торгового центра площадью свыше 6 тыс. кв. м в Краснопахорском районе Москвы.
Вчера — 4 мая, понедельник / Москва
Смена собственника у клубов «Дикая орхидея» и «Дефиле»
Вчера — 4 мая, понедельник / Вологодская
"Прекращена деятельность "наливаек" и магазинов электронных сигарет в Вологодской области"
Вчера — 4 мая, понедельник / Москва
"Exeed перемещает производство из Подмосковья на площадку АГР в Шушарах"
Вчера — 4 мая, понедельник / Москва
На юге Москвы запланировано строительство ТПУ "Кленовый бульвар" на площади 2 гектара.
30 апреля, четверг / Москва
"Бумеранг Капитал" увеличил свою долю в сети кафе-пекарен "Цех 85" до 50%
30 апреля, четверг / Ставропольский
В Кисловодске начался проект строительства инвестиционного отеля "Реликт"
30 апреля, четверг / Москва
Ресторан «Долина 5165» и магазин Sokolov теперь доступны посетителям ТРЦ Avenue Sever
30 апреля, четверг / Москва
"Новый флагманский магазин под названием «Флаувау» открыл свои двери на Мясницкой улице"
30 апреля, четверг / Москва
"Уровень вакансии на складах в Московском регионе достиг 5,4% из-за увеличения предложений по субаренде"
30 апреля, четверг / Москва
"Прогнозируется незначительный прирост числа туристов в первом квартале 2026 года - всего 2,8%"
30 апреля, четверг / Москва
Компания "Ориентир" планирует вложить до 150 млрд рублей в расширение бизнеса и развитие новых секторов.
30 апреля, четверг / Москва
"Завершено строительство наземной парковки на 400 автомобильных мест в парке «Ривер Парк Коломенское»"
30 апреля, четверг / Москва
Скорось открытия новых магазинов «Лэтуаль» снизится - 150 точек закроются к 2026 году.