Купить ПСН 91 м² в бизнес-квартале Прокшино
ID 1410109
Цена
47 998 440 ₽
Ставка
527 455 ₽ / м²
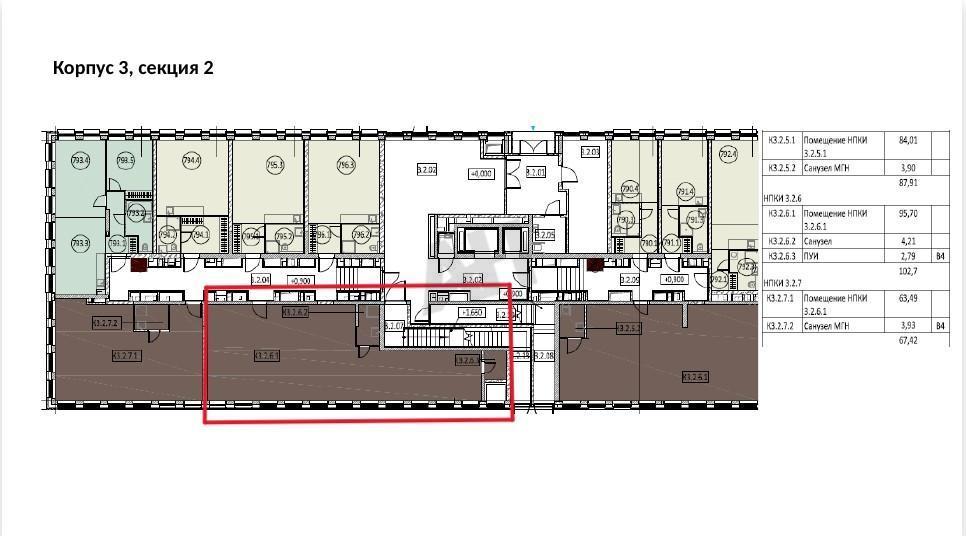
Площадь
91 м²
Этаж
1 из -
ИФНС
7751
агентство недвижимости
г Москва, Сосенское п, кв-л 35, д 10
На карте
Прокшино
Филатов луг
—
26 мин
Коммунарка
—
31 мин
Описание
Лот №1002916 Делимся комиссией с коллегами! Продажа коммерческого помещения площадью 90,7 м2. Помещение свободного назначения под любой вид деятельности (медцентр, салон красоты, парикмахерская, офис, ресторан, бар, банк, бытовые услуги, торговое помещение, магазин и т.д.)
УНИКАЛЬНЫЙ ПРОЕКТ
Бизнес-квартал «Прокшино» – это премиальные офисы класса «А» рядом с новым жилым районом «Прокшино» и спортивно-событийным кластером. Бизнес-квартал, кластер и жилой район возводятся в составе единой продуманной городской среды со всей инфраструктурой и концептуальным благоустройством – в живописном природном окружении. Более 100 тыс. жителей в районах «Прокшино», «Испанские кварталы» и других.
Здесь появятся современные торговые центры, всесезонный горнолыжный курорт, аквакурорт с профессиональным дайвинг-центром, объекты для активного отдыха и спорта, парк наук, отель загородного формата и многое другое. Это будет насыщенное и сбалансированное пространство для гармоничной жизни москвичей – с отличной транспортной доступностью и удачным расположением.
РАСПОЛОЖЕНИЕ И ТРАНСПОРТНАЯ ДОСТУПНОСТЬ
- 1 мин. от ст. метро «Прокшино»
- Прямой крытый переход из метро
- 15 мин. до аэропорта «Внуково»
БИЗНЕС-КВАРТАЛ «ПРОКШИНО»
- Гарантированные стандарты строительства – независимая международная сертификация LEED
- Высокий уровень энергоэффективности и комфорта
- Торговый центр нового формата
- Панорамный ресторан с открытой террасой
- Лобби с постаматами – 4 тыс. м2
- Высокотехнологичные лифты KONE
- 325 мест в паркинге с сервисной зоной
- 7,5 га благоустроенной территории с набережной
ПРЕМИАЛЬНЫЕ ОФИСЫ
- Питьевой водопровод в каждом офисе
- Вся инженерия для офисной кухни
- Панорамные окна с функцией проветривания
- Очистка и увлажнение воздуха, контроль СО2
- Кондиционирование круглый год
- Переговорные комнаты на этажах
- Единая цифровая среда
- Офисы без отделки с возможностью отделки от застройщика
Чтобы получить ПОДРОБНУЮ ПРЕЗЕНТАЦИЮ С ПЛАНИРОВКОЙ И ФОТОГРАФИЯМИ на этот объект, звоните. Высылаем в течение 15 минут по запросу!
Уважаемые коллеги, мы работаем по этому объекту с посредниками и делимся комиссией в соответствии с нашей партнерской программой!
☎ Конт. лицо: НОВОСТРОЙКИ , доб. 211, ЛОТ №1002916
УНИКАЛЬНЫЙ ПРОЕКТ
Бизнес-квартал «Прокшино» – это премиальные офисы класса «А» рядом с новым жилым районом «Прокшино» и спортивно-событийным кластером. Бизнес-квартал, кластер и жилой район возводятся в составе единой продуманной городской среды со всей инфраструктурой и концептуальным благоустройством – в живописном природном окружении. Более 100 тыс. жителей в районах «Прокшино», «Испанские кварталы» и других.
Здесь появятся современные торговые центры, всесезонный горнолыжный курорт, аквакурорт с профессиональным дайвинг-центром, объекты для активного отдыха и спорта, парк наук, отель загородного формата и многое другое. Это будет насыщенное и сбалансированное пространство для гармоничной жизни москвичей – с отличной транспортной доступностью и удачным расположением.
РАСПОЛОЖЕНИЕ И ТРАНСПОРТНАЯ ДОСТУПНОСТЬ
- 1 мин. от ст. метро «Прокшино»
- Прямой крытый переход из метро
- 15 мин. до аэропорта «Внуково»
БИЗНЕС-КВАРТАЛ «ПРОКШИНО»
- Гарантированные стандарты строительства – независимая международная сертификация LEED
- Высокий уровень энергоэффективности и комфорта
- Торговый центр нового формата
- Панорамный ресторан с открытой террасой
- Лобби с постаматами – 4 тыс. м2
- Высокотехнологичные лифты KONE
- 325 мест в паркинге с сервисной зоной
- 7,5 га благоустроенной территории с набережной
ПРЕМИАЛЬНЫЕ ОФИСЫ
- Питьевой водопровод в каждом офисе
- Вся инженерия для офисной кухни
- Панорамные окна с функцией проветривания
- Очистка и увлажнение воздуха, контроль СО2
- Кондиционирование круглый год
- Переговорные комнаты на этажах
- Единая цифровая среда
- Офисы без отделки с возможностью отделки от застройщика
Чтобы получить ПОДРОБНУЮ ПРЕЗЕНТАЦИЮ С ПЛАНИРОВКОЙ И ФОТОГРАФИЯМИ на этот объект, звоните. Высылаем в течение 15 минут по запросу!
Уважаемые коллеги, мы работаем по этому объекту с посредниками и делимся комиссией в соответствии с нашей партнерской программой!
☎ Конт. лицо: НОВОСТРОЙКИ , доб. 211, ЛОТ №1002916
Расположение
г Москва, Сосенское п, кв-л 35, д 10
Прокшино
Филатов луг
—
26 мин
Коммунарка
—
31 мин
Технические характеристики
Параметры
Статус владельца объявления
агентство
Свободные помещения в Бизнес-квартал Прокшино
Новость дня
Все новости
Сегодня — 30 апреля, четверг / Москва
"Уровень вакансии на складах в Московском регионе достиг 5,4% из-за увеличения предложений по субаренде"
Сегодня — 30 апреля, четверг / Москва
"Завершено строительство наземной парковки на 400 автомобильных мест в парке «Ривер Парк Коломенское»"
Сегодня — 30 апреля, четверг / Москва
Скорось открытия новых магазинов «Лэтуаль» снизится - 150 точек закроются к 2026 году.
Сегодня — 30 апреля, четверг / Москва
Смайл-бар сети "Белая точка" теперь доступен посетителям ТЦ "Левел Причальный"
Вчера — 29 апреля, среда / Москва
Московский цех открыл производство 3D-принтеров для металлической печати.
Вчера — 29 апреля, среда / Москва
БМ-банк завершил продажу большей части площадей в ТЦ «Весна» на Новом Арбате.
Вчера — 29 апреля, среда / Москва
Перефразированное название: "Сеть магазинов 'Жизньмарт' возобновляет свою деятельность в Челябинске"
Вчера — 29 апреля, среда / Санкт-Петербург
Сервисный офис «Практик» начал свою работу на Октябрьской набережной в Санкт-Петербурге.
Вчера — 29 апреля, среда / Санкт-Петербург
Строительство складских помещений в Санкт-Петербурге и Ленинградской области увеличилось в 2,5 раза.
Вчера — 29 апреля, среда / Москва
Москва увеличила объем строительства в рамках программы МПТ до 9,5 миллионов квадратных метров
Вчера — 29 апреля, среда / Санкт-Петербург
Соседский центр "ЖИВИ Клуб" открыл свои двери в Новоселье
Вчера — 29 апреля, среда / Москва
"Завершено строительство пятиэтажной наземной парковки в районе Нагатинский Затон"
Вчера — 29 апреля, среда / Санкт-Петербург
Рекордный уровень строительства складов зафиксирован в Санкт-Петербурге и Ленинградской области
Вчера — 29 апреля, среда / Москва
Аренда складов в Москве снизилась на 25%
28 апреля, вторник / Москва
"Появление двух новых брендов на российском рынке в начале 2026 года"
28 апреля, вторник / Москва
27-этажный бизнес-центр класса А в Коммунарке завершает процесс утверждения своего архитектурного дизайна
28 апреля, вторник / Москва
Перефразированное название статьи: "Открытие первого флагманского магазина Lumique в «Авиапарке»"
28 апреля, вторник / Москва
"Подольская фабрика офсетной печати выставляет на приватизацию 49% своих акций"
28 апреля, вторник / Москва
Самострои в ЮВАО: площадь почти 4 тыс. кв. м за первый квартал
28 апреля, вторник / Москва
Иск на 11,7 млрд рублей подан банком «Санкт-Петербург» к структуре «Гранели»