Снять ПСН 112 м²
ID 1417751
Цена
3 299 992 ₽/мес
Ставка
353 571 ₽ / м² / год
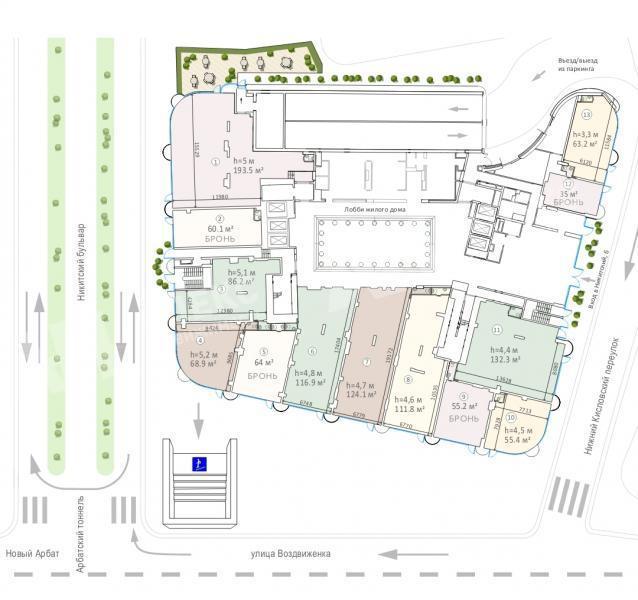
Площадь
112 м²
Этаж
1 из -
ИФНС
7703
агентство недвижимости
г Москва, б-р Никитский, д 6/20
На карте
Арбатская
—
1 мин
Арбатская
—
1 мин
Описание
Лот №1008300 Предлагаем в аренду коммерческое помещение 111.8 м2 в престижном бизнес-доме «Никитский 6»!
Идеальное расположение в самом сердце Москвы — на пересечении улицы Воздвиженка и Никитского бульвара, напротив станции метро «Арбатская». Всего 5 минут пешком до Большой Никитской улицы и знаменитых Патриарших прудов.
Преимущества помещения:
✅ Отдельный вход с фасада
✅ Витринные окна и свободная планировка
✅ Высота потолков — 4.6 м
✅ Возможность размещения вывески
✅ Наличие мокрой точки
✅ Достаточная электрическая мощность для любого вида бизнеса
Высокий пешеходный трафик, соседство с деловыми, культурными и образовательными центрами, а также отличная транспортная доступность (метро и наземный транспорт в шаговой доступности) гарантируют максимальную проходимость и интерес со стороны клиентов.
Идеально подойдёт для бутика, кафе, салона, офиса или show-room!
Стоимость аренды: 354203 руб/м2/год (3299992 руб в месяц) УСН. В цену включено: эксплуатационные расходы. В цену не включено: затраты на электричество, коммунальные расходы, уборка.
Чтобы получить ПОДРОБНУЮ ПРЕЗЕНТАЦИЮ С ПЛАНИРОВКОЙ И ФОТОГРАФИЯМИ на этот объект, звоните. Высылаем в течение 15 минут по запросу!
☎ Конт. лицо: Алексей Владимирович, доб. 217, ЛОТ №1008300
Идеальное расположение в самом сердце Москвы — на пересечении улицы Воздвиженка и Никитского бульвара, напротив станции метро «Арбатская». Всего 5 минут пешком до Большой Никитской улицы и знаменитых Патриарших прудов.
Преимущества помещения:
✅ Отдельный вход с фасада
✅ Витринные окна и свободная планировка
✅ Высота потолков — 4.6 м
✅ Возможность размещения вывески
✅ Наличие мокрой точки
✅ Достаточная электрическая мощность для любого вида бизнеса
Высокий пешеходный трафик, соседство с деловыми, культурными и образовательными центрами, а также отличная транспортная доступность (метро и наземный транспорт в шаговой доступности) гарантируют максимальную проходимость и интерес со стороны клиентов.
Идеально подойдёт для бутика, кафе, салона, офиса или show-room!
Стоимость аренды: 354203 руб/м2/год (3299992 руб в месяц) УСН. В цену включено: эксплуатационные расходы. В цену не включено: затраты на электричество, коммунальные расходы, уборка.
Чтобы получить ПОДРОБНУЮ ПРЕЗЕНТАЦИЮ С ПЛАНИРОВКОЙ И ФОТОГРАФИЯМИ на этот объект, звоните. Высылаем в течение 15 минут по запросу!
☎ Конт. лицо: Алексей Владимирович, доб. 217, ЛОТ №1008300
Расположение
г Москва, б-р Никитский, д 6/20
Арбатская
—
1 мин
Арбатская
—
1 мин
Технические характеристики
Параметры
Статус владельца объявления
агентство
Новость дня
Расширение возможностей для B2B-клиентов: Avito вводит новые услуги для строительства складов
На платформе Авито теперь доступна категория "Коммерческое строительство" в сегменте услуг, предлагающая широкий выбор специализированных работ и возведение объектов "под ключ" для бизнеса, что упрощает поиск подрядчиков и субподрядчиков для коммерческих проектов.
Все новости
30 апреля, четверг / Москва
"Бумеранг Капитал" увеличил свою долю в сети кафе-пекарен "Цех 85" до 50%
30 апреля, четверг / Ставропольский
В Кисловодске начался проект строительства инвестиционного отеля "Реликт"
30 апреля, четверг / Москва
Ресторан «Долина 5165» и магазин Sokolov теперь доступны посетителям ТРЦ Avenue Sever
30 апреля, четверг / Москва
"Новый флагманский магазин под названием «Флаувау» открыл свои двери на Мясницкой улице"
30 апреля, четверг / Москва
"Уровень вакансии на складах в Московском регионе достиг 5,4% из-за увеличения предложений по субаренде"
30 апреля, четверг / Москва
"Прогнозируется незначительный прирост числа туристов в первом квартале 2026 года - всего 2,8%"
30 апреля, четверг / Москва
Компания "Ориентир" планирует вложить до 150 млрд рублей в расширение бизнеса и развитие новых секторов.
30 апреля, четверг / Москва
"Завершено строительство наземной парковки на 400 автомобильных мест в парке «Ривер Парк Коломенское»"
30 апреля, четверг / Москва
Скорось открытия новых магазинов «Лэтуаль» снизится - 150 точек закроются к 2026 году.
30 апреля, четверг / Москва
Смайл-бар сети "Белая точка" теперь доступен посетителям ТЦ "Левел Причальный"
29 апреля, среда / Москва
Московский цех открыл производство 3D-принтеров для металлической печати.
29 апреля, среда / Москва
БМ-банк завершил продажу большей части площадей в ТЦ «Весна» на Новом Арбате.
29 апреля, среда / Москва
Перефразированное название: "Сеть магазинов 'Жизньмарт' возобновляет свою деятельность в Челябинске"
29 апреля, среда / Санкт-Петербург
Сервисный офис «Практик» начал свою работу на Октябрьской набережной в Санкт-Петербурге.
29 апреля, среда / Санкт-Петербург
Строительство складских помещений в Санкт-Петербурге и Ленинградской области увеличилось в 2,5 раза.
29 апреля, среда / Москва
Москва увеличила объем строительства в рамках программы МПТ до 9,5 миллионов квадратных метров
29 апреля, среда / Санкт-Петербург
Соседский центр "ЖИВИ Клуб" открыл свои двери в Новоселье
29 апреля, среда / Москва
"Завершено строительство пятиэтажной наземной парковки в районе Нагатинский Затон"
29 апреля, среда / Санкт-Петербург
Рекордный уровень строительства складов зафиксирован в Санкт-Петербурге и Ленинградской области
29 апреля, среда / Москва
Аренда складов в Москве снизилась на 25%