Купить ПСН 90 м² в бизнес-квартале Прокшино
ID 1421364
Цена
47 238 066 ₽
Ставка
524 867 ₽ / м²
Площадь
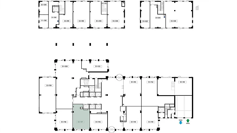
90 м²
Этаж
1 из -
ИФНС
7751
агентство недвижимости
г Москва, Сосенское п, кв-л 35, д 10
На карте
Прокшино
Филатов луг
—
26 мин
Коммунарка
—
31 мин
Описание
Лот №1002918 Делимся комиссией с коллегами! Продажа нежилого помещения площадью 89,4 м2. Помещение свободного назначения под любой вид деятельности (медцентр, салон красоты, парикмахерская, офис, ресторан, бар, банк, бытовые услуги, торговое помещение, магазин и т.д.)
УНИКАЛЬНЫЙ ПРОЕКТ
Бизнес-квартал «Прокшино» – это премиальные офисы класса «А» рядом с новым жилым районом «Прокшино» и спортивно-событийным кластером. Бизнес-квартал, кластер и жилой район возводятся в составе единой продуманной городской среды со всей инфраструктурой и концептуальным благоустройством – в живописном природном окружении. Более 100 тыс. жителей в районах «Прокшино», «Испанские кварталы» и других.
Здесь появятся современные торговые центры, всесезонный горнолыжный курорт, аквакурорт с профессиональным дайвинг-центром, объекты для активного отдыха и спорта, парк наук, отель загородного формата и многое другое. Это будет насыщенное и сбалансированное пространство для гармоничной жизни москвичей – с отличной транспортной доступностью и удачным расположением.
РАСПОЛОЖЕНИЕ И ТРАНСПОРТНАЯ ДОСТУПНОСТЬ
- 1 мин. от ст. метро «Прокшино»
- Прямой крытый переход из метро
- 15 мин. до аэропорта «Внуково»
БИЗНЕС-КВАРТАЛ «ПРОКШИНО»
- Гарантированные стандарты строительства – независимая международная сертификация LEED
- Высокий уровень энергоэффективности и комфорта
- Торговый центр нового формата
- Панорамный ресторан с открытой террасой
- Лобби с постаматами – 4 тыс. м2
- Высокотехнологичные лифты KONE
- 325 мест в паркинге с сервисной зоной
- 7,5 га благоустроенной территории с набережной
ПРЕМИАЛЬНЫЕ ОФИСЫ
- Питьевой водопровод в каждом офисе
- Вся инженерия для офисной кухни
- Панорамные окна с функцией проветривания
- Очистка и увлажнение воздуха, контроль СО2
- Кондиционирование круглый год
- Переговорные комнаты на этажах
- Единая цифровая среда
- Офисы без отделки с возможностью отделки от застройщика
Чтобы получить ПОДРОБНУЮ ПРЕЗЕНТАЦИЮ С ПЛАНИРОВКОЙ И ФОТОГРАФИЯМИ на этот объект, звоните. Высылаем в течение 15 минут по запросу!
Уважаемые коллеги, мы работаем по этому объекту с посредниками и делимся комиссией в соответствии с нашей партнерской программой!
☎ Конт. лицо: НОВОСТРОЙКИ , доб. 211, ЛОТ №1002918
УНИКАЛЬНЫЙ ПРОЕКТ
Бизнес-квартал «Прокшино» – это премиальные офисы класса «А» рядом с новым жилым районом «Прокшино» и спортивно-событийным кластером. Бизнес-квартал, кластер и жилой район возводятся в составе единой продуманной городской среды со всей инфраструктурой и концептуальным благоустройством – в живописном природном окружении. Более 100 тыс. жителей в районах «Прокшино», «Испанские кварталы» и других.
Здесь появятся современные торговые центры, всесезонный горнолыжный курорт, аквакурорт с профессиональным дайвинг-центром, объекты для активного отдыха и спорта, парк наук, отель загородного формата и многое другое. Это будет насыщенное и сбалансированное пространство для гармоничной жизни москвичей – с отличной транспортной доступностью и удачным расположением.
РАСПОЛОЖЕНИЕ И ТРАНСПОРТНАЯ ДОСТУПНОСТЬ
- 1 мин. от ст. метро «Прокшино»
- Прямой крытый переход из метро
- 15 мин. до аэропорта «Внуково»
БИЗНЕС-КВАРТАЛ «ПРОКШИНО»
- Гарантированные стандарты строительства – независимая международная сертификация LEED
- Высокий уровень энергоэффективности и комфорта
- Торговый центр нового формата
- Панорамный ресторан с открытой террасой
- Лобби с постаматами – 4 тыс. м2
- Высокотехнологичные лифты KONE
- 325 мест в паркинге с сервисной зоной
- 7,5 га благоустроенной территории с набережной
ПРЕМИАЛЬНЫЕ ОФИСЫ
- Питьевой водопровод в каждом офисе
- Вся инженерия для офисной кухни
- Панорамные окна с функцией проветривания
- Очистка и увлажнение воздуха, контроль СО2
- Кондиционирование круглый год
- Переговорные комнаты на этажах
- Единая цифровая среда
- Офисы без отделки с возможностью отделки от застройщика
Чтобы получить ПОДРОБНУЮ ПРЕЗЕНТАЦИЮ С ПЛАНИРОВКОЙ И ФОТОГРАФИЯМИ на этот объект, звоните. Высылаем в течение 15 минут по запросу!
Уважаемые коллеги, мы работаем по этому объекту с посредниками и делимся комиссией в соответствии с нашей партнерской программой!
☎ Конт. лицо: НОВОСТРОЙКИ , доб. 211, ЛОТ №1002918
Расположение
г Москва, Сосенское п, кв-л 35, д 10
Прокшино
Филатов луг
—
26 мин
Коммунарка
—
31 мин
Технические характеристики
Параметры
Статус владельца объявления
агентство
Свободные помещения в Бизнес-квартал Прокшино
Новость дня
Расширение возможностей для B2B-клиентов: Avito вводит новые услуги для строительства складов
На платформе Авито теперь доступна категория "Коммерческое строительство" в сегменте услуг, предлагающая широкий выбор специализированных работ и возведение объектов "под ключ" для бизнеса, что упрощает поиск подрядчиков и субподрядчиков для коммерческих проектов.
Все новости
Сегодня — 5 мая, вторник / Москва
"Сеть магазинов 'Лента' запустила свой первый розничный магазин специализированных товаров для ремонта, дачи и сада в Шушарах"
Вчера — 4 мая, понедельник / Москва
Вложения в недвижимость России за первую половину текущего года составили 169,5 миллиарда рублей.
Вчера — 4 мая, понедельник / Москва
Российский складской рынок продолжает расти: площадь складских помещений превысит 60 млн кв. м к концу 2026 года
Вчера — 4 мая, понедельник / Москва
"Компания "Галс-Девелопмент" получила одобрение на строительство делового центра "Дубининский"."
Вчера — 4 мая, понедельник / Москва
Инвестиционный фонд "Бумеранг Капитал" стал владельцем половины сети кофеен "Цех 85"
Вчера — 4 мая, понедельник / Краснодарский
В Анапе откроется первый отель с инновационными IT-сервисами
Вчера — 4 мая, понедельник / Москва
Планируется строительство торгового центра площадью свыше 6 тыс. кв. м в Краснопахорском районе Москвы.
Вчера — 4 мая, понедельник / Москва
Смена собственника у клубов «Дикая орхидея» и «Дефиле»
Вчера — 4 мая, понедельник / Вологодская
"Прекращена деятельность "наливаек" и магазинов электронных сигарет в Вологодской области"
Вчера — 4 мая, понедельник / Москва
"Exeed перемещает производство из Подмосковья на площадку АГР в Шушарах"
Вчера — 4 мая, понедельник / Москва
На юге Москвы запланировано строительство ТПУ "Кленовый бульвар" на площади 2 гектара.
30 апреля, четверг / Москва
"Бумеранг Капитал" увеличил свою долю в сети кафе-пекарен "Цех 85" до 50%
30 апреля, четверг / Ставропольский
В Кисловодске начался проект строительства инвестиционного отеля "Реликт"
30 апреля, четверг / Москва
Ресторан «Долина 5165» и магазин Sokolov теперь доступны посетителям ТРЦ Avenue Sever
30 апреля, четверг / Москва
"Новый флагманский магазин под названием «Флаувау» открыл свои двери на Мясницкой улице"
30 апреля, четверг / Москва
"Уровень вакансии на складах в Московском регионе достиг 5,4% из-за увеличения предложений по субаренде"
30 апреля, четверг / Москва
"Прогнозируется незначительный прирост числа туристов в первом квартале 2026 года - всего 2,8%"
30 апреля, четверг / Москва
Компания "Ориентир" планирует вложить до 150 млрд рублей в расширение бизнеса и развитие новых секторов.
30 апреля, четверг / Москва
"Завершено строительство наземной парковки на 400 автомобильных мест в парке «Ривер Парк Коломенское»"
30 апреля, четверг / Москва
Скорось открытия новых магазинов «Лэтуаль» снизится - 150 точек закроются к 2026 году.