Купить ПСН 1145 м² в пгт Тучково
ID 1530197
Цена
75 000 000 ₽
Ставка
65 502 ₽ / м²
Площадь
1145 м²
Этаж
1 из -
ИФНС
5075
агентство недвижимости
Московская обл, г Руза, пгт Тучково, ул Советская, д 22
На карте
Описание
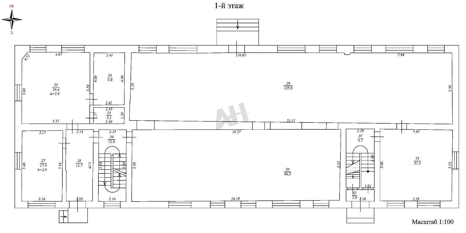
Лот №989582 Продается капитальное коммерческое здание общей площадью 1145 кв.м по адресу: Московская область, р.п. Тучково, ул. Советская, 22. Площадь помещений распределена следующим образом: первый этаж — 352 кв.м, второй этаж — 455 кв.м, подвал — 338 кв.м. Объект расположен на земельном участке площадью 0,15 га, находящемся в собственности. Здание состоит из двух этажей и подвала со свободной планировкой, что позволяет организовать пространство под клиентскую зону, офисы, складские и технические помещения. Высота потолков составляет 3.2 метра. В здании проведено капитальное обновление: выполнены фасадные работы, обновлены инженерные коммуникации, установлены современные энергосберегающие окна. Объект оснащен центральным отоплением, электрической мощностью 23 кВт, имеет несколько входов с улицы. На каждом этаже имеются по 4 вывода мокрых точек (канализация + водоотведение). Состояние под чистовую отделку Shell&core. Перед зданием расположена бесплатная парковка и предусмотрен удобный подъезд для грузового транспорта. Данное предложение представляет отличный вариант для инвестиций или открытия собственного бизнеса, включая такие форматы, как торговля, медицинский центр, офисы, образовательные проекты, общежитие, пункт общественного питания, склад или шоурум.
Чтобы получить ПОДРОБНУЮ ПРЕЗЕНТАЦИЮ С ПЛАНИРОВКОЙ И ФОТОГРАФИЯМИ на этот объект, звоните. Высылаем в течение 15 минут по запросу!
☎ Конт. лицо: Алексей Сергеевич, доб. 230, ЛОТ №989582
Чтобы получить ПОДРОБНУЮ ПРЕЗЕНТАЦИЮ С ПЛАНИРОВКОЙ И ФОТОГРАФИЯМИ на этот объект, звоните. Высылаем в течение 15 минут по запросу!
☎ Конт. лицо: Алексей Сергеевич, доб. 230, ЛОТ №989582
Расположение
Московская обл, г Руза, пгт Тучково, ул Советская, д 22
Технические характеристики
Параметры
Статус владельца объявления
агентство
Новость дня
Расширение возможностей для B2B-клиентов: Avito вводит новые услуги для строительства складов
На платформе Авито теперь доступна категория "Коммерческое строительство" в сегменте услуг, предлагающая широкий выбор специализированных работ и возведение объектов "под ключ" для бизнеса, что упрощает поиск подрядчиков и субподрядчиков для коммерческих проектов.
Все новости
Сегодня — 4 мая, понедельник / Москва
Вложения в недвижимость России за первую половину текущего года составили 169,5 миллиарда рублей.
Сегодня — 4 мая, понедельник / Москва
Российский складской рынок продолжает расти: площадь складских помещений превысит 60 млн кв. м к концу 2026 года
Сегодня — 4 мая, понедельник / Москва
"Компания "Галс-Девелопмент" получила одобрение на строительство делового центра "Дубининский"."
Сегодня — 4 мая, понедельник / Москва
Инвестиционный фонд "Бумеранг Капитал" стал владельцем половины сети кофеен "Цех 85"
Сегодня — 4 мая, понедельник / Краснодарский
В Анапе откроется первый отель с инновационными IT-сервисами
Сегодня — 4 мая, понедельник / Москва
Планируется строительство торгового центра площадью свыше 6 тыс. кв. м в Краснопахорском районе Москвы.
Сегодня — 4 мая, понедельник / Москва
Смена собственника у клубов «Дикая орхидея» и «Дефиле»
Сегодня — 4 мая, понедельник / Вологодская
"Прекращена деятельность "наливаек" и магазинов электронных сигарет в Вологодской области"
Сегодня — 4 мая, понедельник / Москва
"Exeed перемещает производство из Подмосковья на площадку АГР в Шушарах"
Сегодня — 4 мая, понедельник / Москва
На юге Москвы запланировано строительство ТПУ "Кленовый бульвар" на площади 2 гектара.
30 апреля, четверг / Москва
"Бумеранг Капитал" увеличил свою долю в сети кафе-пекарен "Цех 85" до 50%
30 апреля, четверг / Ставропольский
В Кисловодске начался проект строительства инвестиционного отеля "Реликт"
30 апреля, четверг / Москва
Ресторан «Долина 5165» и магазин Sokolov теперь доступны посетителям ТРЦ Avenue Sever
30 апреля, четверг / Москва
"Новый флагманский магазин под названием «Флаувау» открыл свои двери на Мясницкой улице"
30 апреля, четверг / Москва
"Уровень вакансии на складах в Московском регионе достиг 5,4% из-за увеличения предложений по субаренде"
30 апреля, четверг / Москва
"Прогнозируется незначительный прирост числа туристов в первом квартале 2026 года - всего 2,8%"
30 апреля, четверг / Москва
Компания "Ориентир" планирует вложить до 150 млрд рублей в расширение бизнеса и развитие новых секторов.
30 апреля, четверг / Москва
"Завершено строительство наземной парковки на 400 автомобильных мест в парке «Ривер Парк Коломенское»"
30 апреля, четверг / Москва
Скорось открытия новых магазинов «Лэтуаль» снизится - 150 точек закроются к 2026 году.
30 апреля, четверг / Москва
Смайл-бар сети "Белая точка" теперь доступен посетителям ТЦ "Левел Причальный"